logo
Artum — студия дизайна интерьера
Перезвоните мне
Дизайн-проект загородного дома в стиле джапанди в коттеджном поселке «Образ Жизни. Лесная деревня» в ЛО
блог Artum

Дизайн-проект загородного дома в стиле джапанди в коттеджном поселке «Образ Жизни. Лесная деревня» в ЛО

Задачи проекта

  • Разместить в котельной три котла, теплоаккумулятор, бойлер и систему водоочистки с учетом технических зазоров.

  • Спроектировать безопасную монолитную лестницу на три этажа с отделкой микроцементом и деревом.

  • Интегрировать дровяной камин с выводом воздуховода на второй этаж для обогрева детской комнаты.

  • Разработать фасады и освещение дома с применением декоративных реек и террасной доски.

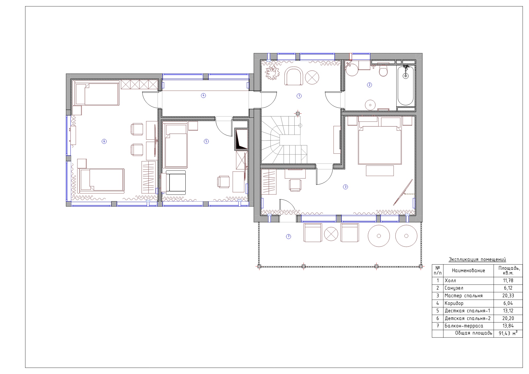
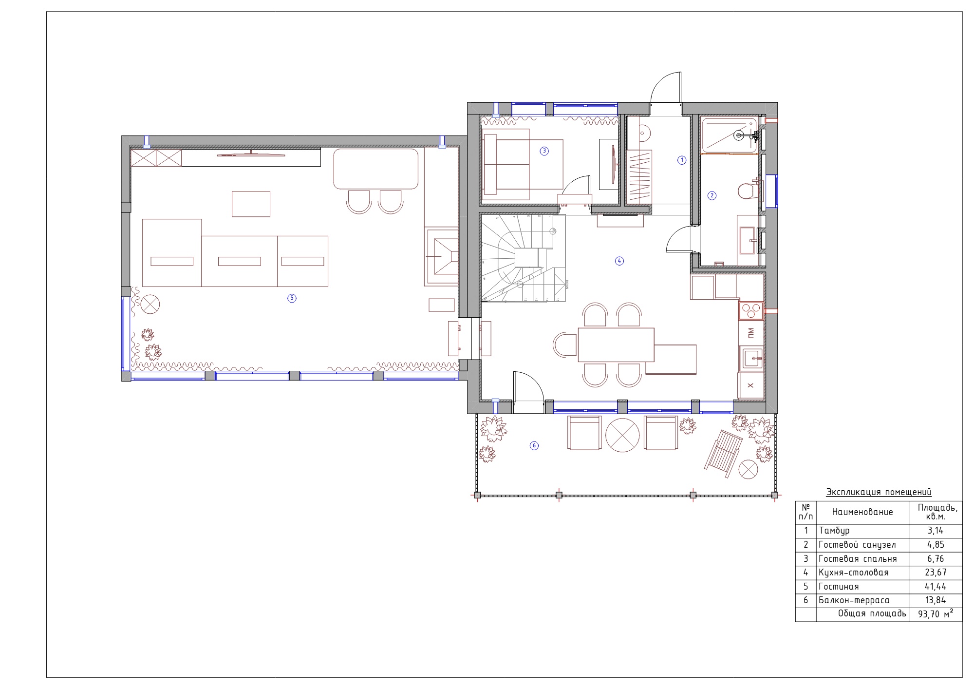
Планировочное решение

Мы сохранили исходную структуру дома, разделив его на старую часть из бруса и новую каркасную пристройку. В цокольном этаже обустроили активную зону с мастерской, игровой и прачечной. Первый уровень отвели под общую гостиную, кухню-столовую и гостевую спальню с террасой. На втором этаже разместили приватный блок с мастер-спальней и двумя детскими комнатами.

Кухня-столовая
Кухня-столовая
Кухня-столовая
Кухня-столовая

Кухня-столовая

Кухонный остров из крупноформатного керамогранита плавно переходит в деревянный обеденный стол, объединяя зоны готовки и приема пищи. В конструкцию острова встроили выкатные ящики для хранения и скрытые розетки для подключения мелкой бытовой техники. 

Фасады кухни выполнили в тон деревянных стен, чтобы растворить рабочую зону в интерьере. Технику расположили в шаговой доступности, оставив свободные проходы для большой семьи. Панорамные окна закрыли горизонтальными жалюзи, которые мягко дозируют естественный свет.

 

Гостиная
Гостиная
Гостиная
Гостиная

Гостиная

Центральное место в гостиной занял низкий диван с посадкой на две стороны. Одна часть дивана направлена на ТВ-группу, вторая позволяет любоваться видом на природу через панорамное остекление. Потолок оформили открытой стропильной системой, где балки выкрасили в контрастный графитовый цвет. 

Трековая система освещения подчеркивает высоту помещения и архитектуру крыши. Крупноформатный керамогранит в зоне камина визуально связывает пол и вертикальные поверхности в единый объем.

 

Рассчитайте стоимость дизайн-проекта, ремонта и материалов

1 из 5 вопросов

01

Выберите ваш тип жилья

У нас есть архитекторы и дизайнеры интерьеров, которые специализируются на конкретном типе помещений. Мы поможем составить грамотный дизайн-проект.

2 из 5 вопросов

02

Укажите общую площадь помещений

Для больших помещений мы снижаем стоимость закупки материалов за счет наших партнеров - строительных компаний.

м2

3 из 5 вопросов

03

В каком стиле вы хотите интерьер?

Возможно, Вы уже давно интересуетесь интерьером, и пришла пора проанализировать результат. А может быть, Вы пока не знаете, какому стилю отдать предпочтение. Выберите тот стиль, которое вам нравится больше всего.

4 из 5 вопросов

04

Когда вы хотите начать ремонтные работы?

Мы сможем заранее оценить нагруженность своей команды дизайнеров и организовать работу строителей.

5 из 5 вопросов

05

Куда отправить варианты расчета?

После отправки формы вы попадете на страницу, где сможете получить бесплатное руководство "Схема ремонта от А до Я". Мы свяжемся с Вами - и ответим на все вопросы, в течение 15 минут в рабочее время (с 10:00 до 19:00 по МСК).

Мастер-спальня
Мастер-спальня
Мастер-спальня
Мастер-спальня

Мастер-спальня

Стены спальни сохранили фактуру натурального дерева, которую подчеркнули направленным светом и лаконичной мебелью. Кровать дополнили мягким изголовьем и тумбами в минималистичном стиле без лишнего декора. 

Мансардный потолок подшили листами ГКЛВ для создания ровной поверхности и улучшения акустики помещения. Напротив кровати установили систему хранения, фасады которой повторяют ритм деревянной отделки стен.

 

Холл второго этажа
Холл второго этажа
Холл второго этажа
Холл второго этажа

Холл второго этажа

Холл второго этажа продолжает эстетику натурального дерева с вертикальной обшивкой стен и открытыми потолочными балками. В центре пространства расположена лестница с ограждением из тонких деревянных реек и округлым поручнем. 

У окна обустроили зону отдыха с мягким креслом в обивке «букле», небольшим кофейным столиком и торшером. Освещение организовано с помощью подвесных светильников-колец с текстурой камня и точечных черных спотов на потолке.

 

Прихожая
Прихожая

Прихожая

Входную зону оформили в теплых тонах с использованием керамогранита под светлый камень на полу. Стены объединяют фактуру оцилиндрованного бруса и лаконичные вертикальные панели с текстурой дерева. 

Для хранения одежды установили встроенный шкаф с деревянными фасадами и узкими зеркальными вставками, которые визуально расширяют узкое пространство. Зону дополнили декоративной консолью черного цвета и мягкими пуфами.

 

Дополнительная информация о проекте

Стиль и цветовая гамма

Интерьер сочетает японский минимализм и скандинавскую практичность с этническими деталями. Базовая палитра включает натуральные оттенки светлого дерева, песочный беж и природный зеленый. Контрастные графитовые акценты в элементах лестницы и светильниках добавляют пространству четкости.

Материалы

Клееный брус и шпон — формируют основу интерьера, сохраняя экологичность и природную фактуру стен.

Крупноформатный керамогранит — применен в отделке острова, камина и мокрых зон для защиты поверхностей.

Кварцвинил под камень — выбран для пола первого этажа за счет высокой износостойкости и совместимости с теплым полом.

Микроцемент — использован в отделке лестницы для создания бесшовной и прочной поверхности.

Интересные находки

Двусторонний диван — позволяет одновременно использовать гостиную для семейного кинопросмотра и отдыха у окна.

Остров-стол — монолитная конструкция из камня и дерева заменяет классическую обеденную группу и увеличивает рабочую зону.

Контрастные балки — графитовый цвет стропильной системы подчеркивает геометрию крыши и высоту потолков.

Инженерная интеграция — система «умный дом» и геотермальное отопление скрыты за лаконичными деревянными панелями.

Отправьте заявку на консультацию или напишите нам в мессенджер

Мы составим для вас четкий путь от начала до результата, который потребует от вас минимальных усилий

Напишите нам!
Посчитаем точную стоимость вашего проекта