ПРЕМИАЛЬНЫЙ ДИЗАЙН ИНТЕРЬЕРА квартиры в ЖК «GloraX Premium Василеостровский» в стиле минимализм с элементами роскоши - 74 м²
Задачи проекта
-
Сделать максимально необычный интерьер премиум класса, сдержанный в тёплых оттенках
-
Использовать натуральный камень в дизайне
-
Разработать эффектный потолок с разными уровнями и материалами
-
Использовать необычные декоративные элементы
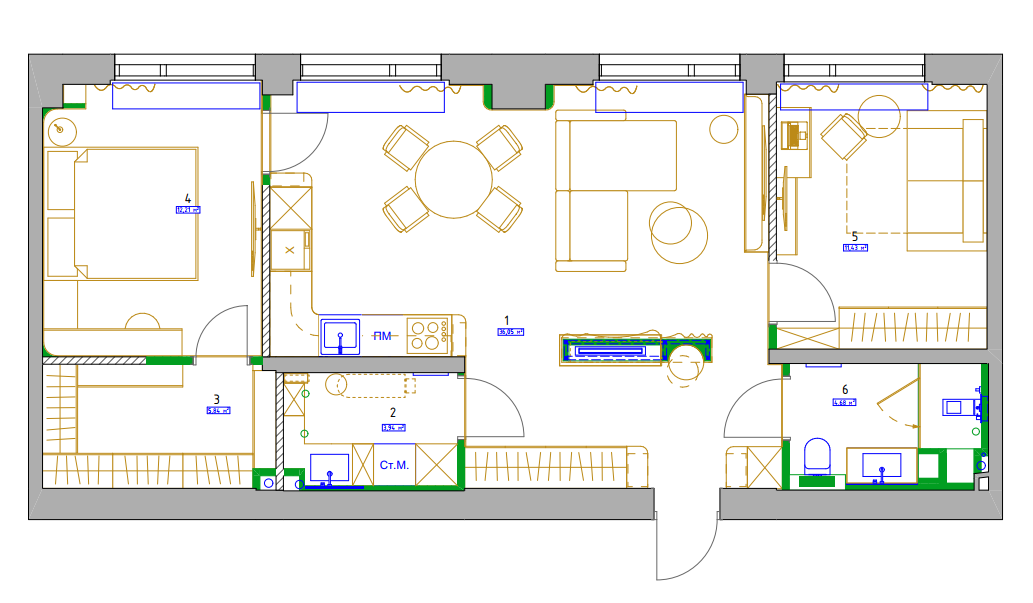
Планировка
Описание проекта
ЗАДАЧИ ПРОЕКТА
Изначально перепланировка не требовалась, но для удобства были перенесены дверные проёмы. Такое решение позволило сохранить существующую логику квартиры, но при этом добиться более правильной расстановки мебели и зонирования.
Кухня
Кухня в этом проекте получилась не только красивой, но и очень удобной. Фартук и столешница сделаны из натурального кварцита с тёплым рисунком — он сразу задаёт настроение и выглядит дорого.
Всё продумано для практичности: техника встроена, рабочие поверхности расположены так, чтобы готовить было удобно, а шкафы идут до потолка и дают много места для хранения. Кухня плавно переходит в гостиную и выглядит как единое пространство. Здесь одинаково комфортно и готовить, и собираться с друзьями за столом.
Гостиная
В гостиной мы были использованы разные материалы: стена с телевизором отделана натуральным камнем с выразительным рисунком, а рядом разместили декоративные панели и латунные элементы.
Камин стал ещё одной важной деталью. С парадной стороны он выглядит как эффектный элемент с облицовкой из камня и металла, а с обратной стороны в его конструкции спрятаны шкафчики для хранения. Такое решение позволило объединить эстетику и практичность: гостиная выглядит лёгкой и аккуратной, но при этом остаётся удобной для жизни.
Зона дивана и кресел организована так, чтобы здесь было комфортно и одному вечером, и с гостями. Потолок сделали на разных уровнях с подсветкой — за счёт этого пространство выглядит выше и необычнее, как и просил заказчик.
Спальня
В спальне главным акцентом стала декоративная стена за изголовьем кровати. Фактурные панели с мягким золотистым переливом сразу задают настроение и делают интерьер особенным.
Особое внимание уделили прикроватной зоне. С одной стороны — классическая тумба, а с другой применили необычный приём: радиусная панель со встроенной подсветкой и подвесной полкой. Такое решение смотрится легко, экономит место и добавляет интерьеру индивидуальности.
Дополняют композицию консоль с зеркалом и тёплые текстильные акценты. В итоге спальня получилась спокойной, но при этом выразительной, без излишней симметрии и с ярким штрихом премиального дизайна.
Гардеробная при спальне
Гардеробная сделана так, чтобы хозяину было удобно хранить все вещи в одном месте и быстро находить нужное. Здесь есть открытые полки, выдвижные ящики и секции со штангами — каждая категория одежды и аксессуаров получила своё место.
Шкафы выполнены из шпонированных панелей тёплого оттенка, с подсветкой, которая создаёт ощущение дорогого бутика.
Гостевая спальня
Гостевая спальня оформлена так, чтобы она была удобной и для отдыха, и для работы. По стене разместили шкафы со встроенными открытыми полками и подсветкой — это добавляет глубины и создаёт тёплое настроение. В центре комнаты — диван, который легко превращается в полноценное спальное место для гостей.
Напротив расположена ТВ-зона с консолью и рабочим столом, что позволяет использовать комнату как кабинет. Спокойные оттенки мебели и текстиля поддерживают общую концепцию квартиры — современный минимализм с элементами роскоши.
Ванная комната
В ванной соединили несколько фактур: тёплые панели, глубокий зелёный оттенок плитки и латунные детали. Душевая зона просторная, с удобным входом и современной системой «тропический душ». Столешница с раковиной выполнена из камня — это не только красиво, но и долговечно: поверхность устойчива к влаге и легко ухаживается. Подсветка встроена так, чтобы удобно было пользоваться зеркалом, а вечером свет становился мягким и расслабляющим.
Каждый элемент здесь работает на комфорт: есть место для хранения, продуманная организация аксессуаров и тёплый полотенцесушитель.
Постирочная
Постирочную оформили в том же стиле, что и всю квартиру — она выглядит аккуратно и современно. Здесь установлена колонна из стиральной и сушильной машины, рядом встроена раковина и шкафы для хранения бытовой химии и белья.
Такое решение экономит время и пространство: всё, что связано со стиркой и уходом за вещами, собрано в одной зоне. Закрытые фасады скрывают технику и делают помещение визуально спокойным.
Прихожая
Стены в прихожей оформлены панелями с деревом и декоративными вставками. Использованы плавные радиусные элементы и латунные детали.
Встроенные шкафы помогают спрятать всю одежду и обувь, а значит, прихожая всегда остаётся аккуратной и просторной. Зеркало и продуманная подсветка визуально расширяют коридор и добавляют света.
Пол выполнен из камня с выразительным рисунком — практично и красиво: легко ухаживать и выглядит дорого. Благодаря этим решениям прихожая стала не просто местом, где разуваются, а полноценной частью интерьера, которая задаёт настроение на входе.
СТИЛЬ И ЦВЕТОВАЯ ГАММА
Интерьер выдержан в стиле современного минимализма с элементами роскоши. Это проявляется в чистых линиях, встроенной мебели и продуманной геометрии, которые дополненны дорогими материалами и необычными деталями — радиусными фасадами, декоративными панелями, латунными вставками.
Цветовая гамма построена на тёплых золотистых оттенках и глубоких тонах дерева. Основной акцент сделан на американском орехе, который задаёт богатую текстуру и ощущение статуса. В качестве дополнений использованы спокойные бежевые и светлые оттенки, чтобы подчеркнуть акценты и не перегрузить пространство.
МАТЕРИАЛЫ
Натуральный камень — кварцит: применён в зоне кухни и гостиной, стал главным акцентом пространства. Его тёплые переливы добавляют глубину и ощущение уникальности.
Шпонированные панели МДФ: задали богатую текстуру дерева и стали фоном для мебели и декоративных элементов.
Окрашенные панели с фрезеровкой: внесли ритм и лёгкий графичный акцент, не утяжеляют интерьер.
Паркет из натурального дерева: создаёт ощущение тепла, благородства и уюта, при этом остаётся практичным для повседневной жизни.
ИНТЕРЕСНЫЕ НАХОДКИ
Встроенная мебель с премиальными деталями — радиусные и фрезерованные фасады, латунные вставки и профили делают встроенные конструкции не просто функциональными, а настоящим украшением интерьера. Телевизор встроен прямо в мебель, что подчёркивает чистоту линий и современный подход.
Хранение над камином — дополнительное пространство для вещей спрятано в аккуратных нишах, что позволяет поддерживать порядок и не загромождать комнату.
Декоративные панели на стенах — сложные фактуры и продуманная геометрия создают акценты и усиливают ощущение уникальности в каждой зоне квартиры.
ИТОГ
Дизайн-проект квартиры в ЖК «GloraX Premium Василеостровский» стал ярким примером того, как можно объединить современный минимализм с элементами роскоши. Мы выполнили все пожелания заказчика: интерьер получился необычным, но при этом тёплым и сдержанным, с акцентом на премиальные материалы и нестандартные решения.
В проекте использованы радиусные фасады, декоративные панели и латунные вставки, натуральный кварцит стал главным акцентом в гостиной и кухне. Потолки с разными уровнями и плавными линиями добавили динамики и сделали пространство визуально выше. Каждая зона продумана так, чтобы быть не только красивой, но и практичной: скрытые системы хранения, постирочная, полноценная гардеробная, универсальная гостевая спальня.
В результате квартира превратилась в статусное, функциональное пространство, где каждая деталь работает на эстетику и удобство. Этот проект показывает, что премиум-дизайн — это не только впечатляющая картинка, но и комфорт для жизни.
Сколько стоит дизайн-проект и ремонт: реальные примеры с ценами
Портфолио с готовыми проектами и финальными
сметами — без скрытых затрат и неожиданных расходов
Ещё проекты
-
Посмотреть проектДизайн интерьера квартиры в стиле современный минимализм с зелеными акцентами в ЖК "Клубный дом МАНХЭТТЭН" - 114 м2
-
Посмотреть проектДизайн интерьера квартиры в ЖК «Lotos club» в современном стиле с натуральным камнем и деревом — 175 м²
-
Посмотреть проектДизайн интерьера квартиры в ЖК "Петровская Доминанта" с зелеными акцентами
-
Посмотреть проектСовременный дизайн интерьера для большой семьи в экостиле — 247 м2
Напишите нам!
Посчитаем точную стоимость вашего проекта
Получите портфолио с готовыми проектами и финальными сметами
Оставьте контакты и мы вам отправим портфолио реализованных проектов с точными ценами
Получите точную стоимость дизайн-проекта
Оставьте контакты, и мы предоставим расчет полной стоимости проекта и бесплатную консультацию дизайнера у вас на объекте.
Получите точную стоимость дизайн-проекта
Оставьте контакты, и мы предоставим расчет полной стоимости проекта и бесплатную консультацию дизайнера у вас на объекте.
Заполните форму
и мы свяжемся с вами в ближайшее время для обсуждения деталей вашего проекта.
Узнайте точную стоимость ремонта
Оставьте контакты, и мы предоставим расчет полной стоимости проекта и бесплатную консультацию дизайнера у вас на объекте.
Выбрать дизайнера
Оставьте контакты, и мы предоставим расчет полной стоимости проекта и бесплатную консультацию дизайнера у вас на объекте.
Консультация
Оставьте контакты, и мы предоставим расчет полной стоимости проекта и бесплатную консультацию дизайнера у вас на объекте.
Заполните контактную форму
Мы свяжемся с вами в ближайшее время, обсудим ваш дизайн-проект и рассчитаем стоимость
Заполните контактную форму
Мы свяжемся с вами в ближайшее время, обсудим ваш дизайн-проект и рассчитаем стоимость
Оставьте заявку и мы расскажем о наших услугах подробнее
Укажите контакты, и наш менеджер свяжется в вами.
Заполните контактную форму
Мы свяжемся с вами в ближайшее время, обсудим ваш дизайн-проект и рассчитаем стоимость
Экскурсия по объектам студии Artum
Посетите один из наших реализованных проектов и загляните на стройку — всё можно посмотреть вживую. Запишитесь прямо сейчас, чтобы выбрать удобное время для экскурсии.