ДИЗАЙН ИНТЕРЬЕРА КВАРТИРЫ в ЖК «Grand View» в стиле неоклассика - 126 м²
Задачи проекта
-
Присоединить лоджию к жилым помещениям
-
Организовать два полноценных санузла и постирочную
-
Создать много мест для хранения
-
Вписать камин (имитацию) в интерьер
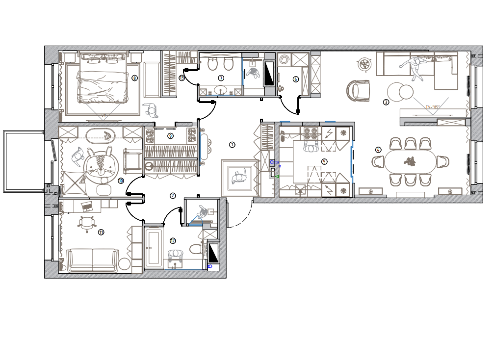
Планировка
Описание проекта
ЗАДАЧИ ПРОЕКТА
Первоначально квартира имела большую лоджию, один балкон, два квадратных помещения в левой части и просторную комнату в правой части. Мы изменили структуру: присоединили лоджию, увеличив гостиную и столовую, разделили кухню и столовую, сделали два полноценных санузла и постирочную. В холле добавили зону хранения, а в спальне организовали две гардеробные. В результате каждый метр стал функциональным и отвечает образу жизни семьи.
Кухня
Главным пожеланием хозяйки было иметь кухню, где можно готовить спокойно, и не мешать остальной жизни квартиры. Мы сделали её изолированной: все запахи и шум остаются внутри, а гости в это время наслаждаются ужином в столовой или отдыхом в гостиной.
Рабочая зона оформлена в П-образной планировке — всё под рукой, от плиты до мойки и столешниц. Это удобно и экономит время на готовке.
Столовая
Столовая зона получилась благодаря присоединённой лоджии — теперь здесь просторно и светло. Мы разместили большой обеденный стол на 8 персон, за которым можно собираться всей семьёй или принимать гостей. Пространство продумано так, чтобы и праздничный ужин, и повседневные трапезы выглядели красиво и удобно.
Особый акцент в столовой — декоративный камин из гипса. Он не требует ухода, но добавляет интерьеру атмосферности. Внутри можно разместить свечи, создать мягкий свет и ощущение камерности вечера.
Окна со встроенными глубокими подоконниками можно использовать как дополнительные места для сидения или для размещения растений. Это делает столовую ещё более живой и функциональной.
Гостиная
Гостиная — сердце квартиры, место для общения и отдыха. За счёт присоединённой лоджии и продуманной планировки здесь получилось просторное помещение, где легко разместить большую компанию.
Главный акцент — диван длиной 4,5 метра. На нём можно собраться всей семьёй, пригласить друзей или расположиться с бокалом вина, наслаждаясь атмосферой. Стены мы оформили молдингами и современными картинами, которые хозяйка коллекционирует. Каждое произведение стало частью интерьера, а в холле выделено место для главной картины — она встречает гостей с порога.
Спальня
Главная спальня задумывалась как личное пространство хозяев, куда никто лишний не заходит. Здесь всё организовано для максимального удобства: сразу две гардеробные зоны избавляют от беспорядка и делают хранение одежды продуманным. Рядом расположен мастер-санузел — не нужно выходить в общие помещения, всё необходимое под рукой.
В отделке спальни мы использовали глубокие оттенки и сложные фактуры. Изголовье кровати подчеркнуто декоративными панелями и мягкой подсветкой, создающей камерную атмосферу. Текстиль и ковёр добавляют тактильности, а люстра в классической форме завершает образ парадной, но при этом приватной комнаты.
Гардеробные при спальне
В мастер-спальне мы предусмотрели сразу две гардеробные. Это было одним из главных пожеланий заказчиков. Такое решение оказалось очень удобным: вещи можно распределить по сезонам или разделить между хозяевами, а сама спальня остаётся свободной — без лишних шкафов и нагромождения. В каждой гардеробной есть системы хранения на разную высоту, полки и закрытые секции.
Санузел при спальне
Мастер-санузел мы расположили прямо при спальне, чтобы хозяевам не нужно было пользоваться общими зонами.
В отделке использован керамогранит под мрамор: он долговечный, практичный и визуально расширяет пространство. Тёплые акценты и светлые оттенки создают ощущение лёгкости, а встроенные системы хранения помогают держать всё необходимое под рукой, не перегружая интерьер.
Детская комната
В детской мы предусмотрели не только спальное место, но и полноценное хранение — шкафы и полки для вещей ребёнка. Пространство организовано так, чтобы всё необходимое было под рукой, а комната оставалась свободной для игр. Детская получилась удобной и практичной: здесь есть всё необходимое для повседневной жизни, при этом она легко адаптируется под новые задачи семьи.
Гостевая спальня
Гостевая спальня в этом проекте совмещает сразу две функции — это и полноценная спальня для гостей, и удобный кабинет для хозяев.
Мы разместили диван-кровать, который легко трансформируется: днём он служит местом для отдыха или чтения, а при необходимости превращается в комфортное спальное место. Рядом — рабочая зона с консолью и креслом, где удобно работать за ноутбуком или заниматься личными делами.
Функциональность дополнена элегантным оформлением: светлая мебель, тёмные акценты и ковёр с ярким геометрическим рисунком создают живую атмосферу. Хрустальная люстра и текстильные шторы делают комнату по-настоящему гостеприимной.
Такая организация пространства позволяет использовать комнату по-разному: и как рабочий кабинет, и как уютную спальню для приезжающих гостей.
Ванная комната
Ванная комната в этом проекте выглядит как отдельная зона отдыха. Здесь мы сделали полноценную ванну — она стала центром пространства. Отделка под мрамор делает интерьер нарядным и современным, но при этом материал остаётся практичным и простым в уходе. Мы добавили широкую столешницу и шкафчики — всё, что нужно, всегда под рукой, но визуально комната остаётся лёгкой и аккуратной.
Свет тоже играет роль: можно включить яркий верхний свет, а можно оставить мягкую подсветку и превратить ванную в маленький домашний спа.
Постирочная
Одна из ключевых задач, которую поставили заказчики. Им было важно, чтобы в квартире появилось отдельное помещение для стирки и хранения бытовых вещей.
Мы предусмотрели здесь стиральную и сушильную машины, полки для бытовой химии и место для гладильной доски. Всё организовано так, чтобы техника и хозяйственные мелочи не мешали в жилых зонах.
Такое решение разгружает кухню и санузлы: теперь они не заставлены техникой, а квартира выглядит аккуратно. Постирочная взяла на себя весь «быт» и сделала повседневные задачи удобнее и быстрее.
Прихожая
Прихожая в этой квартире получилась просторной и удобной. Мы добавили здесь дополнительные места для хранения, чтобы вся верхняя одежда, обувь и аксессуары не попадали в жилые зоны.
Шкафы встроены в отделку, поэтому они не загромождают пространство, а выглядят как часть интерьера. Зеркало визуально расширяет прихожую и позволяет быстро проверить образ перед выходом.
Такое решение помогает поддерживать порядок: вся сезонная одежда и вещи хранятся на своём месте, а квартира встречает хозяев и гостей аккуратным, организованным пространством.
СТИЛЬ И ЦВЕТОВАЯ ГАММА
В проекте выбрана неоклассика с современными деталями — стиль, который подчёркивает статус квартиры и в то же время остаётся практичным для жизни.
Основу палитры составляют сложные, «сочные» оттенки:
- охра и горчичный добавляют тепла,
- винный и терракота создают акценты,
- пудровые и сложные белые оттенки уравновешивают композицию.
МАТЕРИАЛЫ
Паркетная доска — натуральное дерево добавляет тепла и благородства, а также долговечна при правильном уходе.
Керамогранит — использован в санузлах и постирочной. Он стойкий к влаге, легко моется и служит долгие годы, сохраняя красивый вид.
Искусственный камень — применён для рабочих поверхностей. Он прочный, не боится пятен и удобен в уходе, поэтому остаётся идеальным выбором для кухни.
ИНТЕРЕСНЫЕ НАХОДКИ
Глубокие подоконники — шириной около 35 см. Их можно использовать как дополнительное сиденье у окна, место для растений или декоративных предметов.
Разделение кухни и столовой — кухня изолирована, чтобы хозяйка могла спокойно готовить, а гости в это время отдыхали за большим столом или в гостиной.
Коллекция современного искусства — картины хозяйки встроены в интерьер. Главное произведение встречает гостей уже в холле и сразу задаёт настроение квартиры.
ИТОГ
Интерьер квартиры в ЖК «Grand View» стал гармоничным воплощением неоклассики с современными деталями. Мы учли все пожелания заказчиков: присоединили лоджию, сделали отдельную постирочную, организовали два полноценных санузла и продумали множество систем хранения.
Перепланировка позволила эффективно использовать пространство: получилась изолированная кухня, просторная столовая с камином, парадная гостиная с местом для коллекции картин, мастер-блок со спальней, двумя гардеробными и собственным санузлом, а также отдельная детская, гостевая спальня и постирочная.
Каждая зона спроектирована под конкретные задачи семьи. Интерьер отражает любовь хозяев к искусству, вину и красивым деталям, а в основе его — практичность, функциональность и выразительная эстетика.
Сколько стоит дизайн-проект и ремонт: реальные примеры с ценами
Портфолио с готовыми проектами и финальными
сметами — без скрытых затрат и неожиданных расходов
Ещё проекты
-
Посмотреть проектДизайн интерьера квартиры в стиле неоклассика в ЖК «Северная Корона» - 162 м²
-
Посмотреть проектДизайн интерьера квартиры в стиле современная классика с элементами французского стиля в ЖК «Белый остров» - 70 м²
-
Посмотреть проектДизайн интерьера квартиры в ЖК "Familia" в современном стиле с элементами ар-деко - 82 м²
-
Посмотреть проектДизайн интерьера квартиры в ЖК «Русский Дом», роскошная современная классика — 144 м²
Напишите нам!
Посчитаем точную стоимость вашего проекта
Получите портфолио с готовыми проектами и финальными сметами
Оставьте контакты и мы вам отправим портфолио реализованных проектов с точными ценами
Получите точную стоимость дизайн-проекта
Оставьте контакты, и мы предоставим расчет полной стоимости проекта и бесплатную консультацию дизайнера у вас на объекте.
Получите точную стоимость дизайн-проекта
Оставьте контакты, и мы предоставим расчет полной стоимости проекта и бесплатную консультацию дизайнера у вас на объекте.
Заполните форму
и мы свяжемся с вами в ближайшее время для обсуждения деталей вашего проекта.
Узнайте точную стоимость ремонта
Оставьте контакты, и мы предоставим расчет полной стоимости проекта и бесплатную консультацию дизайнера у вас на объекте.
Выбрать дизайнера
Оставьте контакты, и мы предоставим расчет полной стоимости проекта и бесплатную консультацию дизайнера у вас на объекте.
Консультация
Оставьте контакты, и мы предоставим расчет полной стоимости проекта и бесплатную консультацию дизайнера у вас на объекте.
Заполните контактную форму
Мы свяжемся с вами в ближайшее время, обсудим ваш дизайн-проект и рассчитаем стоимость
Заполните контактную форму
Мы свяжемся с вами в ближайшее время, обсудим ваш дизайн-проект и рассчитаем стоимость
Оставьте заявку и мы расскажем о наших услугах подробнее
Укажите контакты, и наш менеджер свяжется в вами.
Заполните контактную форму
Мы свяжемся с вами в ближайшее время, обсудим ваш дизайн-проект и рассчитаем стоимость
Экскурсия по объектам студии Artum
Посетите один из наших реализованных проектов и загляните на стройку — всё можно посмотреть вживую. Запишитесь прямо сейчас, чтобы выбрать удобное время для экскурсии.