Дизайн интерьера квартиры в ЖК «АКВИЛОН LEAVES» в стиле современный минимализм - 106 м²
Задачи проекта
-
Предусмотреть дополнительную спальню для старшего сына
-
Расположить рабочее место при спальне супругов
-
Сделать интерьер в современном стиле и темных оттенках
-
Добавить элементы имитации скалы в отделку интерьера
-
Сделать оба санузла общими и удобными для всей семьи
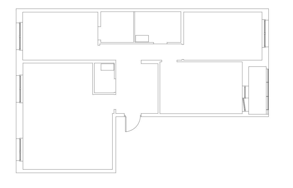
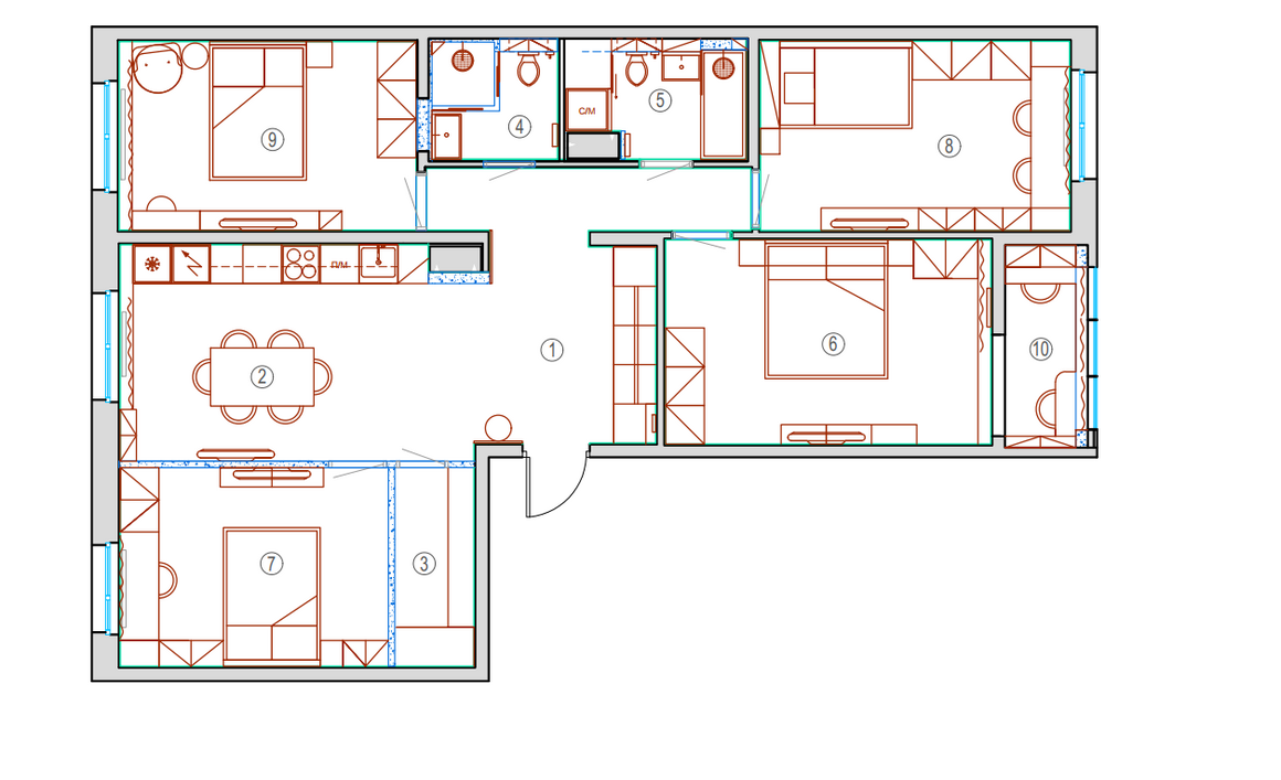
Планировка
Описание проекта
ЗАДАЧИ ПРОЕКТА
Изначально в планировке отсутствовала отдельная кладовка и спальня для старшего сына. Чтобы решить задачи, мы перепланировали кухню-гостиную: поставили перегородку и получили полноценную дополнительную спальню. При этом удалось выделить и небольшую кладовую рядом с кухней.
Также мы совместили балконные зоны со спальнями и предусмотрели там рабочие места. В санузлах изменили входы: зашили проем из спальни и сделали удобный вход в душевую из коридора.
Кухня-столовая
Кухня-столовая здесь — это место, где семья проводит больше всего времени. Мы объединили её с холлом, и за счёт этого квартира сразу стала казаться просторнее и светлее.
Рабочая зона собрана в одну линию: всё под рукой, готовить удобно и без суеты. Рядом — кладовая, куда можно убрать лишнюю технику и запасы. Это сильно разгружает интерьер и помогает поддерживать порядок.
В центре — большой обеденный стол. Он заменяет гостиную: за ним можно и поесть, и пообщаться, и собраться всей семьёй вечером. Широкие проходы позволяют свободно передвигаться, даже когда за столом все места заняты.
Главный акцент — декоративная «скала» на кухонной стене. Она выглядит как арт-объект и сразу задаёт настроение всей зоне. Благодаря ей интерьер воспринимается современным и запоминающимся.
Спальня
Эта спальня стала личным пространством заказчиков, где есть всё нужное для отдыха и работы. Одним из пожеланий было организовать рабочее место, и мы использовали для этого лоджию: там появились удобные столы у окна и полки для хранения. Днём сюда попадает много света, поэтому работать приятно и комфортно.
Основная часть спальни получилась спокойной и камерной. Кровать с мягким изголовьем и тёплая подсветка за панелями создают атмосферу уюта и защищённости. Встроенные шкафы мы спрятали в архитектуру стен, чтобы не загромождать пространство. Подсветка внутри делает их не только удобными, но и эффектными.
За счёт тёмных древесных оттенков и мягкого текстиля спальня выглядит стильно и современно, но при этом остаётся очень «жилая».
Спальня старшего сына
Одним из ключевых пожеланий семьи было выделить отдельную комнату для старшего сына. Для этого мы перепланировали кухню-столовую и за счёт перегородки получили полноценную спальню.
В интерьере мы сделали акцент на функциональность: кровать, система хранения и рабочее место у окна. Стол встроен в нишу, есть полки и удобное освещение — всё, что нужно для учёбы и работы.
В отделке использованы тёмные оттенки и строгие линии — это подчёркивает характер комнаты и отвечает возрасту хозяина. Не перегружает пространство деталями, мы сделали его современным и удобным для жизни.
В итоге сын получил своё личное пространство, где можно спокойно учиться, отдыхать и принимать друзей.
Спальня младшего сына
Для младшего сына мы сделали комнату, в которой можно и играть, и учиться. Одним из пожеланий родителей было предусмотреть рабочее место у окна — там всегда много света, и ребёнку комфортно заниматься. Рядом встроенные шкафы и открытые полки: книги, игрушки и коллекции теперь имеют своё место, а порядок наводится быстро.
Главный акцент комнаты — стена с рисунком космонавта. Она задаёт настроение всей комнате: яркая, динамичная и вдохновляющая. Такой элемент помогает ребёнку чувствовать, что пространство создано именно для него.
Мебель выбрана простая и функциональная: кровать с мягким изголовьем, лёгкий стол, удобное кресло. Цветовая палитра спокойная — белый, серый, дерево, но с ярким синим акцентом, который делает интерьер живым.
В итоге получилась детская, где ребёнок может и играть, и учиться, и отдыхать. Пространство «растёт» вместе с ним, оставаясь актуальным на годы вперёд.
Спальня бабушки
В этой комнате выбрана мягкая гамма: светлые стены, текстиль в бежевых тонах и акценты из золота. Благодаря этому спальня выглядит очень лёгкой и уютной.
Здесь есть всё необходимое: удобная кровать, шкаф для хранения и небольшой туалетный столик у окна. Освещение подобрали многоуровневое: потолочная люстра, бра и подсветка мебели. Это даёт возможность менять атмосферу — от яркой для чтения до мягкой вечерней.
Ванная комната
Ванная комната получилась эффектной за счёт тёмного камня и подсветки по периметру. Такой приём делает пространство визуально глубоким и уютным.
Здесь есть всё необходимое для комфортного использования: полноценная ванна с душевой зоной, удобная раковина с тумбой и система хранения, спрятанная в нишах. Благодаря этому интерьер выглядит аккуратно — ничего лишнего на виду.
Подсветка продумана так, чтобы в комнате было достаточно света без ощущения «холодности». Можно включить яркое освещение утром или выбрать мягкий вариант вечером, когда хочется расслабиться.
Практичные материалы — керамогранит и влагостойкие панели — делают помещение не только красивым, но и долговечным.
Второй санузел
Одна из задач — превратить санузлы в общие, чтобы они подходили для всей семьи. Ммы изменили планировку: убрали вход из спальни и организовали удобный доступ в санузел с коридора. В итоге получилось два полноценных пространства, рассчитанных на ежедневное использование.
Во втором санузле мы предусмотрели душевую зону с прозрачными перегородками. Это практичное решение: занимает меньше места, чем ванна, и отлично подходит для быстрого использования в течение дня.
Акцентом стала стена с зелёной плиткой в вертикальной раскладке. В сочетании с камнем и деревом интерьер выглядит современно и выразительно. Подвесной унитаз, тумба с раковиной и встроенные ниши позволяют удобно хранить все необходимые мелочи и при этом поддерживать порядок.
Такой санузел получился не только стильным, но и очень удобным: он действительно работает для всей семьи и полностью отвечает задачам, которые ставили заказчики.
Прихожая
Прихожая здесь объединена с кухней-столовой, но при этом она не потеряла своей функциональности. С самого входа пространство выглядит аккуратным и современным: встроенные шкафы скрывают верхнюю одежду и обувь, а большое зеркало с подсветкой визуально расширяет зону и удобно в повседневной жизни.
Мы использовали спокойные материалы и приглушённые цвета, чтобы прихожая плавно переходила в общую часть квартиры. Акцентом стали мягкие зелёные пуфы — они добавляют живости и делают пространство удобным, когда нужно присесть, надеть обувь или оставить сумку.
СТИЛЬ И ЦВЕТОВАЯ ГАММА
В основе проекта — современный минимализм. Пространство построено на чётких линиях, лаконичной мебели и тщательно подобранных акцентах.
Цветовая палитра держится на тёмных и спокойных тонах: графит, глубокий серый, тёплый беж и оттенки натурального дерева. Они создают ощущение основательности и гармонии. В детских спальнях добавлены яркие акценты — насыщенный синий, принты и графика на стенах, чтобы подчеркнуть характер и индивидуальность детей. В спальне бабушки, наоборот, выбраны светлые и мягкие оттенки с золотыми деталями, что придало пространству лёгкость и женственность.
МАТЕРИАЛЫ
Керамогранит — в санузлах и на полу. Это долговечный и влагостойкий материал, который сохраняет свой вид даже при активном использовании.
Кварц-винил — в жилых комнатах. Он прочный, устойчив к царапинам и при этом тёплый на ощупь, поэтому отлично подходит для семьи с детьми.
Декоративные штукатурки и краски — для стен, чтобы добиться ровной фактуры и аккуратного внешнего вида.
3D-панели и мебельные панели ЛДСП — для оформления акцентных стен и встроенной мебели. Они добавляют глубину и ритм интерьеру.
Натуральные текстуры дерева и камня — создают атмосферу современного минимализма, но при этом добавляют тепла и естественности.
ИНТЕРЕСНЫЕ НАХОДКИ
Объединённая кухня с входной зоной холла — за счёт этого приёма пространство стало более открытым и визуально просторным. С самого входа квартира встречает современным образом и плавно переходит в жилую часть.
«Скала» в зоне кухни — декоративная панель с фактурой натурального камня стала ярким акцентом интерьера. Она выглядит как арт-объект и задаёт настроение всей кухонной зоне.
Совмещение балконной зоны и спальни хозяев — благодаря этому решению удалось организовать полноценный кабинет прямо в мастер-блоке. Теперь у каждого из супругов есть отдельное рабочее место с естественным светом.
ИТОГ
Дизайн-проект квартиры в ЖК «Аквилон leaves» стал гармоничным воплощением современного минимализма. Перепланировка позволила выполнить все задачи заказчиков: выделили отдельную спальню для старшего сына, сделали санузлы общими для удобства всей семьи, организовали рабочие места для супругов в спальне с присоединённой лоджией.
Квартира получилась функциональной и стильной одновременно: просторная кухня-столовая с акцентной «скалой», мастер-спальня с кабинетом, современные детские и светлая спальня для бабушки. Каждый метр здесь работает на семью, а интерьер сохраняет лёгкость, цельность и индивидуальный характер.
Сколько стоит дизайн-проект и ремонт: реальные примеры с ценами
Портфолио с готовыми проектами и финальными
сметами — без скрытых затрат и неожиданных расходов
Ещё проекты
-
Посмотреть проектБрутальный дизайн интерьера квартиры с характером в ЖК "Grand View" - 87 м2
-
Посмотреть проектСовременный дизайн интерьера квартиры с темными акцентами в ЖК "Стеллар сити" - 62 м2
-
Посмотреть проектДизайн проект квартиры под сдачу и ремонт в темных тонах в ЖК "Притяжение" - 45 м2
-
Посмотреть проектCовременная квартира, дизайн интерьера в светло-темных тонах в ЖК "Георг Ландрин" — 120 м2
Напишите нам!
Посчитаем точную стоимость вашего проекта
Получите портфолио с готовыми проектами и финальными сметами
Оставьте контакты и мы вам отправим портфолио реализованных проектов с точными ценами
Получите точную стоимость дизайн-проекта
Оставьте контакты, и мы предоставим расчет полной стоимости проекта и бесплатную консультацию дизайнера у вас на объекте.
Получите точную стоимость дизайн-проекта
Оставьте контакты, и мы предоставим расчет полной стоимости проекта и бесплатную консультацию дизайнера у вас на объекте.
Заполните форму
и мы свяжемся с вами в ближайшее время для обсуждения деталей вашего проекта.
Узнайте точную стоимость ремонта
Оставьте контакты, и мы предоставим расчет полной стоимости проекта и бесплатную консультацию дизайнера у вас на объекте.
Выбрать дизайнера
Оставьте контакты, и мы предоставим расчет полной стоимости проекта и бесплатную консультацию дизайнера у вас на объекте.
Консультация
Оставьте контакты, и мы предоставим расчет полной стоимости проекта и бесплатную консультацию дизайнера у вас на объекте.
Заполните контактную форму
Мы свяжемся с вами в ближайшее время, обсудим ваш дизайн-проект и рассчитаем стоимость
Заполните контактную форму
Мы свяжемся с вами в ближайшее время, обсудим ваш дизайн-проект и рассчитаем стоимость
Оставьте заявку и мы расскажем о наших услугах подробнее
Укажите контакты, и наш менеджер свяжется в вами.
Заполните контактную форму
Мы свяжемся с вами в ближайшее время, обсудим ваш дизайн-проект и рассчитаем стоимость
Экскурсия по объектам студии Artum
Посетите один из наших реализованных проектов и загляните на стройку — всё можно посмотреть вживую. Запишитесь прямо сейчас, чтобы выбрать удобное время для экскурсии.