Дизайн интерьера квартиры в авторском стиле с элементами американской классики в ЖК «Бакунина,33» - 117 м²
Задачи проекта
-
Устроить два отдельных санузла и выделить зону для постирочной
-
Обеспечить максимально возможное количество скрытых систем хранения по всей квартире
-
Создать эффектную мастер-ванную в стиле SPA с отдельно стоящей чашей и большой душевой кабиной с сиденьем
-
Разработать индивидуальный дизайн в авторском стиле, используя смелые и насыщенные цветовые сочетания
-
Адаптировать интерьер для жизни трех котов, предусмотрев шторки в дверях, места под электронные лотки и автоматические поилки
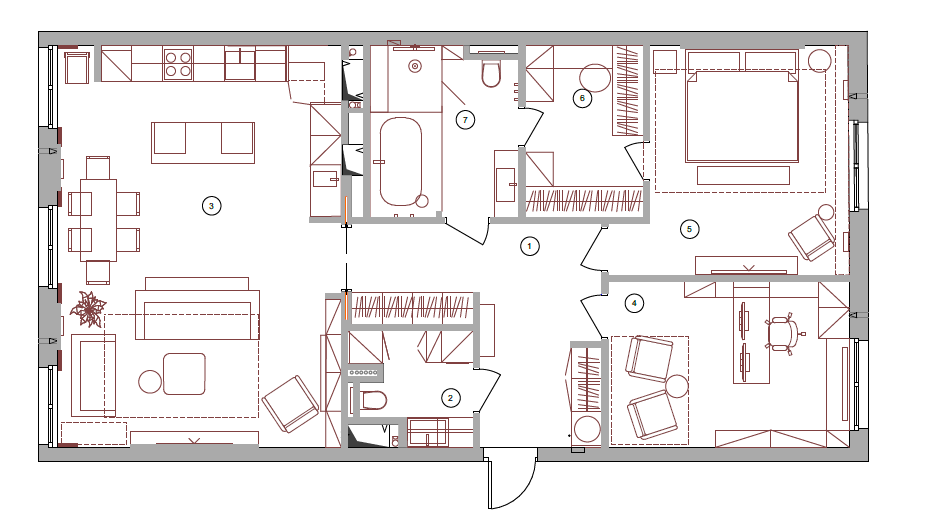
Планировка
Описание проекта
ЗАДАЧИ ПРОЕКТА
Изначально от застройщика была стандартная планировка с двумя тесными санузлами и неудобно расположенной гардеробной, которая не была связана со спальней. Мы полностью демонтировали внутренние перегородки и выстроили логику пространства с чистого листа. Кухню-гостиную увеличили до 43 м², превратив ее в просторный Опен Спейс с гранитным островом, кофе-станцией и полноценной скрытой кладовой. Границы холла и гостевого санузла изменили так, чтобы при входе появились глубокие шкафы, а в самом санузле разместилась постирочная со скрытыми электронными лотками для котов. Путем объединения старой гардеробной и санузла при спальне мы создали роскошную мастер-ванную площадью 9,4 м² с отдельно стоящей чашей и двойной раковиной. Из самой спальни убрали все шкафы, выделив отдельную гардеробную со светопрозрачной перегородкой, а также обустроили полноценный кабинет с зоной отдыха у окна и мини-холодильником.
Кухня
Кухню объединили с гостиной в единое пространство площадью 43 м² и сделали максимально функциональной. Главное решение — вместительная угловая кладовая с дверцами, которые полностью убираются внутрь корпуса. Это экономит место в проходе: даже при открытом шкафе вы свободно перемещаетесь по кухне, имея удобный доступ ко всей технике и запасам сразу.
Рабочую зону выстроили так, чтобы всё было под рукой, а духовой шкаф и микроволновку подняли на уровень глаз. Это практично и бережет спину — вам не нужно наклоняться, чтобы проверить готовность блюда. Для большего удобства кофе-станцию вынесли отдельно к входу в кухню. Теперь можно приготовить напиток, не заходя в основную зону готовки и не мешая тому, кто занят обедом.
В центре стоит массивный остров с гранитной столешницей: он служит и дополнительной поверхностью, и местом для быстрых завтраков. Натуральный гранит на острове и фартуке — практичный выбор: он не боится горячей посуды и царапин, его легко мыть. Прямо в остров встроена ниша для питомцев с розетками для поилок и полками для корма. Это решает проблему лишних проводов и мисок на проходе — пол всегда остается чистым.
Глубокие насыщенные оттенки фасадов и отсутствие белых потолков создают камерную атмосферу, а шкафы до потолка избавляют от лишней уборки — пыли просто негде скапливаться. Латунные детали и продуманная подсветка мебели добавляют теплоты, превращая рабочую зону в уютную часть жилого интерьера.
Гостиная
Гостиная - это продолжение кухни. Теперь здесь действительно просторно: можно позвать компанию друзей, и всем хватит места на глубоких диванах.
Вместо привычных белых потолков мы выкрасили всё в глубокие темные тона в цвет стен. Яркого верхнего света почти нет — за атмосферу отвечают бра, торшеры и мягкие подсветки мебели. Такой свет не бьет в глаза и помогает быстро расслабиться после работы.
Материалы выбирали так, чтобы они служили долго и не требовали сложного ухода. На полу лежит натуральный паркет, по которому приятно ходить босиком. Для трех котов мы поставили специальную дизайнерскую стойку прямо у диванов. Она идеально вписалась в интерьер, поэтому кошачьи аксессуары не создают визуальный шум и не портят общую эстетику. Все системы хранения мы сделали скрытыми, чтобы в комнате всегда был порядок без лишних усилий.
Спальня
Спальню мы превратили в место, где можно по-настоящему выспаться и отдохнуть от суеты. Главное правило здесь — ничего лишнего. Мы полностью избавились от громоздких шкафов и перенесли все хранение в отдельную гардеробную. Теперь в комнате стоят только кровать и тумбочки, поэтому здесь много воздуха и легко поддерживать порядок.
Яркого верхнего света в спальне нет. Мы использовали мягкие подвесы у кровати и бра, чтобы заказчики смогли сами настраивать уютное освещение, которое не бьет в глаза перед сном.
Утренние сборы мы тоже сделали максимально удобными. Из спальни можно сразу пройти в мастер-ванную через гардеробную — это личный приватный блок, где можно спокойно умыться и одеться, не выходя в общий коридор. А чтобы в зоне хранения не было темно, мы поставили стеклянную перегородку: она пропускает естественный свет из окна спальни, так что в гардеробной всегда комфортно находиться.
Гардеробная
ардеробная стала буфером между спальней и ванной. Такая проходная планировка экономит время по утрам: хозяева сразу переходят к водным процедурам и переодеванию, не петляя по всей квартире. Все вещи, чемоданы и сезонная одежда спрятаны здесь, поэтому в самой спальне всегда сохраняется идеальный порядок.
Пространство разделили на мужскую и женскую половины, чтобы у каждого был свой личный порядок и вещи не перемешивались. Для хозяйки обустроили полноценный туалетный столик с большим зеркалом и мягкой контурной подсветкой — наносить макияж здесь так же удобно, как в профессиональной гримерке.
Чтобы в небольшом помещении не было тесно, использовали несколько приемов:
- Зеркала на торцах шкафов. Они визуально «растворяют» мебель и делают проход шире.
- Стеклянная перегородка. Вместо глухой стены со стороны спальни установили прозрачное стекло. Это пропускает дневной свет из окна, поэтому гардеробная не кажется темным замкнутым чуланом.
- Место для отдыха. В центре поставили мягкое кресло — на него удобно присесть, чтобы переобуться или спокойно выбрать образ на день.
Все системы хранения вписаны в общую отделку, что избавляет интерьер от визуального шума и лишних деталей.
Ванная комната
Мастер-ванную превратили в полноценный домашний SPA-центр. Чтобы получить просторное помещение площадью более 9 м², объединили старую гардеробную и санузел от застройщика. Теперь в ванную можно попасть двумя путями: быстро зайти из холла или пройти через гардеробную прямо из спальни.
Главное решение для комфорта утром — широкая тумба с раковиной на двоих. Это позволяет паре собираться одновременно, не мешая друг другу. Сама тумба подвесная: под ней легко мыть пол, а пространство кажется визуально больше. Огромное зеркало с контурной подсветкой дает мягкий, ровный свет — это удобно для бритья или макияжа.
В зоне релакса установили отдельно стоящую ванну и просторную душевую кабину с сиденьем. Обе зоны объединили единым подиумом из керлита — это практично, так как нет лишних стыков и бортиков, об которые можно споткнуться. Акцентная стена из натурального оникса с внутренней подсветкой заменяет яркий свет вечером, создавая расслабляющую атмосферу для отдыха. Все полки для шампуней и косметики сделали встроенными в ниши, чтобы на виду не было лишних баночек и визуального шума.
Кабинет
Кабинет спроектировали как полноценное рабочее пространство, где можно не только сосредоточиться на делах, но и сменить обстановку в течение дня. Глубокий синий цвет стен и потолка помогает настроиться на серьезный лад и избавляет от лишних бликов на мониторе.
Рабочую зону расположили так, чтобы перед глазами было всё помещение, а за спиной — стена. Это дает чувство безопасности и комфорта во время видеозвонков. Для хранения книг и документов предусмотрели огромный стеллаж во всю стену с интегрированной подсветкой. Часть полок закрыли стеклом — это защищает вещи от пыли, но оставляет их на виду.
Главные решения для отдыха и продуктивности:
- Зона у окна. Подоконник превратили в мягкую скамью с подушками — здесь удобно почитать или просто переключиться с рабочих задач на вид за стеклом.
- Скрытый мини-холодильник. Его встроили прямо в стеллаж рядом с окном. Это экономит время: за водой или перекусом не нужно идти через всю квартиру на кухню.
- Место для неформальных встреч. В углу поставили классическое кожаное кресло с оттоманкой и кофейный столик. На нем удобно расположиться с ноутбуком или обсудить дела в расслабленной обстановке.
Освещение разделили на слои: точечные светильники на потолке для общего фона, лампа над картиной для акцента и мягкая подсветка полок. Такой подход позволяет менять настроение комнаты — от строгого офисного до уютного вечернего.
Гостевой санузел и постирочная
Гостевой санузел объединили с постирочной, чтобы максимально эффективно использовать каждый метр. За счет части холла пространство расширили — теперь здесь помещается не только унитаз и раковина, но и полноценная душевая кабина.
Хозяйственную зону продумали до мелочей. Стиральную и сушильную машины установили в колонну, чтобы сэкономить место. Рядом поставили глубокую раковину — в ней удобно помыть обувь или застирать вещи вручную. Над раковиной закрепили складную сушилку: когда она не нужна, её почти не видно, и она не мешает свободно двигаться по комнате.
Главное решение для порядка — скрытая зона для питомцев. Под тумбой предусмотрели место для электронных самоочищающихся лотков и вывели туда розетки. Это избавляет от запахов и разбросанного наполнителя: всё спрятано с глаз, а пол остается чистым. В дверях сделали специальные «шторки», чтобы коты могли заходить внутрь в любое время
Прихожая
Прихожую полностью переделали, чтобы превратить обычный коридор в удобную и функциональную зону. Изначально здесь был слишком широкий холл, который не использовался эффективно. Теперь каждый метр работает на порядок в доме.
Главное решение для чистоты — огромные встроенные шкафы во всю стену. Их разделили на две части: для повседневных вещей и для хранения сезонной верхней одежды. Фасады шкафов выполнены в тон стен с классической фрезеровкой, поэтому они не загромождают пространство и выглядят как часть отделки.
Практичность материалов здесь продумана с учетом питерской погоды:
- Грязезащитная зона. У самого входа на полу лежит метлахская плитка. Она не боится влаги и песка, её легко мыть, а мелкий узор скрывает следы от обуви.
- Плавный переход. Дальше плитка стыкуется с натуральным паркетом, который добавляет интерьеру тепла.
- Место для мелочей. У входа поставили изящную деревянную консоль для ключей и сумок. Над ней закрепили большое арочное зеркало — оно помогает проверить образ перед выходом и визуально расширяет узкую часть холла.
Атмосфера в прихожей получилась камерной. Вместо ярких ламп в потолке акцент сделали на мягкой подсветке: свет из-за зеркал и интерьерные светильники создают уют с самого порога. Потолки выкрашены в тон стен, что «стирает» границы и делает пространство цельным. Для удобства рядом со шкафами поставили мягкий пуф, чтобы было комфортно переобуваться.
СТИЛЬ И ЦВЕТОВАЯ ГАММА
Интерьер выполнен в авторском стиле с элементами американской классики. Основу дизайна составляют сложные глубокие фактуры, симметрия и выразительная лепнина на стенах и потолках. Такой декор делает пространство статусным и наполненным, при этом сохраняя строгость и чистоту линий.
Цветовая палитра построена на приглушенных, плотных и насыщенных оттенках: от глубокого синего в спальне до сложного зеленого на кухне. Мы полностью отказались от белых потолков, выкрасив их в тон стен или чуть светлее. Этот прием «цвет в цвет» стирает лишние границы и создает обволакивающую, камерную атмосферу, в которой комфортно находиться. Чтобы интерьер выглядел теплым, мы добавили акценты из латуни, шпон дерева и натуральный камень — они приносят в дом уют и деликатный блеск.
МАТЕРИАЛЫ
В проекте использованы практичные и визуально приятные материалы. Они подобраны так, чтобы насыщенный интерьер было легко поддерживать в чистоте, а поверхности сохраняли вид нового ремонта долгие годы.
- Краска — основной материал для стен и потолков. Она позволила добиться глубоких, плотных цветов и служит отличным фоном для лепнины. Если на стене появится пятно или царапина, такую поверхность легко подкрасить локально, не переделывая весь ремонт.
- Гипсовая лепнина — из неё выполнен весь объемный декор на стенах и под потолком. Именно гипс создает изящный рельеф: благодаря игре теней темное пространство выглядит глубоким и архитектурным.
- Натуральный паркет — напольное покрытие, которое добавляет дому тепла и уюта. Это долговечный материал, по которому приятно ходить босиком, а со временем он становится только лучше.
- Метлахская плитка — использована в прихожей и постирочной. Это очень прочная плитка, которая не боится воды, песка и кошачьих когтей. Мелкий узор отлично скрывает небольшие загрязнения, поэтому пол дольше выглядит чистым.
- Гранит и оникс — натуральные камни для акцентных зон. Гранит на кухонном острове и фартуке практически вечен: он не боится горячей посуды и его сложно поцарапать. Оникс в ванной с внутренней подсветкой делает интерьер статусным и работает как мягкий ночник по вечерам.
- Керлит — применен в отделке мастер-ванной для подиума и душевой. Это крупноформатный материал, который почти не впитывает влагу. Из-за минимального количества швов за ним очень просто ухаживать, поэтому в санузлах всегда сохраняется ощущение чистоты.
- Шпон и эмаль — из них изготовлена вся встроенная мебель в проекте. Шпон дерева добавляет благородные текстуры, а качественная эмаль позволяет сделать шкафы точно в тон стен, чтобы они «растворялись» в пространстве и не создавали визуальный шум.
ИНТЕРЕСНЫЕ НАХОДКИ
Потолки в цвет стен. Мы полностью отказались от белого цвета сверху. Все потолки выкрашены в тон стен или чуть светлее. Это стирает границы комнаты и создает уютный эффект «кокона», в котором психологически проще расслабиться.
Атмосферный свет. В квартире почти нет привычного яркого света из центра потолка. Вместо этого мы использовали много «фонового» освещения: бра, торшеры и диодные подсветки мебели. Это позволяет гибко настраивать настроение — от бодрого утра до камерного вечера.
SPA-зона в ванной. Ванну и душевую установили на единый подиум из керлита. В этой зоне мы намеренно опустили потолок, чтобы создать ощущение обособленного пространства для релакса.
Кабинет с местом для отдыха. Окно в кабинете превратили в полноценную зону отдыха. А чтобы за водой или перекусом не нужно было идти на кухню, в стеллаж рядом с окном встроили мини-холодильник.
Просторная гардеробная. Чтобы маленькое помещение не казалось тесным, мы повесили зеркала на торцы шкафов — они визуально удваивают пространство. А стеклянная перегородка со стороны спальни пропускает дневной свет, поэтому внутри никогда не бывает темно и неуютно.
ИТОГ ПРОЕКТА
Дизайн-проект в ЖК «Бакунина, 33» стал примером того, как превратить обычную квартиру в по-настоящему личное и функциональное пространство для жизни. Мы полностью реализовали запрос Заказчиков на авторский стиль, создали интерьер с глубокими цветами и атмосферой SPA-курорта прямо дома. Вместо стандартных комнат получился технологичный и уютный дом площадью 117 м², где каждый метр работает на комфорт хозяев. Нам удалось уйти от лишних коридоров и создать приватный мастер-блок, где спальня, гардеробная и большая ванная с ониксом образуют единую зону отдыха. Даже быт трех питомцев удалось вписать незаметно: все лотки и поилки скрыты в мебели, поэтому в квартире всегда сохраняется идеальный порядок. В итоге все задачи по перепланировке, хранению и созданию уникальной эстетики были выполнены в рамках запланированного бюджета.
Сколько стоит дизайн-проект и ремонт: реальные примеры с ценами
Портфолио с готовыми проектами и финальными
сметами — без скрытых затрат и неожиданных расходов
Ещё проекты
-
Посмотреть проектАтмосферный дизайн интерьера квартиры в ЖК «Foriver» в стиле эклектика - 179 м²
-
Посмотреть проектДизайн интерьера квартиры в ЖК «АКВИЛОН LEAVES» в стиле современный минимализм - 106 м²
-
Посмотреть проектДизайн интерьера квартиры в ЖК "Петровская Доминанта" с зелеными акцентами
-
Посмотреть проектCовременный минимализм с яркими акцентами в дизайне интерьера квартиры в ЖК «Кремлевские звезды» — 87 м2
Напишите нам!
Посчитаем точную стоимость вашего проекта
Получите портфолио с готовыми проектами и финальными сметами
Оставьте контакты и мы вам отправим портфолио реализованных проектов с точными ценами
Получите точную стоимость дизайн-проекта
Оставьте контакты, и мы предоставим расчет полной стоимости проекта и бесплатную консультацию дизайнера у вас на объекте.
Получите точную стоимость дизайн-проекта
Оставьте контакты, и мы предоставим расчет полной стоимости проекта и бесплатную консультацию дизайнера у вас на объекте.
Заполните форму
и мы свяжемся с вами в ближайшее время для обсуждения деталей вашего проекта.
Узнайте точную стоимость ремонта
Оставьте контакты, и мы предоставим расчет полной стоимости проекта и бесплатную консультацию дизайнера у вас на объекте.
Выбрать дизайнера
Оставьте контакты, и мы предоставим расчет полной стоимости проекта и бесплатную консультацию дизайнера у вас на объекте.
Консультация
Оставьте контакты, и мы предоставим расчет полной стоимости проекта и бесплатную консультацию дизайнера у вас на объекте.
Заполните контактную форму
Мы свяжемся с вами в ближайшее время, обсудим ваш дизайн-проект и рассчитаем стоимость
Заполните контактную форму
Мы свяжемся с вами в ближайшее время, обсудим ваш дизайн-проект и рассчитаем стоимость
Оставьте заявку и мы расскажем о наших услугах подробнее
Укажите контакты, и наш менеджер свяжется в вами.
Заполните контактную форму
Мы свяжемся с вами в ближайшее время, обсудим ваш дизайн-проект и рассчитаем стоимость
Экскурсия по объектам студии Artum
Посетите один из наших реализованных проектов и загляните на стройку — всё можно посмотреть вживую. Запишитесь прямо сейчас, чтобы выбрать удобное время для экскурсии.