

В портфолио
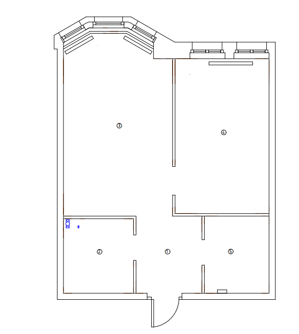
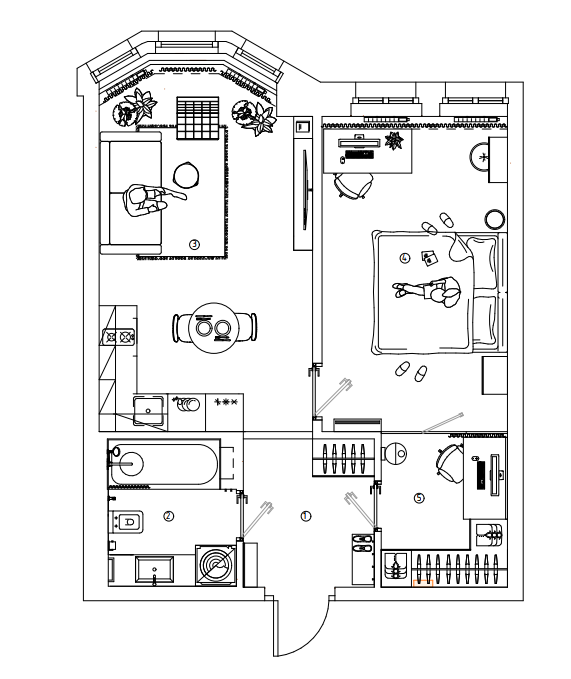
Минималистичный дизайн интерьера квартиры в стиле джапанди в ЖК «Amo» - 50 м²
Задачи проекта
-
Расположить 2 изолированных друг от друга рабочих места
-
Органичить видимость с улицы, т.к. квартира находится на 2ом этаже, а окна панорамные.
-
Продумать звукоизоляцию квартиры
-
Разработать интересный целостный дизайн в стиле джапанди с минимальным бюджетом.
Описание проекта


Сколько стоит дизайн-проект и ремонт: реальные примеры с ценами
Портфолио с готовыми проектами и финальными
сметами — без скрытых затрат и неожиданных расходов
Ещё проекты
-
Дизайн интерьера квартиры в современном стиле с элементами минимализма в Токсово - 60 м²
-
Дизайн интерьера квартиры в ЖК «D1» в стиле джапанди и ваби-саби - 85 м²
-
Дизайн интерьера квартиры на Каменноостровском проспекте в стиле минимализм и джапанди - 86 м²
-
Современный минимализм в дизайне интерьера квартиры в ЖК "Ленинграdка 58" - 85 м2
Напишите нам!
Посчитаем точную стоимость вашего проекта

Получите портфолио с готовыми проектами и финальными сметами
Оставьте контакты и мы вам отправим портфолио реализованных проектов за 2024 год с точными ценами
Получите точную стоимость дизайн-проекта
Оставьте контакты, и мы предоставим расчет полной стоимости проекта и бесплатную консультацию дизайнера у вас на объекте.
Получите точную стоимость дизайн-проекта
Оставьте контакты, и мы предоставим расчет полной стоимости проекта и бесплатную консультацию дизайнера у вас на объекте.
Узнайте точную стоимость ремонта
Оставьте контакты, и мы предоставим расчет полной стоимости проекта и бесплатную консультацию дизайнера у вас на объекте.
x
Оставить заявку
Заполните форму и наш менеджер свяжется с вами