logo
Artum — студия дизайна интерьера
Перезвоните мне
Дизайн интерьера квартиры в ЖК «Остров» в Москве с элементами неоклассики и арт-деко — 99 м²
блог Artum

Дизайн интерьера квартиры в ЖК «Остров» в Москве с элементами неоклассики и арт-деко — 99 м²

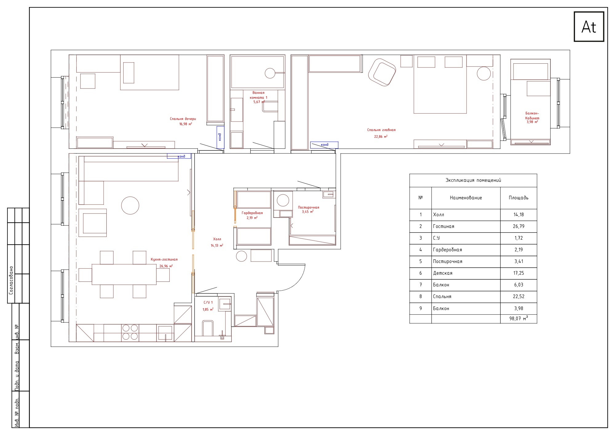
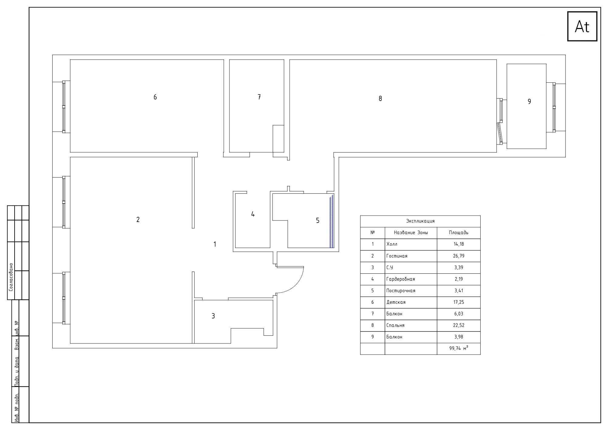
Задачи проекта

  • Спроектировать две полноценные спальни и объединенную кухню-гостиную.

  • Организовать отдельную от ванной комнаты постирочную с зонами для стирки и сушки.

  • Разместить в холле две гардеробные: одну при входе, вторую — для сезонных вещей.

  • Утеплить балкон при мастер-спальне и оборудовать там рабочее место.

Планировочное решение

В ходе перепланировки мы уменьшили санузел у входной зоны. За счет освободившихся квадратных метров удалось обустроить полноценную гардеробную с доступом из холла. От установки третьего санузла отказались, отдав предпочтение хозяйственному блоку с системами хранения. Квартиру четко разделили на приватную часть с двумя спальнями и общественную зону, где кухня объединена с гостиной.

Гостиная
Гостиная
Гостиная
Гостиная

Гостиная

Интерьер гостиной строится на визуальном контрасте нейтрального фона и насыщенных по цвету предметов. Главным акцентом стал зеленый диван, который дополняют фактурный текстиль и предметы искусства. 

Мы оставили пространство открытым, чтобы здесь было удобно и отдыхать, и принимать компанию гостей. Каждая деталь в этой зоне работает на создание выразительного, но не перегруженного образа.

Кухня
Кухня
Кухня
Кухня

Кухня

Кухонную зону оформили в стиле светлой неоклассики с графичными линиями и встроенной техникой. Мы решили не ставить кухонный остров, чтобы освободить место для большого обеденного стола. 

Теперь он занимает центральное положение в комнате и служит основным местом для семейных сборов. Столешница из камня с латунными элементами, натуральные материалы и лаконичные фасады подчеркивают современный характер интерьера.

Спальня
Спальня
Спальня
Спальня

Спальня

В спальне использовали светлую палитру и сделали ставку на тактильные поверхности. Кровать с мягким изголовьем расположена в центре, ее обрамляют классические настенные панели и симметричные светильники. 

Встроенные шкафы и стеклянные витрины интегрированы в архитектуру стен, поэтому мебель не кажется громоздкой. Для вечернего отдыха предусмотрели кресло и декоративный свет, который помогает переключиться и расслабиться.

back back

Сколько стоит дизайн-проект и ремонт: реальные примеры с ценами

Портфолио с готовыми проектами и финальными
сметами — без скрытых затрат и неожиданных расходов

Получить портфолио и расчёт
Балкон
Балкон

Балкон

Балкон примыкает к спальне, мы его полностью утеплили для эксплуатации в любое время года. Здесь получилось изолированное место для чтения или работы за компьютером. 

В зоне установили мягкое сиденье и продумали системы хранения для мелочей и книг. Панорамное остекление дает много естественного света, что важно для продуктивного рабочего процесса.

Душевая комната
Душевая комната
Душевая комната
Душевая комната

Душевая комната

Для душевой выбрали сочетание мраморной текстуры и пудровых оттенков. Такое решение добавляет пространству визуальной глубины и делает его мягче. Латунная сантехника и скрытые системы хранения подчеркивают строгую геометрию помещения. Подсветка расставляет нужные акценты и выделяет фактуру отделочных материалов.

Гостевой санузел
Гостевой санузел

Гостевой санузел

Этот санузел сделали более декоративным и насыщенным по деталям. На стенах классические панели соседствуют керамогранитом. На полу уложили акцентную плитку, которая сочетается с графичными светильниками. Латунная фурнитура поддерживает общую стилистику квартиры и делает маленькое помещение заметным.

Рассчитайте стоимость дизайн-проекта, ремонта и материалов

1 из 5 вопросов

01

Выберите ваш тип жилья

У нас есть архитекторы и дизайнеры интерьеров, которые специализируются на конкретном типе помещений. Мы поможем составить грамотный дизайн-проект.

2 из 5 вопросов

02

Укажите общую площадь помещений

Для больших помещений мы снижаем стоимость закупки материалов за счет наших партнеров - строительных компаний.

м2

3 из 5 вопросов

03

В каком стиле вы хотите интерьер?

Возможно, Вы уже давно интересуетесь интерьером, и пришла пора проанализировать результат. А может быть, Вы пока не знаете, какому стилю отдать предпочтение. Выберите тот стиль, которое вам нравится больше всего.

4 из 5 вопросов

04

Когда вы хотите начать ремонтные работы?

Мы сможем заранее оценить нагруженность своей команды дизайнеров и организовать работу строителей.

5 из 5 вопросов

05

Куда отправить варианты расчета?

После отправки формы вы попадете на страницу, где сможете получить бесплатное руководство "Схема ремонта от А до Я". Мы свяжемся с Вами - и ответим на все вопросы, в течение 15 минут в рабочее время (с 10:00 до 19:00 по МСК).

Постирочная
Постирочная

Постирочная

Помещение спроектировали как функциональный хозяйственный узел. Здесь установили стиральную и сушильную машины, а также шкафы для хранения бытовой химии и инвентаря. 

Светлая отделка и аккуратная раскладка плитки помогают пространству выглядеть опрятно. Классические фасады мебели связывают постирочную с дизайном остальных комнат в квартире.

Детская комната
Детская комната
Детская комната
Детская комната

Детская комната

Комнату для девочки оформили в деликатной пудрово-розовой гамме. Пространство разбили на логические сегменты: спальное место с диваном, рабочий стол у окна и шкафы для одежды. 

Открытые витрины с интегрированной подсветкой отвели под книги и декор. Графичные элементы и текстиль добавляют интерьеру индивидуальности, сохраняя общий стиль проекта.

Прихожая
Прихожая
Прихожая
Прихожая

Прихожая

Прихожую выдержали в светлых тонах, добавив черные графичные акценты и классические молдинги. Большое зеркало зрительно увеличивает холл и добавляет пространства. 

Основное хранение вынесли в отдельную гардеробную, поэтому при входе нет загромождения мебелью. Детали из латуни и лаконичная консоль с предметами искусства завершают входную группу.

Дополнительная информация о проекте

Стиль и цветовая гамма

Интерьер выполнен в современном стиле с элементами неоклассики и ар-деко. Цветовая база построена на молочно-белых и теплых серых оттенках, которые делают пространство светлее и визуально просторнее. Синие, зеленые и розовые акценты добавлены через мебель и декор, чтобы сохранить цельность оформления.

Материалы

Натуральное дерево — используется в отделке пола и мебели для создания природной фактуры.

Хлопковые ткани — применены в обивке и текстиле, мы принципиально отказались от использования велюра.

Краска и молдинги — формируют нейтральный фон и подчеркивают классическую основу интерьера.

Керамогранит и натуральный камень — практичные решения для рабочих поверхностей и мокрых зон.

 

Интересные находки

Ростовое зеркало в прихожей — монтаж полотна на всю высоту стены позволил вдвое визуально увеличить пространство.

Отдельная гардеробная в прихожей — это решение помогло освободить спальни от массивных шкафов для одежды.

Рабочая зона на балконе — использование утепленного контура позволило вынести кабинет из жилой зоны спальни.

Отправьте заявку на консультацию или напишите нам в мессенджер

Мы составим для вас четкий путь от начала до результата, который потребует от вас минимальных усилий

Напишите нам!
Посчитаем точную стоимость вашего проекта