Дизайн интерьера квартиры в ЖК «Бакунина, 33» в стиле современный минимализм с лофт элементами - 50 м²
Задачи проекта
-
Выделить рабочее место для супруга, так как он много работает дома
-
Интегрировать биокамин в интерьер кухни-гостиной
-
Сделать интерьер в стиле современный минимализм с элементами лофт в темных оттенках
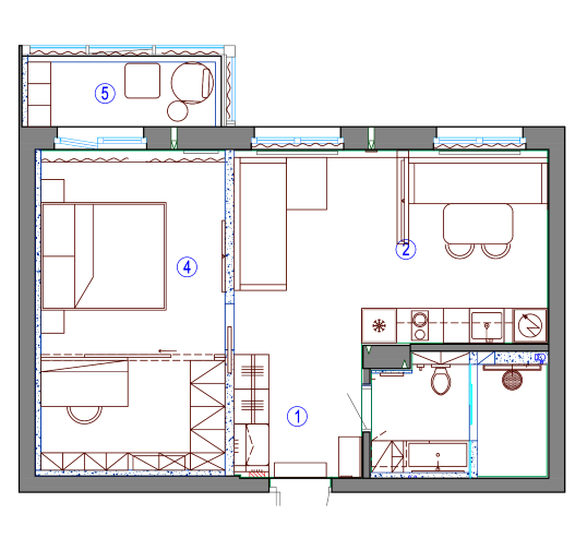
Планировка
Описание проекта
ЗАДАЧИ ПРОЕКТА
Изначально квартира от застройщика была единым открытым пространством без перегородок, поэтому ключевая задача — не «нарезать» метры, а собрать понятную логику: где встречаем гостей, где отдыхаем, а где можно спокойно работать. Мы не делали перепланировку, но выполнили грамотное зонирование: возвели перегородку, которая разделила квартиру на общественную часть (прихожая + кухня-гостиная) и приватную (спальня). В спальне добавили раздвижную стеклянную перегородку, чтобы выделить кабинет без потери света и ощущения объёма. А в кухне-гостиной появилась перегородка-тумба с паровым камином — она работает и как акцент, и как функциональный разделитель пространства.
Кухня
Цель этой зоны — создать функциональную кухню без визуального шума, которая логично вписывается в общее пространство кухни-гостиной и выглядит как единый архитектурный объём. Мы спроектировали кухонный блок по одной линии, собрав высокие колонны с техникой и рабочую зону в цельную композицию без разрозненных элементов.
Вся техника встроена, а системы хранения продуманы так, чтобы основные сценарии — готовка, хранение, сервировка — были в шаговой доступности.
В повседневной жизни эта кухня легко адаптируется под разные задачи: быстрый завтрак, ужин вдвоём или спокойную готовку без суеты. Визуально она остаётся частью интерьера, а не отдельной «рабочей зоной», что особенно важно для кухни в открытом пространстве.
Гостиная
Ключевым элементом стала перегородка со встроенным паровым камином. Она мягко отделяет гостиную от кухни и работает как композиционный центр: со стороны дивана камин становится точкой притяжения, создавая атмосферу вечернего отдыха и неспешного общения. Низкая тумба под ТВ поддерживает эту линию — она не утяжеляет пространство и визуально удерживает горизонталь.
Диван разместили так, чтобы сохранялись удобные проходы и комфортная дистанция до экрана и камина.
В результате гостиная получилась продуманной и живой: здесь удобно смотреть фильмы, принимать гостей или просто проводить время после рабочего дня. Пространство не перегружено деталями, но при этом выглядит выразительно и цельно — именно так, как должна работать современная гостиная в квартире с открытой планировкой.
Спальня
Спальное место расположили по центральной оси комнаты, акцентировали изголовье фактурной стеной с мягкой подсветкой. Тёплое дерево в отделке сочетается с приглушёнными серо-бежевыми оттенками. Прикроватные тумбы и встроенные элементы выполнены лаконично — всё под рукой, без лишних деталей.
Рабочую зону мы отделили раздвижной стеклянной перегородкой. Такое решение позволяет изолировать кабинет при необходимости, но сохраняет свет и ощущение объёма в спальне. Рабочий стол встроен в систему хранения, поэтому зона выглядит аккуратно и не спорит с общим настроением комнаты.
В повседневной жизни спальня легко «переключается»: днём это собранное пространство для работы и отдыха, вечером — место для восстановления и тишины. Продуманное освещение и спокойная палитра помогают создать атмосферу, в которой комфортно завершать день и начинать утро без спешки.
Санузел
Основу отделки составляет керамогранит под бетон — он задаёт спокойный, нейтральный фон и поддерживает общую стилистику проекта. Тёплое дерево в мебели смягчает графику и делает пространство визуально более сбалансированным. Над инсталляцией предусмотрели закрытые шкафы во всю ширину стены, чтобы все бытовые принадлежности были скрыты и не нарушали целостность интерьера.
Зону душа оформили стеклянной перегородкой: она не дробит пространство и подчёркивает чистые линии. Вертикальная ниша с подсветкой добавляет глубины и работает как аккуратный акцент, а продуманное расположение сантехники делает использование санузла удобным в повседневной жизни.
В результате санузел получился функциональным и визуально цельным: здесь легко поддерживать порядок, а сочетание материалов и света делает пространство выразительным и современным, несмотря на его компактный формат.
Балкон
Оформлен как небольшую лаунж-зона, которая органично продолжает интерьер квартиры.
Здесь разместили кресло с пуфом и компактный столик — удобное место для чтения, работы с ноутбуком или утреннего кофе. Отделка выполнена в спокойных, нейтральных оттенках, а жалюзи позволяют управлять светом и настроением пространства в течение дня.
Балкон получился функциональным и «живым»: он не требует сложного ухода, легко используется в повседневных сценариях и становится приятным бонусом к общей планировке квартиры, добавляя ещё одно место для отдыха и уединения.
Прихожая
Здесь сделана ставк на встроенное хранение во всю высоту стены, благодаря чему зона выглядит собранной и визуально спокойной.
Шкафы с фасадами под тёмное дерево вытягивают вертикаль и поддерживают общую стилистику квартиры. В центральной части предусмотрена ниша с подсветкой и мягкой банкеткой — здесь удобно переобуваться, оставить сумку или верхнюю одежду на короткое время. Подсветка добавляет глубины и делает прихожую более выразительной в вечернее время.
В повседневном использовании прихожая остаётся аккуратной: всё необходимое скрыто за фасадами, проходы свободны, а пространство воспринимается цельно и логично с первых шагов в квартире.
СТИЛЬ И ЦВЕТОВАЯ ГАММА
Проект выполнен в стилистике современного минимализма с лофт-элементами: простые формы, архитектурные линии, выразительные фактуры. Палитра построена на тёмных оттенках серого и бежевого, с акцентами тёплого дерева и чёрной графики в деталях.
МАТЕРИАЛЫ
Керамогранит — использован в кухонном фартуке, санузле и на отдельных вертикальных поверхностях. Материал устойчив к влаге и износу, легко очищается и визуально объединяет разные зоны за счёт спокойной бетонной фактуры.
Паркетная доска — применена в жилых зонах квартиры. Натуральная древесная текстура добавляет тепла интерьеру, делает пространство более сбалансированным и приятным в повседневном использовании. Покрытие рассчитано на активную эксплуатацию и не требует сложного ухода.
Краска — использована для отделки стен и потолков в жилых помещениях. Даёт ровную матовую поверхность, подчёркивает геометрию пространства и позволяет легко поддерживать аккуратный вид интерьера.
3D-панели — применены в зоне гостиной и спальни в качестве акцентной отделки. Они добавляют глубину и архитектурность, работая как выразительный, но ненавязчивый декоративный элемент.
Мебельные панели ЛДСП и МДФ — использованы во встроенной мебели и системах хранения. Материалы практичны, устойчивы к ежедневным нагрузкам и позволяют создать цельные мебельные объёмы без визуальной дробности.
Стекло — использовано в раздвижной перегородке кабинета и в душевой зоне. Оно сохраняет светопроницаемость, визуально облегчает пространство и подчёркивает современный характер интерьера.
ИНТЕРЕСНЫЕ НАХОДКИ
Перегородка с паровым камином в гостиной. Использована для зонирования кухни и гостиной без потери света и ощущения пространства. Камин стал композиционным центром интерьера и добавил выразительный акцент в общей зоне.
Раздвижная стеклянная перегородка в спальне. Позволила отделить кабинет, сохранив светопроницаемость и визуальную целостность комнаты. Решение удобно для работы из дома и не утяжеляет интерьер.
Система хранения во всю высоту в прихожей. Помогла скрыть все повседневные вещи и сохранить аккуратный вид входной зоны. Вертикальные фасады визуально вытягивают пространство и делают его более собранным.
Вертикальная подсветка в нише санузла. Использована для акцентирования глубины пространства и выделения зоны хранения. Приём делает компактный санузел визуально более объёмным и архитектурно выразительным.
ИТОГ
Дизайн-проект квартиры 50 м² в ЖК «Бакунина» стал примером того, как из открытого пространства без перегородок можно создать продуманное и логичное жильё для комфортной повседневной жизни. Мы выстроили интерьер в стиле современного минимализма с лофт-элементами, где каждая зона имеет чёткую функцию и при этом работает на общее ощущение цельности.
За счёт грамотного зонирования без перепланировки удалось организовать полноценную кухню-гостиную с камином, приватную спальню с изолированным кабинетом, вместительную прихожую, функциональный санузел и дополнительную зону отдыха на балконе. В проекте нет случайных решений — каждая деталь продумана с точки зрения сценариев использования, хранения и визуального баланса.
Этот интерьер показывает подход студии Artum: мы не просто создаём красивые картинки, а проектируем пространство, которое удобно жить каждый день, легко поддерживать в порядке и приятно воспринимать визуально. Проект в ЖК «Бакунина» — это функциональность, архитектурная логика и стиль, который остаётся актуальным со временем.
Сколько стоит дизайн-проект и ремонт: реальные примеры с ценами
Портфолио с готовыми проектами и финальными
сметами — без скрытых затрат и неожиданных расходов
Ещё проекты
-
Посмотреть проектДизайн интерьера квартиры в ЖК «Аквилон Zalive» в современном стиле с элементами минимализма в серых оттенках - 69 м²
-
Посмотреть проектДИЗАЙН ИНТЕРЬЕРА частного дома в КП «Золотые пески» в современном стиле - 246 м²
-
Посмотреть проектДизайн интерьера квартиры в ЖК «Окла» в стиле современный минимализм — 70 м²
-
Посмотреть проектCовременная квартира, дизайн интерьера в светло-темных тонах в ЖК "Георг Ландрин" — 120 м2
Напишите нам!
Посчитаем точную стоимость вашего проекта
Получите портфолио с готовыми проектами и финальными сметами
Оставьте контакты и мы вам отправим портфолио реализованных проектов с точными ценами
Получите точную стоимость дизайн-проекта
Оставьте контакты, и мы предоставим расчет полной стоимости проекта и бесплатную консультацию дизайнера у вас на объекте.
Получите точную стоимость дизайн-проекта
Оставьте контакты, и мы предоставим расчет полной стоимости проекта и бесплатную консультацию дизайнера у вас на объекте.
Заполните форму
и мы свяжемся с вами в ближайшее время для обсуждения деталей вашего проекта.
Узнайте точную стоимость ремонта
Оставьте контакты, и мы предоставим расчет полной стоимости проекта и бесплатную консультацию дизайнера у вас на объекте.
Выбрать дизайнера
Оставьте контакты, и мы предоставим расчет полной стоимости проекта и бесплатную консультацию дизайнера у вас на объекте.
Консультация
Оставьте контакты, и мы предоставим расчет полной стоимости проекта и бесплатную консультацию дизайнера у вас на объекте.
Заполните контактную форму
Мы свяжемся с вами в ближайшее время, обсудим ваш дизайн-проект и рассчитаем стоимость
Заполните контактную форму
Мы свяжемся с вами в ближайшее время, обсудим ваш дизайн-проект и рассчитаем стоимость
Оставьте заявку и мы расскажем о наших услугах подробнее
Укажите контакты, и наш менеджер свяжется в вами.
Заполните контактную форму
Мы свяжемся с вами в ближайшее время, обсудим ваш дизайн-проект и рассчитаем стоимость
Экскурсия по объектам студии Artum
Посетите один из наших реализованных проектов и загляните на стройку — всё можно посмотреть вживую. Запишитесь прямо сейчас, чтобы выбрать удобное время для экскурсии.