logo
Artum — студия дизайна интерьера
Перезвоните мне
Дизайн-проект квартиры в современном стиле в ЖК «Большой, 67» в Санкт-Петербурге
блог Artum

Дизайн-проект квартиры в современном стиле в ЖК «Большой, 67» в Санкт-Петербурге

Содержание

Дизайн-проект квартиры в современном стиле в ЖК «Большой, 67» в Санкт-Петербурге

Дизайн-проект квартиры в ЖК «Большой, 67» в Санкт-Петербурге был разработан для молодой заказчицы, ориентированной на светлое пространство и продуманную организацию. Общая площадь составила 115 м², выбранный стиль — современный с аккуратными классическими отсылками и вниманием к натуральным фактурам. В числе ключевых запросов — большое количество систем хранения, объединённая кухня-гостиная для совместных встреч, мастер-зона с душевой и отдельная комната для гостей. В завершении статьи разберём, как все эти задачи были реализованы в интерьере без визуальной перегрузки и спорных решений.

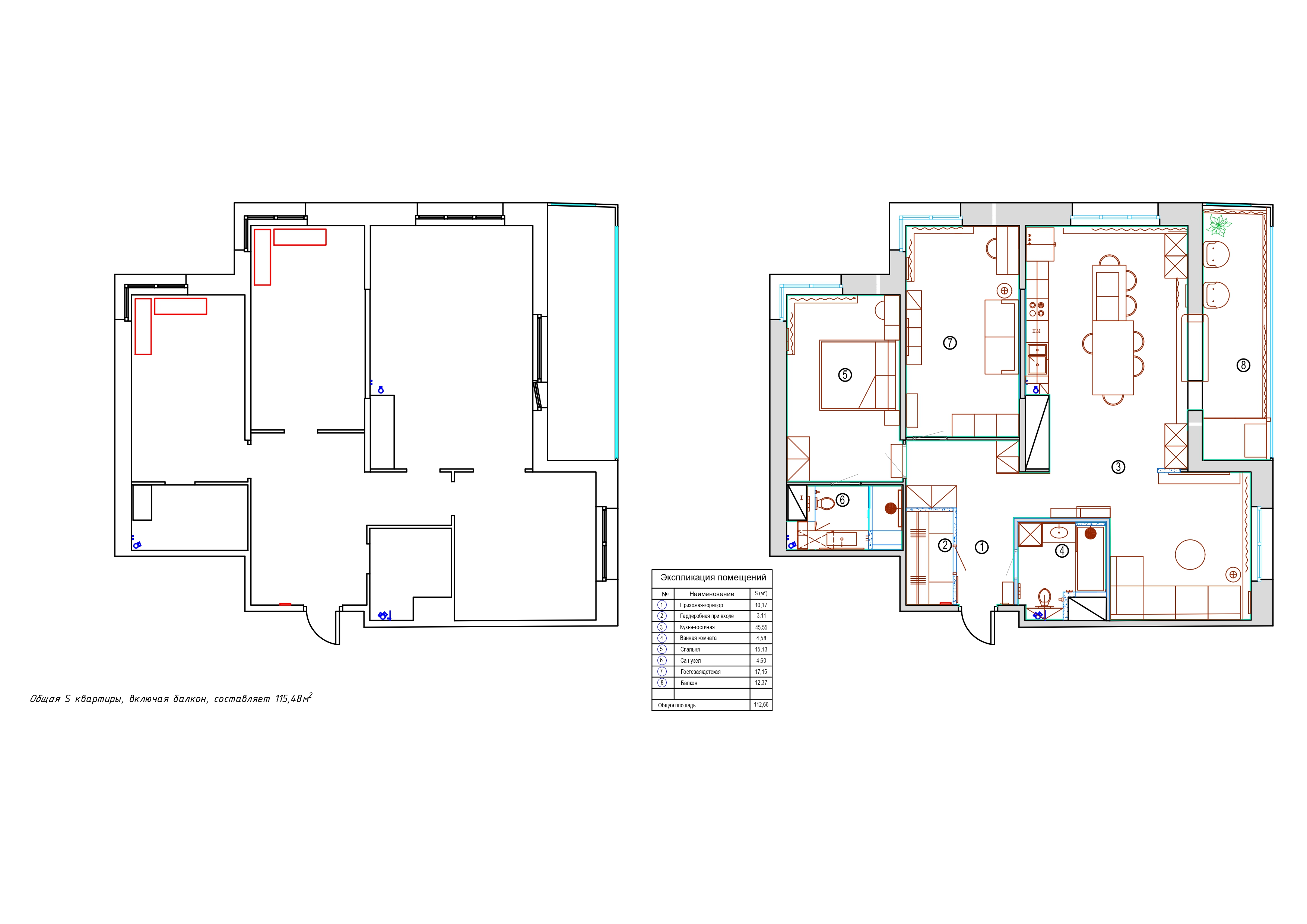
Перепланировка квартиры в ЖК «Большой, 67»

Перепланировка квартиры в ЖК «Большой, 67»

Несущие конструкции квартиры остались без изменений, однако планировку адаптировали под новые сценарии использования. Кухонную зону объединили с гостиной, а выход на лоджию частично раскрыли, дополнив его барной поверхностью и дополнительным светом. В квартире предусмотрены два санузла: один — приватный при спальне, второй — гостевой, с ванной и встроенной бытовой техникой.
Системы хранения распределены по всей площади: у входа организована гардеробная, в жилых комнатах размещены встроенные шкафы, а в санузлах предусмотрены скрытые модули. В итоге планировка включает спальню, гостевую комнату, кухню-гостиную, два санузла и лоджию, задействованную как часть жилого пространства.

Дизайн-проект прихожей

Дизайн-проект прихожей

Прихожая оформлена в светлой цветовой гамме с вертикальными световыми акцентами и встроенными системами хранения. Зеркало большого формата и скрытые дверные полотна визуально увеличивают пространство. В отделке использованы окрашенные поверхности и декоративные панели с деликатной фактурой, дополненные латунными деталями.

Все элементы продуманы с точки зрения удобства: гардероб, тумба и освещение выстроены в логичную последовательность.

Интерьер кухни-гостиной

Интерьер кухни-гостиной

Кухонный блок выполнен в светлых оттенках с фасадами в матовой эмали и деревянными вставками. Пространство объединено с гостиной, но сохраняет читаемость зон благодаря напольным покрытиям и сценариям освещения.

Обеденный стол большого формата и остров позволяют комфортно разместить всех членов семьи и гостей. В гостиной расположены мягкий диван, ТВ-зона с декоративными панелями и биокамином. Интерьер собран в спокойной манере, где свет и материалы формируют ощущение простора.

Дизайн интерьера мастер-спальни

Дизайн интерьера мастер-спальни

Мастер-спальня решена в нейтральной палитре с акцентом на тактильные поверхности и продуманное освещение. Изголовье кровати выделено панелью с фрезеровкой, а встроенные светильники формируют локальные зоны света.

По обе стороны кровати размещены подвесные тумбы, а у окна — консоль, которая может использоваться как рабочая или косметическая зона. Встроенный шкаф с фасадами в цвет стен обеспечивает хранение без визуального давления. Из спальни предусмотрен прямой выход в санузел.

Интерьер душевой в мастер-зоне

Интерьер душевой в мастер-зоне

Душевая организована за счёт отдельной перегородки, что позволило разместить сиденье и встроенные ниши для хранения. В отделке использован крупноформатный керамогранит с текстурой натурального камня.

Подсветка встроена в ниши, сантехника скрыта, а верхний душ подчёркивает современный характер пространства. Здесь всё подчинено функциональности и чистоте линий.

Дизайн интерьера гостевой комнаты

Дизайн интерьера гостевой комнаты

Гостевая комната совмещает функции спальни и рабочего кабинета. В интерьере предусмотрен раскладной диван, настенные системы хранения и рабочий стол у окна. Цветовая палитра продолжает общую концепцию квартиры — светлые оттенки, дерево и лаконичные формы.

Освещение организовано по уровням: общий свет, рабочая зона и настенные источники для вечернего сценария. Комната компактная, но полностью функциональная.

Дизайн ванной комнаты

Дизайн ванной комнаты

Ванная комната выполнена в спокойной серо-бежевой гамме с использованием керамогранита под мрамор. Стиральная и сушильная машины встроены в шкаф-колонну и не нарушают визуальную чистоту пространства.

Ванна совмещена с душем, зеркало с подсветкой добавляет глубины, а тумба под раковину обеспечивает дополнительное место для хранения. Все элементы выстроены симметрично, а материалы визуально расширяют помещение.

Особенности дизайна квартиры в ЖК «Большой, 67»

Особенности дизайна квартиры в ЖК «Большой, 67»

Ремонт квартиры в ЖК «Большой, 67» стал примером выверенного подхода к планировке и наполнению пространства. Все решения подчинены функциональности: линии, материалы и сценарии света формируют целостный образ. Светлая палитра и встроенные системы хранения создают ощущение порядка и открытости.

Рассчитайте стоимость дизайн-проекта, ремонта и материалов

1 из 5 вопросов

01

Выберите ваш тип жилья

У нас есть архитекторы и дизайнеры интерьеров, которые специализируются на конкретном типе помещений. Мы поможем составить грамотный дизайн-проект.

2 из 5 вопросов

02

Укажите общую площадь помещений

Для больших помещений мы снижаем стоимость закупки материалов за счет наших партнеров - строительных компаний.

м2

3 из 5 вопросов

03

В каком стиле вы хотите интерьер?

Возможно, Вы уже давно интересуетесь интерьером, и пришла пора проанализировать результат. А может быть, Вы пока не знаете, какому стилю отдать предпочтение. Выберите тот стиль, которое вам нравится больше всего.

4 из 5 вопросов

04

Когда вы хотите начать ремонтные работы?

Мы сможем заранее оценить нагруженность своей команды дизайнеров и организовать работу строителей.

5 из 5 вопросов

05

Куда отправить варианты расчета?

После отправки формы вы попадете на страницу, где сможете получить бесплатное руководство "Схема ремонта от А до Я". Мы свяжемся с Вами - и ответим на все вопросы, в течение 15 минут в рабочее время (с 10:00 до 19:00 по МСК).

Похожие статьи

  • Дизайн-проект квартиры в современном стиле в ЖК «Большой, 67» в Санкт-Петербурге
    Читать статью
  • Сколько зарабатывает дизайнер интерьера в 2026 году: реальные зарплаты в Москве, СПб и регионах
    Читать статью
  • Профессия дизайнер интерьера в 2026 году: чем занимается, сколько зарабатывает и где учиться с нуля
    Читать статью
  • Как стать дизайнером интерьера с нуля: пошаговый план обучения и первые заказы
    Читать статью

СКАЧАЙТЕ
БЕСПЛАТНОЕ РУКОВОДСТВО «СХЕМА РЕМОНТА ОТ А ДО Я»

Прочитав это руководство, вы сможете разобраться во всех тонкостях ремонта от А до Я: список этапов, их описание и особенности, полезные инструкции по их правильному выполнению — и другие важные мелочи.

  • В какой момент стоит начинать выбор дизайнера?

  • Как выбрать подходящего дизайнера?

  • Этапы создания дизайн-проекта

  • Что лучше дизайнер-одиночка
    или дизайн-студия?

Переходите в Telegram, активируйте бота
и скачайте руководство

Скачать в Telegram
«СХЕМА РЕМОНТА ОТ А ДО Я»

Напишите нам!
Посчитаем точную стоимость вашего проекта

x

Оставить заявку

Заполните форму и наш менеджер свяжется с вами

Продолжая, вы соглашаетесь с политикой конфиденциальности и обработкой персональных данных.