logo
Artum — студия дизайна интерьера
Перезвоните мне
Дизайн-проект квартиры в ЖК «Событие» в Москве с элементами ар-деко — 82 м²
блог Artum

Дизайн-проект квартиры в ЖК «Событие» в Москве с элементами ар-деко — 82 м²

Задачи проекта

  • Спроектировать системы хранения для семьи из трех человек без загромождения комнат.

  • Грамотно зонировать общую площадь на кухню, гостиную и столовую.

  • Организовать полноценные рабочие и спортивные зоны для взрослых и ребенка.

  • Интегрировать постирочный блок и мастер-гардероб.

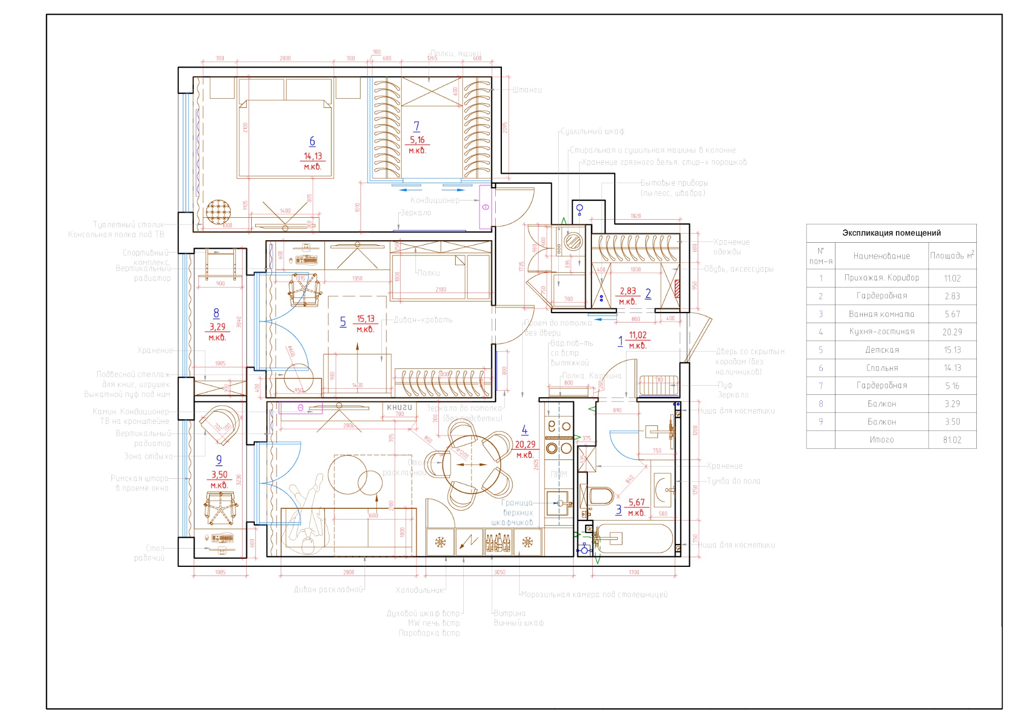
Планировочное решение

Изначально в квартире был узкий коридор и непрактичная темная кладовка. Мы полностью переделали правую часть входной зоны. За счет коридора и части маленькой комнаты выделили место под полноценную постирочную с колонной из стиральной и сушильной машин. Это позволило освободить ванную от бытовой техники. Большую лоджию разделили на две части. Первую превратили в рабочий кабинет с выходом из гостиной. Во второй части, со стороны детской, установили спортивный комплекс. В мастер-спальне нашлось место для отдельного гардероба — площадь комнаты позволила сделать это без ущерба для комфорта.

Кухня-гостиная
Кухня-гостиная
Кухня-гостиная
Кухня-гостиная

Кухня-гостиная

Главное помещение разделили на три функциональных сектора. Кухонный блок выглядит монолитно: фартук и столешница сделаны из одного и того же камня. В обеденной зоне поставили круглый стол — он занимает меньше места и удобен для общения. В зоне отдыха на фоне деревянных панелей разместили диван со светлой обивкой. Напротив — ТВ-модуль с биокамином и подвесная витрина.

Спальня
Спальня
Спальня
Спальня

Спальня

В спальне ставку сделали на фактуры. Стену за изголовьем выделили мягкими панелями, а геометрические светильники добавили графики. Мастер-гардеробную отделили перегородкой из тонированного стекла — это решение сохраняет объем комнаты и добавляет ей архитектурности, скрывая при этом содержимое полок. Пространство организовано по принципу «ничего лишнего»: всё нужное под рукой, но визуально комната остается чистой и открытой.

back back

Сколько стоит дизайн-проект и ремонт: реальные примеры с ценами

Портфолио с готовыми проектами и финальными
сметами — без скрытых затрат и неожиданных расходов

Получить портфолио и расчёт
Детская комната
Детская комната
Детская комната
Детская комната

Детская комната

Детская стала примером баланса между местом для игр и учебы. Комнату увеличили за счет присоединенного балкона, где теперь находится полноценный спортивный уголок. Систему хранения встроили у входа, дополнив её мягкой подсветкой, которая переходит на потолок. Рабочий стол у окна объединили с ТВ-зоной, что сделало пространство универсальным на вырост. Цветовую гамму выбрали спокойную, но добавили динамики через горчичные, лазурные и терракотовые детали.

Ванная комната
Ванная комната
Ванная комната
Ванная комната

Ванная комната

Здесь использовали прием контрастов: на полу лежит черный мрамор, а стены облицованы светлыми панелями. Чтобы интерьер не казался холодным, добавили тумбу под дерево. Золотая фурнитура и вертикальная подсветка зеркала работают на визуальное удлинение пространства. Ванная получилась не просто утилитарной, а эстетически насыщенной зоной для отдыха.

Рассчитайте стоимость дизайн-проекта, ремонта и материалов

1 из 5 вопросов

01

Выберите ваш тип жилья

У нас есть архитекторы и дизайнеры интерьеров, которые специализируются на конкретном типе помещений. Мы поможем составить грамотный дизайн-проект.

2 из 5 вопросов

02

Укажите общую площадь помещений

Для больших помещений мы снижаем стоимость закупки материалов за счет наших партнеров - строительных компаний.

м2

3 из 5 вопросов

03

В каком стиле вы хотите интерьер?

Возможно, Вы уже давно интересуетесь интерьером, и пришла пора проанализировать результат. А может быть, Вы пока не знаете, какому стилю отдать предпочтение. Выберите тот стиль, которое вам нравится больше всего.

4 из 5 вопросов

04

Когда вы хотите начать ремонтные работы?

Мы сможем заранее оценить нагруженность своей команды дизайнеров и организовать работу строителей.

5 из 5 вопросов

05

Куда отправить варианты расчета?

После отправки формы вы попадете на страницу, где сможете получить бесплатное руководство "Схема ремонта от А до Я". Мы свяжемся с Вами - и ответим на все вопросы, в течение 15 минут в рабочее время (с 10:00 до 19:00 по МСК).

Прихожая
Прихожая
Прихожая
Прихожая

Прихожая

В прихожей мы установили встроенное зеркало от пола до потолка, чтобы визуально расширить узкий проход. Двери в санузел и спальни выбрали в скрытом коробе и покрасили в цвет стен — так они не дробят пространство. Вместо отдельно стоящих шкафов по всей квартире распределены встроенные системы: большой гардероб при входе и три вместительных шкафа в коридоре.

Дополнительная информация о прокте

Стиль и цветовая гамма

Проект выполнен в современном стиле с элементами ар-деко. За основу взяли натуральные приглушенные тона: кофейный, песочный и молочный. Чтобы интерьер не выглядел плоским, добавили яркие синие акценты в мебели и текстиле, а также графичные черные детали в технике и отделке.

Материалы

Крупноформатный керамогранит — использовали для пола и отделки влажных зон, это практично и минимизирует количество швов.

Шпон и МДФ в эмали — основные материалы для корпусной мебели и стеновых панелей.

Натуральный камень — для рабочих поверхностей на кухне.

Тонированное стекло — из него выполнены фасады гардеробных систем.

Интересные находки

Спортивный уголок на лоджии — эффективное использование нежилой площади для активного отдыха всей семьи.

Шпонированные панели — долговечное решение, которое добавляет интерьеру статусности и не выходит из моды.

Контрастная температура цвета — сочетание теплых древесных фактур и холодного камня создает баланс, в котором комфортно находиться долгое время.

Отправьте заявку на консультацию или напишите нам в мессенджер

Мы составим для вас четкий путь от начала до результата, который потребует от вас минимальных усилий

Напишите нам!
Посчитаем точную стоимость вашего проекта

x

Оставить заявку

Заполните форму и наш менеджер свяжется с вами