logo
Artum — студия дизайна интерьера
Перезвоните мне
Дизайн-проект квартиры в ЖК «Sky View» в Москве в стиле лофт — 142 м²
блог Artum

Дизайн-проект квартиры в ЖК «Sky View» в Москве в стиле лофт — 142 м²

Задачи проекта

  • Спроектировать на первом этаже автономную мастер-зону со своим санузлом и гардеробной.

  • Организовать изолированное рабочее место внутри спальни без глухих стен.

  • Обустроить на втором этаже полноценный кабинет с отдельным узлом.

  • Объединить кухню и гостиную, выделив зону приготовления еды и столовую.

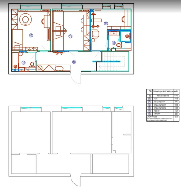
Планировочное решение

На первом этаже мы изменили конфигурацию перегородок, чтобы создать изолированный мастер-блок. Теперь вход в спальню идет через вместительную гардеробную, что избавляет жилую комнату от лишних шкафов. Выделили рабочий кабинет, который отделили стеклянной раздвижной перегородкой. Второй этаж претерпел более серьезные изменения: мы убрали лишние стены между спальней и коридором. Благодаря этому удалось выкроить место под отдельный кабинет для главы семьи с собственным входом в санузел. Две соседние комнаты отвели под детские, наполнив их системами хранения.

Кухня-гостиная
Кухня-гостиная
Кухня-гостиная
Кухня-гостиная

Кухня-гостиная

Кухню и гостиную мы оставили открытыми, чтобы не дробить площадь на мелкие помещения. Основным инструментом зонирования стал массивный деревянный стол, который конструктивно переходит в кухонный остров. В отделке доминируют темные фасады и кирпичная кладка, которые задают интерьеру нужную строгость.

В зоне отдыха поставили глубокий диван, который стал главным цветовым пятном на фоне серых стен. Вместо привычных картин одну из стен оформили живым мхом — это добавило природной шероховатости бетонному интерьеру. За освещение отвечают технические светильники и скрытые диодные ленты, которые проявляют фактуру материалов.

Мастер-спальня
Мастер-спальня
Мастер-спальня
Мастер-спальня

Мастер-спальня

Главную спальню оформили в графитовых тонах, сделав акцент на стене за изголовьем кровати. Сочетание грубой штукатурки и дерева подчеркивает минималистичный характер комнаты. Рабочий стол супруги мы расположили за стеклом с матовыми деталями, чтобы рабочие процессы не мешали отдыху. Рядом поставили кресло со столиком — получилась зона для чтения, которая не перегружает пространство мебелью.

Мастер-ванная
Мастер-ванная
Мастер-ванная
Мастер-ванная

Мастер-ванная

В основном санузле мы применили серо-графитовую гамму, разбавив её панелями под дерево для визуального тепла. Зеркало необычной формы со встроенной подсветкой работает на расширение границ узкого помещения. Душевую зону отгородили прозрачным стеклом и добавили встроенные полки-ниши для хранения косметики. Все коммуникации скрыли, оставив на виду только лаконичную сантехнику.

back back

Сколько стоит дизайн-проект и ремонт: реальные примеры с ценами

Портфолио с готовыми проектами и финальными
сметами — без скрытых затрат и неожиданных расходов

Получить портфолио и расчёт
Гостевой санузел
Гостевой санузел

Гостевой санузел

Для гостевого санузла выбрали керамогранит с текстурой камня и контрастную черную сантехнику. Несмотря на компактный размер, здесь удалось разместить полноценную душевую для гостей и второго этажа. Деревянные вставки и скрытая подсветка у зеркала добавляют глубины и избавляют интерьер от монотонности. Каждое решение здесь продиктовано эргономикой и легкостью в уборке.

Детская комната для мальчиков
Детская комната для мальчиков
Детская комната для мальчиков
Детская комната для мальчиков

Детская комната для мальчиков

Для оформления детской мы выбрали спокойную базу в оливковых и древесных тонах, которая не надоест ребенку через пару лет. Основную стену занимает длинная столешница на два рабочих места, дополненная открытыми полками с мягкой подсветкой для книг и декора. 

Зону сна мы полностью скрыли от входа с помощью высокой деревянной перегородки, создав приватный и защищенный угол для отдыха. Настроение лофта здесь поддерживают реечные панели над столом и лаконичные трековые светильники на потолке.

Детская комната для девочки
Детская комната для девочки
Детская комната для девочки
Детская комната для девочки

Детская комната для девочки

Комната выполнена в светлой гамме с теплыми горчичными акцентами, которые создают солнечное настроение. Центральное место занимает функциональная рабочая зона с деревянной перфорированной панелью для удобного хранения мелочей и творчества. 

Игровую зону мы выделили круглым ковром и миниатюрной мебелью с декоративными ушками, что добавляет пространству детской непосредственности. Высокое окно в пол закрыто плотными горчичными шторами, позволяя легко регулировать уровень освещенности для отдыха или активных игр.

Рассчитайте стоимость дизайн-проекта, ремонта и материалов

1 из 5 вопросов

01

Выберите ваш тип жилья

У нас есть архитекторы и дизайнеры интерьеров, которые специализируются на конкретном типе помещений. Мы поможем составить грамотный дизайн-проект.

2 из 5 вопросов

02

Укажите общую площадь помещений

Для больших помещений мы снижаем стоимость закупки материалов за счет наших партнеров - строительных компаний.

м2

3 из 5 вопросов

03

В каком стиле вы хотите интерьер?

Возможно, Вы уже давно интересуетесь интерьером, и пришла пора проанализировать результат. А может быть, Вы пока не знаете, какому стилю отдать предпочтение. Выберите тот стиль, которое вам нравится больше всего.

4 из 5 вопросов

04

Когда вы хотите начать ремонтные работы?

Мы сможем заранее оценить нагруженность своей команды дизайнеров и организовать работу строителей.

5 из 5 вопросов

05

Куда отправить варианты расчета?

После отправки формы вы попадете на страницу, где сможете получить бесплатное руководство "Схема ремонта от А до Я". Мы свяжемся с Вами - и ответим на все вопросы, в течение 15 минут в рабочее время (с 10:00 до 19:00 по МСК).

Кабинет
Кабинет
Кабинет
Кабинет

Кабинет

Кабинет на втором этаже — это гибрид рабочего офиса и зоны для спорта. У окна поставили широкий стол с серыми фасадами и живые растения, чтобы создать рабочую атмосферу. 

Вторую часть комнаты занял профессиональный силовой тренажер на фоне кирпичной стены с направленным светом. Для смены деятельности и отдыха предусмотрели кожаное кресло, где можно восстановиться после тренировки или звонка.

Холл второго этажа
Холл второго этажа
Холл второго этажа
Холл второго этажа

Холл второго этажа

Холл второго этажа продолжает общую логику: минимум мебели, максимум фактур камня и дерева. Вертикальное панно с зеленью и современная трековая система освещения делают транзитную зону интересной частью интерьера.

Прихожая
Прихожая
Прихожая
Прихожая

Прихожая

Прихожую облицевали темными панелями и кирпичом, сразу задавая индустриальный тон при входе в квартиру. Лестницу на второй этаж выделили каскадными лампами, превратив её из простого конструктива в визуальный центр.

Дополнительная информация о проекте

Стиль и цветовая гамма

Интерьер базируется на сочетании брутального лофта и современного минимализма. Основная палитра — глубокие серые и темные тона, которые создают камерную обстановку. Чтобы пространство не выглядело холодным, мы внедрили фактуры натурального дерева и вкрапления живой зелени (мох, растения).

Материалы

Микроцемент и декоративная штукатурка — создают бесшовные поверхности с эффектом бетона на стенах.

Кварц-винил и керамогранит — практичные напольные покрытия, устойчивые к нагрузкам в проходных зонах.

3D-панели и кирпич — отвечают за рельеф и индустриальный характер спален и кабинета.

ЛДСП и мебельные щиты — использованы для встроенных систем хранения, чтобы максимально задействовать полезную площадь.

Интересные находки

Стол-остров — единая мебельная конструкция, которая объединяет процессы готовки и приема пищи.

Стеклянное зонирование — перегородки в мастер-спальне разделяют функции, сохраняя естественное освещение.

Лестничный каскад — группа светильников разной высоты, превращающая подъем на второй этаж в арт-объект.

Отправьте заявку на консультацию или напишите нам в мессенджер

Мы составим для вас четкий путь от начала до результата, который потребует от вас минимальных усилий

Напишите нам!
Посчитаем точную стоимость вашего проекта