logo
Artum — студия дизайна интерьера
Перезвоните мне
Дизайн-проект квартиры в ЖК «Павелецкая Сити» в Москве в стиле современная классика и минимализм
блог Artum

Дизайн-проект квартиры в ЖК «Павелецкая Сити» в Москве в стиле современная классика и минимализм

Задачи проекта

  • Сформировать максимально светлое пространство с использованием белого цвета и светлой мебели.

  • Спроектировать гостевую комнату с возможностью переустройства в детскую.

  • Интегрировать в гостиной паровой камин и продумать зоны для хранения посуды.

  • Разработать многоуровневое освещение.

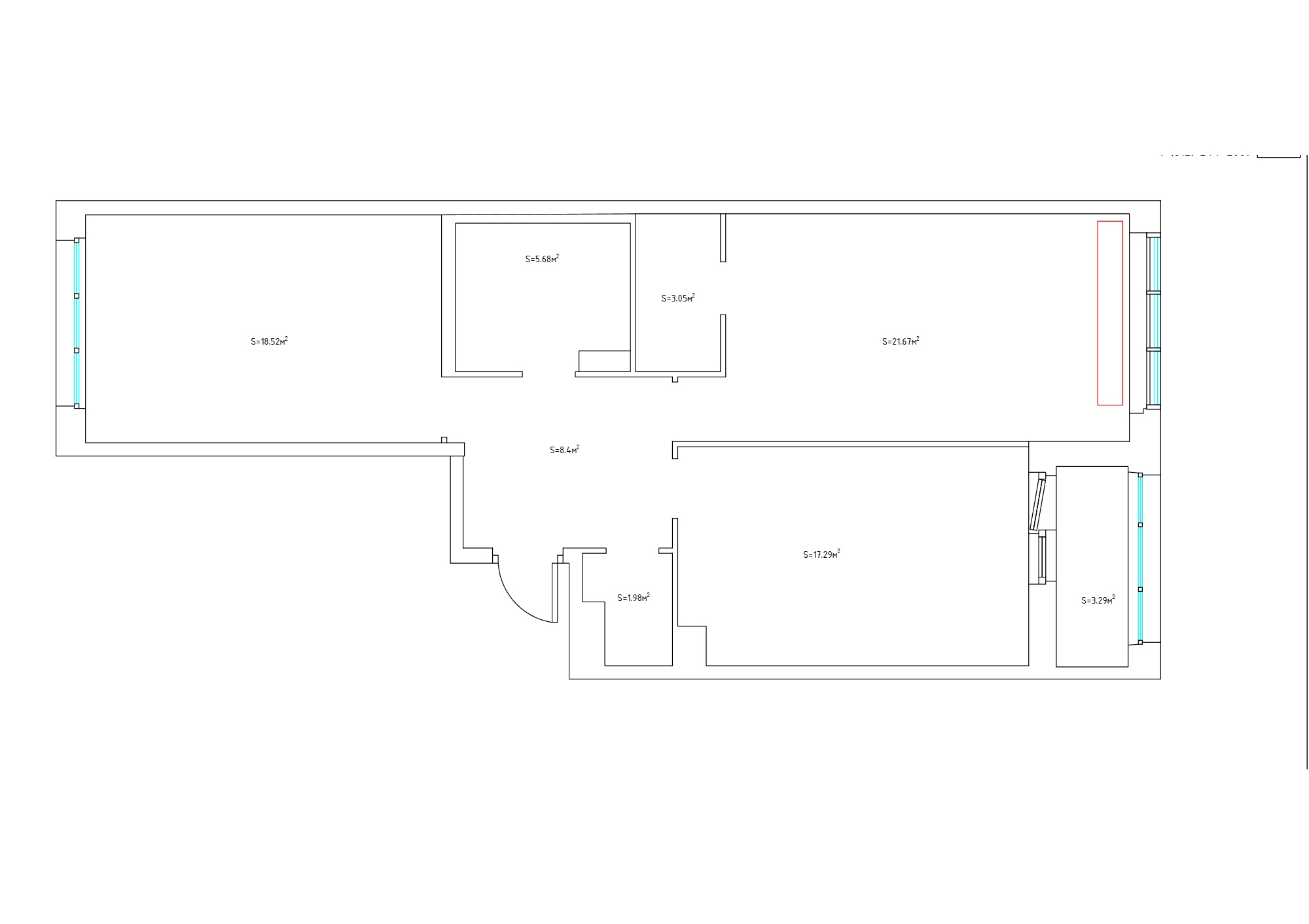
Планировочное решение

Застройщик предлагал две изолированные комнаты, небольшую кухню-гостиную, кладовую и балкон. Мы объединили балкон с частью жилой площади, за счет чего получили полноценную гостевую комнату. Оставшуюся часть комнаты присоединили к кухне-гостиной, заметно увеличив общее пространство для отдыха. Дверной проем в кладовую перенесли, чтобы освободить место под столовую группу, а в прихожей и спальне выделили ниши под системы хранения.

Гостиная
Гостиная
Гостиная
Гостиная

Гостиная

Центром комнаты стал ТВ-блок с объемным коробом, который мы облицевали искусственным мрамором. Внутри конструкции предусмотрены ниши с подсветкой, где удобно хранить бокалы и предметы декора. 

В нижней части короба установлен длинный паровой камин, создающий визуальный фокус. Светлая мебель и лаконичная люстра подчеркивают выбранную стилистику, не загромождая проходы.

Кухня
Кухня
Кухня
Кухня

Кухня

Кухонный гарнитур выглядит монолитно благодаря светлым фасадам и встроенной бытовой технике. Мы добавили тонкие латунные детали в фурнитуру и светильники, чтобы связать зону с остальным интерьером. 

Остров с отделкой под камень заменяет рабочую поверхность и подходит для быстрых перекусов. Трековые системы и подсветка верхних модулей позволяют менять интенсивность света в зависимости от времени суток.

back back

Сколько стоит дизайн-проект и ремонт: реальные примеры с ценами

Портфолио с готовыми проектами и финальными
сметами — без скрытых затрат и неожиданных расходов

Получить портфолио и расчёт
Спальня
Спальня
Спальня
Спальня

Спальня

В комнате использовали нюдовую гамму, где основной эффект создается за счет сочетания разных материалов. За изголовьем кровати смонтирована стена из декоративных панелей с вертикальными латунными вставками и мягким светом. 

Вместо массивных шкафов мы спроектировали гардеробную со стеклянными рифлеными фасадами в металлической раме. Это решение закрывает вопрос хранения вещей и оставляет ощущение свободного пространства.

Гостевая комната
Гостевая комната
Гостевая комната
Гостевая комната

Гостевая комната

Сейчас помещение выполняет функции кабинета, но его легко адаптировать под нужды ребенка. На акцентной стене установлено 3D-панно, которое в будущем можно перекрасить в яркие цвета без демонтажа. 

Рабочий стол интегрирован в общую композицию со стеллажами, где также присутствуют латунные элементы. Диван и светлый текстиль делают комнату универсальной для отдыха или работы.

Рассчитайте стоимость дизайн-проекта, ремонта и материалов

1 из 5 вопросов

01

Выберите ваш тип жилья

У нас есть архитекторы и дизайнеры интерьеров, которые специализируются на конкретном типе помещений. Мы поможем составить грамотный дизайн-проект.

2 из 5 вопросов

02

Укажите общую площадь помещений

Для больших помещений мы снижаем стоимость закупки материалов за счет наших партнеров - строительных компаний.

м2

3 из 5 вопросов

03

В каком стиле вы хотите интерьер?

Возможно, Вы уже давно интересуетесь интерьером, и пришла пора проанализировать результат. А может быть, Вы пока не знаете, какому стилю отдать предпочтение. Выберите тот стиль, которое вам нравится больше всего.

4 из 5 вопросов

04

Когда вы хотите начать ремонтные работы?

Мы сможем заранее оценить нагруженность своей команды дизайнеров и организовать работу строителей.

5 из 5 вопросов

05

Куда отправить варианты расчета?

После отправки формы вы попадете на страницу, где сможете получить бесплатное руководство "Схема ремонта от А до Я". Мы свяжемся с Вами - и ответим на все вопросы, в течение 15 минут в рабочее время (с 10:00 до 19:00 по МСК).

Ванная комната
Ванная комната
Ванная комната
Ванная комната

Ванная комната

Интерьер ванной построен на сочетании крупноформатного керамогранита под мрамор и латунной сантехники. Стены оформлены плитами с активным рисунком прожилок, который подчеркнут направленным вертикальным светом. 

Подвесная тумба с рифлением не занимает много места и упрощает уборку пола. Душевая зона отделена прозрачной перегородкой, сохраняя общую прозрачность и легкость помещения.

Прихожая
Прихожая
Прихожая
Прихожая

Прихожая

Входная зона оформлена в едином ключе с жилыми комнатами через использование лепнины и стеновых панелей. Мы встроили вместительный шкаф в нишу, сделав его фасады максимально незаметными на фоне стен. 

Напротив входа расположена консоль на латунном основании с зеркалом и пуфом для удобства. Скрытые линии света по периметру помогают визуально выровнять геометрию коридора.

Дополнительная информация о проекте

Стиль и цветовая гамма

Интерьер базируется на принципах современного минимализма с добавлением классических элементов декора. Основная палитра состоит из белых, пудровых и нюдовых тонов. Латунный декор и металлические вставки используются как связующее звено, проходящее через все помещения квартиры.

Материалы

Краска и полимерный гипс — использованы для отделки стен и создания рельефного декора.

Кварцвинил — выбран в качестве износостойкого покрытия для пола в жилых зонах.

Текстильные и каменные панели — применяются в отделке акцентных стен для создания объема.

Керамогранит и микроцемент — основные материалы для влажных зон, имитирующие натуральный мрамор и бетон.

Интересные находки

Скрытая дверь в гостевую — полностью сливается с отделкой стены в гостиной и не дробит пространство.

Трансформируемое панно в кабинете — декоративный элемент, который меняет назначение комнаты с помощью цвета.

Паровой камин в ТВ-зоне — выступает как безопасная альтернатива живому огню и увлажняет воздух.

Рифленые фасады — повторяются в мебели разных комнат, создавая единый визуальный код проекта.

Отправьте заявку на консультацию или напишите нам в мессенджер

Мы составим для вас четкий путь от начала до результата, который потребует от вас минимальных усилий

Напишите нам!
Посчитаем точную стоимость вашего проекта