logo
Artum — студия дизайна интерьера
Перезвоните мне
Дизайн-проект квартиры в ЖК «Опалиха-Village» в Москве с элементами ар-деко — 80 м²
блог Artum

Дизайн-проект квартиры в ЖК «Опалиха-Village» в Москве с элементами ар-деко — 80 м²

Задачи проекта

  • Спроектировать две полноценные ванные комнаты — хозяйскую и гостевую с душевой зоной.

  • Выделить изолированный кабинет с местами для чтения и отдыха.

  • Установить в прихожей акцентное зеркало нестандартной формы.

  • Оформить интерьер в приглушенных природных тонах с использованием камня и дерева.

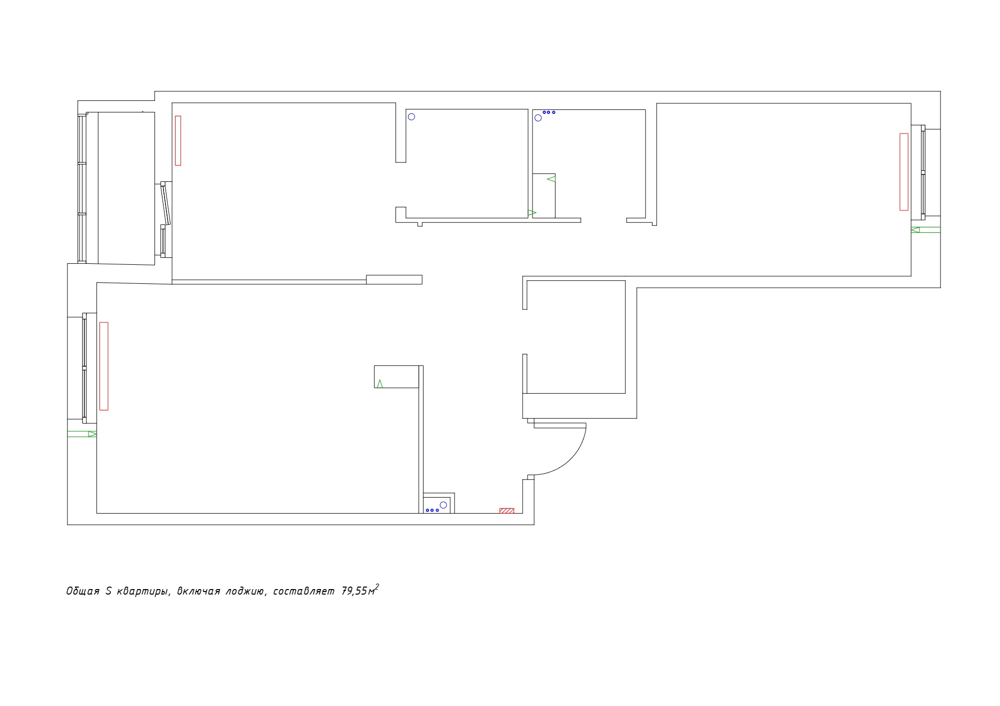
Планировочное решение

В ходе работы мы изменили исходное планировочное решение, чтобы повысить приватность кабинета. Раньше войти в санузел с душевой можно было только через рабочую комнату, что было неудобно для гостей. Теперь вход перенесён в общий коридор, а кабинет стал полностью независимым помещением. В большой ванной комнате разместили колонну из стиральной и сушильной машин.

Кухня-гостиная
Кухня-гостиная
Кухня-гостиная
Кухня-гостиная

Кухня-гостиная

Общее пространство кухни и гостиной мы разделили на логические сегменты с помощью мебельных групп. Кухонный гарнитур выбрали с гладкими светло-серыми фасадами и фурнитурой из латуни. 

В обеденной зоне поставили круглый стол, который визуально смягчает геометрию комнаты и упрощает передвижение. Над ним закрепили светильник с золотистым корпусом, который сочетается с отделкой кухни. Для зоны отдыха подобрали диван в бежевом оттенке и столики со столешницами из камня.

 

Спальня
Спальня
Спальня
Спальня

Спальня

Для оформления стены за изголовьем кровати мы использовали приём асимметрии: скомбинировали шалфейную краску и классические молдинги. Кровать с велюровой обивкой подобрана в светло-кофейном оттенке, что делает массивную мебель менее заметной. 

Освещение представлено люстрой и бра в виде стеклянных ветвей, которые создают мягкие блики вечером. Напротив спального места расположили ТВ-зону и компактный туалетный столик с круглым зеркалом.

 

back back

Сколько стоит дизайн-проект и ремонт: реальные примеры с ценами

Портфолио с готовыми проектами и финальными
сметами — без скрытых затрат и неожиданных расходов

Получить портфолио и расчёт
Ванная комната
Ванная комната

Ванная комната

Интерьер основной ванной комнаты выполнен в светлых тонах с текстурой натурального камня. Все системы хранения спрятаны под раковиной, чтобы на виду не оставалось лишних бытовых мелочей. Зеркало со скрытой контурной подсветкой и подвесные лампы добавляют помещению объёма. 

Фурнитура и смесители в цвете латуни поддерживают общую стилистику квартиры. Акцентная стена, облицованная панелями с вертикальным рифлением и зеркальными вставками, не только скрывает встроенные шкафы, но и визуально вытягивает помещение.

 

Гостевой санузел
Гостевой санузел

Гостевой санузел

В небольшом гостевом санузле мы сделали ставку на эффектную отделку душевой зоны. Главным элементом здесь стало мозаичное панно с крупным растительным принтом. Мебель выполнена в глубоком серо-синем цвете, который контрастирует со светлой базой стен. 

Стеклянные перегородки в душевой визуально не загромождают пространство и пропускают свет. Латунные детали объединяют дизайн этого помещения с основной ванной комнатой.

 

Рассчитайте стоимость дизайн-проекта, ремонта и материалов

1 из 5 вопросов

01

Выберите ваш тип жилья

У нас есть архитекторы и дизайнеры интерьеров, которые специализируются на конкретном типе помещений. Мы поможем составить грамотный дизайн-проект.

2 из 5 вопросов

02

Укажите общую площадь помещений

Для больших помещений мы снижаем стоимость закупки материалов за счет наших партнеров - строительных компаний.

м2

3 из 5 вопросов

03

В каком стиле вы хотите интерьер?

Возможно, Вы уже давно интересуетесь интерьером, и пришла пора проанализировать результат. А может быть, Вы пока не знаете, какому стилю отдать предпочтение. Выберите тот стиль, которое вам нравится больше всего.

4 из 5 вопросов

04

Когда вы хотите начать ремонтные работы?

Мы сможем заранее оценить нагруженность своей команды дизайнеров и организовать работу строителей.

5 из 5 вопросов

05

Куда отправить варианты расчета?

После отправки формы вы попадете на страницу, где сможете получить бесплатное руководство "Схема ремонта от А до Я". Мы свяжемся с Вами - и ответим на все вопросы, в течение 15 минут в рабочее время (с 10:00 до 19:00 по МСК).

Кабинет
Кабинет
Кабинет
Кабинет

Кабинет

Рабочую зону формирует лаконичный письменный стол, интегрированный в стеллаж с комбинированными фасадами и встроенной подсветкой. Рядом расположен сине-серый диван, дополненный декоративными подушками в тон интерьеру и абстрактной картиной на стене. 

У окна обустроен уголок для чтения с глубоким зеленым креслом и торшером из латуни. Обилие текстиля на окнах и паркет «ёлочкой» завершают спокойный образ многофункционального пространства.

 

Прихожая
Прихожая

Прихожая

Главным акцентом входной зоны стало крупное зеркало сложной формы с мягкой подсветкой по периметру. Рядом расположили узкую консоль для ключей и декоративных аксессуаров. Встроенный шкаф для верхней одежды выкрашен в серо-зелёный цвет и дополнен латунными ручками. 

Мы предусмотрели удобную нишу с мягким сиденьем и открытой полкой для обуви. Вертикальные линии на фасадах шкафа визуально приподнимают потолок и делают коридор просторнее.

 

Дополнительная информация о проекте

Стиль и цветовая гамма

Интерьер выполнен в современной классике с добавлением элементов ар-деко. Палитра основана на сочетании шалфейного, серо-голубого и бежевого цветов с переходом в насыщенный синий в акцентах. Металлические детали из латуни связывают все помещения в единую интерьерную историю.

Материалы

Матовая краска и молдинги — формируют основу стен, добавляя архитектурности без лишнего декора.

Керамогранит под камень и мозаика — использованы в санузлах для создания долговечного и эстетичного покрытия.

Велюр и дерево — применяются в отделке мебели и пола, привнося тактильно приятные фактуры в жилые зоны.

Латунь и стекло — присутствуют в светильниках и фурнитуре, отвечая за деликатный блеск и детализацию.

Интересные находки

Зеркальные вставки между молдингами — расположены в спальне напротив кровати для игры отражений и расширения комнаты.

Цветовой градиент — в кабинете и спальне краска на стенах совпадает по тону с текстилем штор для эффекта бесшовности.

Асимметричный декор — разное оформление сторон у изголовья кровати ломает привычные шаблоны классического дизайна.

Отправьте заявку на консультацию или напишите нам в мессенджер

Мы составим для вас четкий путь от начала до результата, который потребует от вас минимальных усилий

Напишите нам!
Посчитаем точную стоимость вашего проекта