logo
Artum — студия дизайна интерьера
Перезвоните мне
Дизайн-проект квартиры в ЖК «Окла Вижн» в Санкт-Петербурге в стиле современной классики - 110 м²
блог Artum

Дизайн-проект квартиры в ЖК «Окла Вижн» в Санкт-Петербурге в стиле современной классики - 110 м²

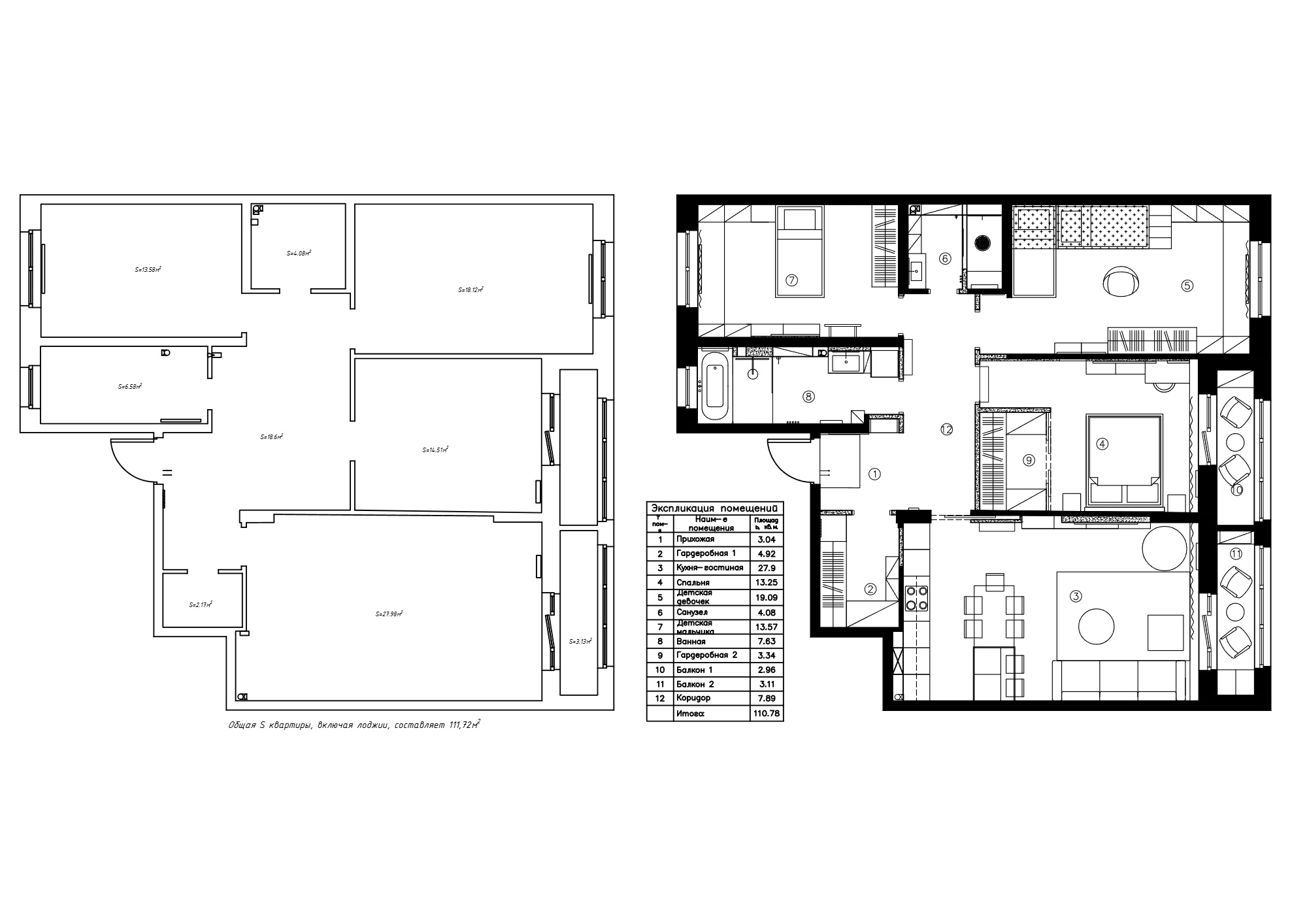
Задачи проекта

  • Спроектировать изолированную гардеробную комнату в зоне прихожей.

  • Найти место для отдельного постирочного блока со стиральной и сушильной машинами.

  • Обустроить комфортную детскую для двух девочек с игровыми и учебными зонами.

  • Создать объединённое пространство кухни-гостиной с четким зонированием.

Планировочное решение

Чтобы реализовать запросы семьи, мы провели основательную перепланировку исходных данных от застройщика. При входе демонтировали часть газобетонной стены и перенесли дверной проём в гостиную, что позволило выкроить место под полноценную гардеробную. Площадь санузла немного увеличили за счёт коридора, чтобы интегрировать туда глубокие шкафы для бытовой техники. В мастер-спальне также изменили геометрию стен, выделив приватную зону для хранения вещей. Кухню и гостиную объединили в один открытый зал, где центральным элементом стал мебельный остров.

Кухня-гостиная
Кухня-гостиная
Кухня-гостиная
Кухня-гостиная

Кухня-гостиная

Общая зона стала смысловым центром квартиры, где вся семья проводит время вместе. Кухонный гарнитур выстроили в одну линию и выбрали для фасадов светло-серый оттенок, характерный для современной классики. Обеденную группу выделили стульями в глубокой синей обивке, которые работают как главный цветовой акцент. 

Зону отдыха с большим диваном отделили от кухни с помощью барного острова и кофейного стола. Стены оформили молдингами и тонкими рейками, а освещение разделили на трековые системы и декоративные подвесы над столом.

Спальня
Спальня
Спальня
Спальня

Спальня

В интерьере мастер-спальни мы продолжили общую колористику проекта, сочетая серые стены с синим текстилем кровати. Изголовье выделили вертикальными панелями, дополнив их узкими бра для вечернего чтения. Напротив спального места организовали многофункциональную зону с телевизором и туалетным столиком, который служит и рабочим местом. 

Вдоль входа установили высокие шкафы с зеркальными полотнами, чтобы визуально расширить границы комнаты. Хранение организовали так, чтобы на виду оставалось минимум мелких предметов.

 

Детская комната девочек
Детская комната девочек
Детская комната девочек
Детская комната девочек

Детская комната девочек

Для двух сестер мы выбрали формат комнаты с двухъярусной кроватью в виде домика. Нижний ярус служит основным спальным местом, а верхний используется как площадка для активных игр. 

Вдоль окна смонтировали столешницу на два рабочих места, чтобы девочкам было удобно заниматься творчеством и уроками. Предусмотрели комбинацию закрытых шкафов и открытых полок для хранения игрушек и книг. В зоне отдыха повесили плетеное кресло, которое стало любимым местом для чтения.

 

back back

Сколько стоит дизайн-проект и ремонт: реальные примеры с ценами

Портфолио с готовыми проектами и финальными
сметами — без скрытых затрат и неожиданных расходов

Получить портфолио и расчёт
Детская комната мальчика
Детская комната мальчика
Детская комната мальчика
Детская комната мальчика

Детская комната мальчика

Комнату для сына оформили в более строгой манере с преобладанием синих и серых тонов. Спальное место дополнили мягкими стеновыми панелями и ТВ-зоной для отдыха и видеоигр. Рабочий стол также разместили у окна во всю ширину простенка, обеспечив хорошее естественное освещение. 

Высокие шкафы до потолка позволяют убрать все вещи, включая спортивную форму и учебники. По просьбе семьи в комнате установили атлетический турник, который компактно вписался в планировку.

 

Ванная комната
Ванная комната
Ванная комната
Ванная комната

Ванная комната

Основная ванная комната оформлена крупноформатным керамогранитом в серых тонах с матовой текстурой. Ванну установили под окном, а в свободной нише собрали хозяйственный шкаф-колонну с постирочным оборудованием. 

Шкафы до потолка и встроенные ниши дают достаточно места для всех бытовых мелочей. Вся сантехника выбрана в лаконичном дизайне, чтобы не отвлекать внимание от благородной фактуры плитки.

 

Гостевой санузел
Гостевой санузел
Гостевой санузел
Гостевой санузел

Гостевой санузел

В душевой использовали серые плиты и контрастную синюю плитку на одной из стен. Встроенная ниша и скамья добавлены для удобства ежедневного использования. 

Зона отделена прозрачной стеклянной перегородкой и оснащена современной системой тропического душа. Такое решение позволило сделать небольшое помещение функциональным и визуально легким.

 

Рассчитайте стоимость дизайн-проекта, ремонта и материалов

1 из 5 вопросов

01

Выберите ваш тип жилья

У нас есть архитекторы и дизайнеры интерьеров, которые специализируются на конкретном типе помещений. Мы поможем составить грамотный дизайн-проект.

2 из 5 вопросов

02

Укажите общую площадь помещений

Для больших помещений мы снижаем стоимость закупки материалов за счет наших партнеров - строительных компаний.

м2

3 из 5 вопросов

03

В каком стиле вы хотите интерьер?

Возможно, Вы уже давно интересуетесь интерьером, и пришла пора проанализировать результат. А может быть, Вы пока не знаете, какому стилю отдать предпочтение. Выберите тот стиль, которое вам нравится больше всего.

4 из 5 вопросов

04

Когда вы хотите начать ремонтные работы?

Мы сможем заранее оценить нагруженность своей команды дизайнеров и организовать работу строителей.

5 из 5 вопросов

05

Куда отправить варианты расчета?

После отправки формы вы попадете на страницу, где сможете получить бесплатное руководство "Схема ремонта от А до Я". Мы свяжемся с Вами - и ответим на все вопросы, в течение 15 минут в рабочее время (с 10:00 до 19:00 по МСК).

Балконы
Балконы
Балконы
Балконы

Балконы

Оба балкона оформили в светлой гамме, которая поддерживает стиль современной классики во всей квартире. На каждом балконе поставили пару компактных кресел и небольшой стол для утреннего кофе или чтения. 

Пространства дополнили высокие встроенные шкафы, которые дают много дополнительного места для хранения сезонных вещей. Пол отделали плиткой с мраморным рисунком, а на окна повесили светлые рулонные шторы.

 

Прихожая
Прихожая
Прихожая
Прихожая

Прихожая

В прихожей появился отдельный гардеробный блок, который заказчики просили на этапе обсуждения проекта. У входа разместили консоль с мягкой банкеткой и большим зеркалом, чтобы было удобно собираться всей семьей. 

Стены выполнили в светло-серой гамме, которая объединяет коридор с остальными комнатами. Разместили семейные снимки для создания домашней атмосферы. Освещение построили на линейных светильниках и поворотных спотах, которые дают ровный свет по всей зоне.

 

Дополнительная информация о проекте

Стиль и цветовая гамма

Интерьер реализован в современной классике с акцентом на чистые линии и отсутствие лишнего декора. Базовая палитра состоит из светлых пастельных оттенков серого, которые служат фоном для активных синих пятен в мебели и текстиле. Классические молдинги и карнизы здесь выглядят современно за счёт упрощённого профиля и однотонного окрашивания.

Материалы

Краска и полиуретановые рейки — создают основной рельеф стен и легко обновляются при необходимости.

Керамогранит и кварц-винил — выбраны как самые износостойкие покрытия для дома, где живут трое детей.

Мебельные панели ЛДСП и МДФ — использованы для всех встроенных систем хранения, шкафов и кухонных модулей.

Стекло и металл — применяются в перегородках и светильниках для придания интерьеру легкости.

Интересные находки

Остров как разделитель — кухонный остров не только увеличил рабочую поверхность, но и визуально отсек зону готовки от дивана.

Комбинированная отделка в душе — использование синей плитки в гостевом санузе изменило восприятие узкого помещения.

Кровать-домик — двухэтажная конструкция в детской сэкономила место для активных игр на полу.

Рабочие зоны у окон — длинные столешницы вдоль подоконников позволили задействовать максимум полезной площади комнат.

Отправьте заявку на консультацию или напишите нам в мессенджер

Мы составим для вас четкий путь от начала до результата, который потребует от вас минимальных усилий

Напишите нам!
Посчитаем точную стоимость вашего проекта