logo
Artum — студия дизайна интерьера
Перезвоните мне
Дизайн-проект квартиры в ЖК «Новоселье: Городские кварталы» в Санкт-Петербурге в современном стиле — 100 м²
блог Artum

Дизайн-проект квартиры в ЖК «Новоселье: Городские кварталы» в Санкт-Петербурге в современном стиле — 100 м²

Задачи проекта

  • Спроектировать пространство с логичным делением на приватные и общие зоны.

  • Разработать игровую систему и спальные места для домашних животных.

  • Установить стеклянную перегородку между спальней и ванной комнатой.

  • Обустроить вместительную гардеробную и визуально расширить входную группу.

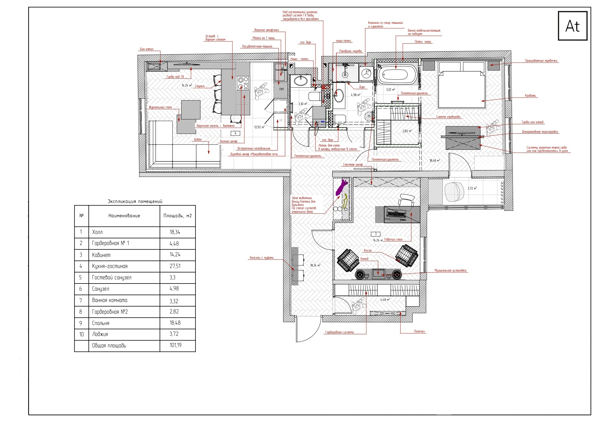
Планировочное решение

Планировочное решение разделяет квартиру на рабочую, общую и личную части. Кухня-гостиная стала центром, куда можно попасть из холла или кабинета. Спальню мы вынесли в отдельный блок, объединив её с ванной и гардеробной. Кабинет находится рядом со входом, чтобы рабочие звонки и дела не мешали тем, кто отдыхает в гостиной. Холл остался свободным от лишних вещей благодаря отдельной гардеробной для верхней одежды.

Кухня-гостиная
Кухня-гостиная
Кухня-гостиная
Кухня-гостиная

Кухня-гостиная

Пространство объединяет несколько функций, сохраняя при этом строгую геометрию. Главным цветовым пятном здесь стал большой бордовый диван на фоне серой отделки стен. Стена в ТВ-зоне оформлена бетонными панелями, открытыми нишами и ламелями. 

Кухонный остров с барной стойкой отделяет зону готовки от места отдыха и служит обеденным столом. Кухонный гарнитур встроен в нишу, имеет лаконичные фасады и скрытую технику.

 

Мастер-спальня
Мастер-спальня
Мастер-спальня
Мастер-спальня

Мастер-спальня

Интерьер спальни построен на спокойных цветах и вертикальных линиях. У изголовья кровати установлена панель из деревянных ламелей, которая задает масштаб всей комнате. 

По бокам стоят тумбы, а сверху закреплены подвесные светильники с деталями из латуни. Ванную комнату отделяет перегородка из прозрачного стекла в черном профиле. Сама ванна стоит на подиуме с декоративными камнями, а стены облицованы крупной плиткой с фактурой.

 

back back

Сколько стоит дизайн-проект и ремонт: реальные примеры с ценами

Портфолио с готовыми проектами и финальными
сметами — без скрытых затрат и неожиданных расходов

Получить портфолио и расчёт
Санузлы
Санузлы

Санузлы

В первом санузле мы использовали темные каменные плиты с грубой фактурой. Раковина из цельного природного камня стала главным акцентом в этом помещении. По периметру зеркала и вдоль стен встроена диодная подсветка для мягкого освещения. 

Второй санузел сделан в светлых тонах, где столешница под дерево добавляет природный оттенок. Душевая зона отделена прозрачным стеклом, а крупноформатная плитка на стенах минимизирует количество швов и упрощает уборку.

 

Кабинет
Кабинет
Кабинет
Кабинет

Кабинет

Комната оформлена в коричневых тонах с использованием выразительных материалов. Рабочий стол стоит напротив большой мебельной конструкции с полками и закрытыми секциями. В зоне отдыха мы поставили мягкое кресло и торшер дуговой формы для чтения. 

На стене висит абстрактная картина, которая поддерживает общую графику и стиль кабинета. Освещение здесь разделено на общее и локальное для комфортной работы за компьютером.

 

Прихожая
Прихожая

Прихожая

Входная зона выделена износостойкой каменной плиткой, которая стыкуется с деревянным полом коридора. Зеркало в полный рост расширяет узкое пространство и отражает свет от ламп. Мы спроектировали специальный модуль для кошек с переходами и ступенями на стене. 

Линейная подсветка на потолке подчеркивает направление движения и геометрию стен. Двери скрытого монтажа установлены вровень со стеной, чтобы не перегружать интерьер деталями.

 

Дополнительная информация о проекте

Стиль и цветовая гамма

Интерьер реализован в современном стиле. Цветовая база построена на молочно-белых и теплых серых оттенках, которые делают пространство светлее и визуально просторнее. Зеленые и небесно-голубые акценты добавлены через мебель, панели и декор, чтобы интерьер сохранял спокойствие и цельность.

Материалы

Краска и декоративные панели — формируют нейтральный фон, подчеркивающий архитектуру интерьера.

Керамогранит с каменной текстурой — использован в санузле и акцентных зонах, отличается практичностью и устойчивостью.

Паркетная доска, уложенная «ёлкой» — добавляет тепла и делает интерьер более объёмным визуально.

3D-панели, молдинги и карнизы — выступают в роли деликатного декора, создавая рельеф и глубину без перегруза.

 

Интересные находки

Каменные поверхности с зелёной графикой — объединяют кухонную и гостиную зоны в единую композицию.

Деревянные рейки и панели — смягчают геометрию интерьера и визуально связывают разные зоны квартиры.

Круглое панно с графикой гор в спальне — становится акцентом и придаёт пространству индивидуальный характер.

 

Отправьте заявку на консультацию или напишите нам в мессенджер

Мы составим для вас четкий путь от начала до результата, который потребует от вас минимальных усилий

Напишите нам!
Посчитаем точную стоимость вашего проекта