logo
Artum — студия дизайна интерьера
Перезвоните мне
Дизайн-проект квартиры в ЖК «Noble (Нобл)» в Москве с элементами американской классики — 117 м²
блог Artum

Дизайн-проект квартиры в ЖК «Noble (Нобл)» в Москве с элементами американской классики — 117 м²

Задачи проекта

  • Спроектировать интерьер в авторском стиле с использованием темных цветов.

  • Организовать мастер-зону с ванной-спа, душевой кабиной и двойной раковиной.

  • Создать разветвленную систему хранения, включая мужскую и женскую части гардероба.

  • Адаптировать пространство под жизнь котов с автоматизированными зонами ухода.

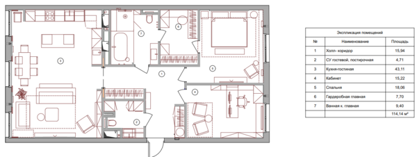
Планировочное решение

Мы полностью пересмотрели исходное деление пространства, демонтировав лишние перегородки и увеличив полезную площадь за счет коридоров. Гостевой санузел переоборудовали в постирочную, а при основной спальне организовали просторный блок мастер-ванной. В центре квартиры теперь расположен широкий холл, который открывает независимый доступ во все комнаты. Спроектировали проходную гардеробную с двойным входом — со стороны холла и через ванную комнату.

Кухня
Кухня
Кухня
Кухня

Кухня

Кухонный блок разделен на функциональные зоны, включая автономную кофе-станцию при входе. Угловой шкаф выполнен, как полноценная система хранения, в которую можно зайти внутрь благодаря складным дверям. 

Рабочий фартук и массивный остров изготовлены из натурального гранита с выразительным рисунком. В основание кухонного острова мы встроили специальную нишу для кормления котов, предусмотрев там розетки для автоматических поилок.

Гостиная
Гостиная

Гостиная

В центре гостиной установили большой модульный диван и организовали ТВ-зону с игровой стойкой для питомцев. Система освещения здесь базируется на локальных источниках — бра и торшерах, что позволяет обходиться без резкого верхнего света. 

Расстановка мебели выполнена так, чтобы сохранить широкие проходы для свободного перемещения между столовой и зоной отдыха. Потолки выкрашены на тон светлее стен, что визуально выделяет массивную лепнину и декоративные карнизы.

Мастер-спальня
Мастер-спальня
Мастер-спальня
Мастер-спальня

Мастер-спальня

Главным элементом спальни стала кровать с высоким мягким изголовьем, установленная на фоне фактурных стеновых панелей. Стены и потолок здесь выкрашены в единый насыщенный синий цвет, что создает эффект закрытого камерного пространства. 

Между спальней и гардеробной установлена светопрозрачная перегородка, которая пропускает дневной свет вглубь помещения. Мебель из натурального шпона сочетается с плотным текстилем в глубоких приглушенных тонах.

back back

Сколько стоит дизайн-проект и ремонт: реальные примеры с ценами

Портфолио с готовыми проектами и финальными
сметами — без скрытых затрат и неожиданных расходов

Получить портфолио и расчёт
Гардеробная
Гардеробная
Гардеробная
Гардеробная

Гардеробная

Система хранения строго разделена на мужскую и женскую половины с учетом габаритов разной одежды и аксессуаров. Чтобы узкое пространство не казалось тесным — закрыли торцы шкафов зеркальными панелями, которые визуально расширяют проходы. 

У одной из стен обустроен туалетный столик с направленной подсветкой для макияжа. Планировка предусматривает сквозной проход, который связывает жилую часть квартиры с мастер-ванной через гардеробную.

Мастер-ванная
Мастер-ванная
Мастер-ванная
Мастер-ванная

Мастер-ванная

Мы установили отдельно стоящую чашу ванны и душевую кабину с сиденьем на общий подиум, облицованный крупноформатным керлитом. Для отделки стен и пола выбрали материал с текстурой оникса, который подчеркивает статус интерьера. 

Широкая раковина укомплектована двумя независимыми смесителями, а все бытовые принадлежности скрыты во встроенных шкафах. Уровень потолка над подиумом намеренно опущен, что вместе с мягкой подсветкой имитирует обстановку премиального спа.

Рассчитайте стоимость дизайн-проекта, ремонта и материалов

1 из 5 вопросов

01

Выберите ваш тип жилья

У нас есть архитекторы и дизайнеры интерьеров, которые специализируются на конкретном типе помещений. Мы поможем составить грамотный дизайн-проект.

2 из 5 вопросов

02

Укажите общую площадь помещений

Для больших помещений мы снижаем стоимость закупки материалов за счет наших партнеров - строительных компаний.

м2

3 из 5 вопросов

03

В каком стиле вы хотите интерьер?

Возможно, Вы уже давно интересуетесь интерьером, и пришла пора проанализировать результат. А может быть, Вы пока не знаете, какому стилю отдать предпочтение. Выберите тот стиль, которое вам нравится больше всего.

4 из 5 вопросов

04

Когда вы хотите начать ремонтные работы?

Мы сможем заранее оценить нагруженность своей команды дизайнеров и организовать работу строителей.

5 из 5 вопросов

05

Куда отправить варианты расчета?

После отправки формы вы попадете на страницу, где сможете получить бесплатное руководство "Схема ремонта от А до Я". Мы свяжемся с Вами - и ответим на все вопросы, в течение 15 минут в рабочее время (с 10:00 до 19:00 по МСК).

Гостевой санузел и постирочная
Гостевой санузел и постирочная

Гостевой санузел и постирочная

Объединили хозяйственный блок с гостевым санузлом, выделив нишу под колонну из стиральной и сушильной машин. Под общей столешницей предусмотрено место для электронных самоочищающихся лотков с подведенными коммуникациями и розетками. 

Пол отделан метлахской плиткой, которая не боится влаги и устойчива к механическим повреждениям от когтей. Блок расположен максимально близко ко входной зоне для удобства логистики внутри квартиры.

Кабинет
Кабинет
Кабинет
Кабинет

Кабинет

Рабочее место спроектировано как полноценный кабинет с массивной мебелью и глубокими креслами для чтения. Широкий подоконник превращен в зону отдыха, а в соседний стеллаж скрыто вмонтирован компактный мини-холодильник. 

Освещение в кабинете преимущественно фоновое, что исключает блики на мониторе и создает комфортную среду для работы. Отделка из натурального шпона дерева придает помещению строгость и завершает общую стилистику проекта.

Прихожая
Прихожая
Прихожая
Прихожая

Прихожая

Входная зона оформлена практичной метлахской плиткой с аутентичным геометрическим узором. В холле смонтированы два глубоких встроенных шкафа для раздельного хранения сезонных вещей и повседневной верхней одежды. 

Зеркальные вставки на мебели стирают границы стен и убирают ощущение замкнутого коридора. Отказ от белого цвета на потолке в пользу насыщенной краски позволил создать обволакивающий и цельный интерьер с первых шагов.

Дополнительная информация о проекте

Стиль и цветовая гамма

Интерьер базируется на смешении американской классики и современных решений с акцентом на архитектурный декор. Цветовая палитра состоит из глубокого синего, графитового и терракотового цветов. Такая гамма выбрана для создания приватной атмосферы и акцента на качественной отделке стен и потолков. Насыщенные тона подчеркивают масштаб лепнины и делают пространство визуально более сложным и дорогим.

Материалы

Натуральный камень — гранит на кухне и керлит с текстурой оникса в ванной комнате обеспечивают долговечность и премиальный вид.

Дерево и эмаль — паркетная доска на полу и мебельные фасады из натурального шпона добавляют интерьеру тактильности и тепла.

Метлахская плитка — использована в мокрых зонах и прихожей как наиболее износостойкий материал, как раз для владельцев животных.

Лепной декор — карнизы и молдинги, выкрашенные в тон стен, формируют рельеф и задают классический вектор всему проекту.

Интересные находки

Кошачья эргономика — скрытые в мебели ниши для кормления и самоочищающихся лотков позволяют поддерживать чистоту без ущерба для эстетики.

Единый подиум в спа-зоне — объединение ванны и душа на одной платформе с акцентной подсветкой создает эффект люксового отеля.

Световой коридор в гардеробной — стеклянная перегородка в спальне избавляет техническое помещение от темноты и эффекта «чулана».

Угловое хранение «Step-in» — кухонный шкаф с глубоким внутренним пространством  по объему как небольшая кладовая.

Отправьте заявку на консультацию или напишите нам в мессенджер

Мы составим для вас четкий путь от начала до результата, который потребует от вас минимальных усилий

Напишите нам!
Посчитаем точную стоимость вашего проекта