logo
Artum — студия дизайна интерьера
Перезвоните мне
Дизайн-проект квартиры в ЖК «NewПитер» в Санкт-Петербурге в стиле современный минимализм
блог Artum

Дизайн-проект квартиры в ЖК «NewПитер» в Санкт-Петербурге в стиле современный минимализм

Задачи проекта

  • Создать светлый минималистичный интерьер без ярких акцентов, с точечными контрастами в темной гамме.

  • Организовать удобные системы хранения при минимальном количестве мебели.

  • Переделать отделку от застройщика с заменой покрытий и корректировкой проёмов.

  • Спроектировать ванную комнату с полноценной ванной и хозблоком.

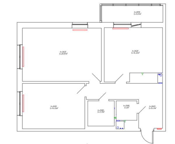
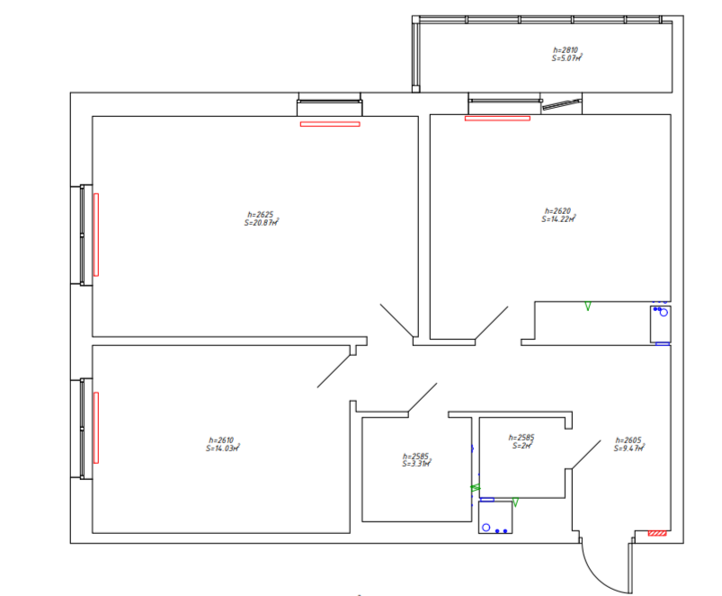
Планировочное решение

В проекте провели перепланировку, чтобы сделать квартиру удобнее. Раздельный санузел и ванную объединили — за счёт этого удалось разместить полноценную ванну и встроить хозяйственный блок. Проход из гостиной в кухню изначально был узким и нефункциональным, поэтому его заменили расширенным проемом. Дополнительно подняли дверные проемы, чтобы вытянуть высоту помещений.

Гостиная
Гостиная
Гостиная
Гостиная

Гостиная

Гостиная решена в спокойной минималистичной палитре. Крупный модульный диван формирует основную зону отдыха и задаёт масштаб комнаты.

ТВ-стена выполнена из керамогранита с интегрированной подсветкой — за счёт фактуры и глубины она становится композиционным центром. Растения у окна поддерживают природные материалы в отделке.

 

Кухня
Кухня
Кухня
Кухня

Кухня

Кухня построена на сочетании нейтральных фасадов и древесных текстур. Гарнитур довели до потолка — это дало хранение без визуальной перегрузки.
Фартук и рабочую зону выполнили из тёплого серого керамогранита с мягкой подсветкой.

Обеденная группа со скруглённым столом и стульями на деревянных опорах формирует отдельную зону. Вся техника собрана в едином блоке, поэтому композиция выглядит цельно.

 

back back

Сколько стоит дизайн-проект и ремонт: реальные примеры с ценами

Портфолио с готовыми проектами и финальными
сметами — без скрытых затрат и неожиданных расходов

Получить портфолио и расчёт
Спальня
Спальня
Спальня
Спальня

Спальня

Спальня выдержана в нейтральной гамме. Высокое мягкое изголовье задаёт центральную ось и акцентирует зону кровати. Фактурная отделка стен добавляет глубину без контрастов.

Гардероб со стеклянными затемнёнными фасадами дополнен внутренней подсветкой — хранение остаётся удобным, а вертикали мебели визуально вытягивают пространство. Линейный потолочный свет поддерживает общую геометрию интерьера.

 

Ванная комната
Ванная комната

Ванная комната

После объединения санузла удалось сформировать полноценную ванную комнату. Акцент сделали на тёмном керамограните в зоне душевой — он добавляет глубины. Светлая каменная текстура на остальных стенах балансирует отделку. Стиральная и сушильная машины встроены в нишу и закрыты фасадами, поэтому техника не дробит пространство.

Рассчитайте стоимость дизайн-проекта, ремонта и материалов

1 из 5 вопросов

01

Выберите ваш тип жилья

У нас есть архитекторы и дизайнеры интерьеров, которые специализируются на конкретном типе помещений. Мы поможем составить грамотный дизайн-проект.

2 из 5 вопросов

02

Укажите общую площадь помещений

Для больших помещений мы снижаем стоимость закупки материалов за счет наших партнеров - строительных компаний.

м2

3 из 5 вопросов

03

В каком стиле вы хотите интерьер?

Возможно, Вы уже давно интересуетесь интерьером, и пришла пора проанализировать результат. А может быть, Вы пока не знаете, какому стилю отдать предпочтение. Выберите тот стиль, которое вам нравится больше всего.

4 из 5 вопросов

04

Когда вы хотите начать ремонтные работы?

Мы сможем заранее оценить нагруженность своей команды дизайнеров и организовать работу строителей.

5 из 5 вопросов

05

Куда отправить варианты расчета?

После отправки формы вы попадете на страницу, где сможете получить бесплатное руководство "Схема ремонта от А до Я". Мы свяжемся с Вами - и ответим на все вопросы, в течение 15 минут в рабочее время (с 10:00 до 19:00 по МСК).

Прихожая
Прихожая
Прихожая
Прихожая

Прихожая

Прихожая решена в нейтральной палитре с акцентом на вертикальные древесные панели. Встроенные шкафы до потолка закрывают задачи хранения. На полу — керамогранит с мягким серым рисунком, практичный для входной зоны. Скрытая фурнитура и минимальные ручки подчёркивают минимализм.

Дополнительная информация о проекте

Стиль и цветовая гамма

Интерьер выполнен в современном минимализме. Цветовая база строится на бежевых, оттенках слоновой кости и светло-коричневой гамме. Тёмно-коричневые элементы добавлены через панели, керамогранит и мебель, чтобы подчеркнуть глубину.

Материалы

Краска и декоративные панели — формируют спокойный фон и подчёркивают архитектуру помещений.

Керамогранит — использован в акцентных зонах, на ТВ-стене и в санузле, отличается практичностью.

Паркетная доска — применена в жилых помещениях, добавляет теплоту фактуры.

Древесные панели и рейки — поддерживают вертикали и связывают зоны квартиры.

 

Интересные находки

Встроенный хозяйственный блок в ванной — скрыт за раздвижной реечной перегородкой и остаётся незаметным.

Стеновая панель во входной зоне — формирует акцентный узел, видимый уже с порога.

ТВ-стена из керамогранита с паровым камином и подсветкой — ключевой композиционный элемент гостиной.

 

Отправьте заявку на консультацию или напишите нам в мессенджер

Мы составим для вас четкий путь от начала до результата, который потребует от вас минимальных усилий

Напишите нам!
Посчитаем точную стоимость вашего проекта