logo
Artum — студия дизайна интерьера
Перезвоните мне
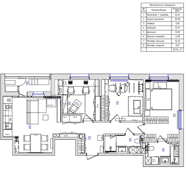
Дизайн-проект квартиры в ЖК «Монодом Арт (Monodom Art)» в Санкт-Петербурге в современном стиле — 92 м²
блог Artum

Дизайн-проект квартиры в ЖК «Монодом Арт (Monodom Art)» в Санкт-Петербурге в современном стиле — 92 м²

Задачи проекта

  • Спроектировать изолированную мастерскую для работы с 3D-принтерами.

  • Внедрить полноценную систему вентиляции без потери высоты потолков.

  • Организовать скрытые системы хранения для большой коллекции настольных игр и вещей.

  • Оформить детскую комнату на перспективу, сохранив актуальность интерьера на годы вперед.

Планировочное решение

Мы изменили границы помещений, чтобы выжать максимум пользы из каждого метра. Кухню расширили за счет соседней комнаты, превратив ее в просторную зону для приема гостей и партий в настолки. В спальне установили перегородки, которые сформировали проходную гардеробную и отделили зону сна от входа. Гостевой санузел также увеличили, что позволило вписать туда полноценную душевую кабину и хозяйственные шкафы.

Кухня-гостиная
Кухня-гостиная
Кухня-гостиная
Кухня-гостиная

Кухня-гостиная

Рабочую зону кухни собрали из серых матовых фасадов и панелей с текстурой дерева. Фартук дополнили открытой полкой и сделали столешницу глубже стандартной для удобства готовки.

Главный акцент здесь — бирюзовый стеллаж, созданный специально для хранения игровых коробок, и круглое рельефное панно. Центром отдыха стал модульный диван, а тематику фэнтези поддерживает пуф, напоминающий игровую кость-двадцатигранник.

Спальня
Спальня

Спальня

Для оформления стены за кроватью использовали комбинацию вертикальных реек, шпона и белых 3D-панелей. Кровать с изумрудным мягким изголовьем стала единственным крупным цветовым пятном в комнате. 

Вместо обычных тумб мы закрепили подвесные консоли, чтобы пол оставался свободным и его было проще убирать. Рядом с кроватью смонтировали систему хранения во всю стену, фасады которой сливаются с отделкой и не перегружают пространство.

back back

Сколько стоит дизайн-проект и ремонт: реальные примеры с ценами

Портфолио с готовыми проектами и финальными
сметами — без скрытых затрат и неожиданных расходов

Получить портфолио и расчёт
Ванная комната
Ванная комната
Ванная комната
Ванная комната

Ванная комната

Стены и пол облицевали керамогранитом под светлый камень, разбавив его сине-бирюзовыми панелями. Подвесная тумба выглядит легко, а высокое зеркало с подсветкой визуально добавляет помещению объема. 

Мы спроектировали скрытые шкафы, где за фасадами спрятаны счетчики, фильтры и запасы бытовой химии. Колонну из стиральной и сушильной машины убрали в колонну из светлых панелей.

Гостевой санузел
Гостевой санузел

Гостевой санузел

Главный акцент этого компактного санузла — стена в зоне душа, выложенная мелкоформатной глянцевой плиткой насыщенного изумрудного цвета с вертикальной раскладкой. 

Душевую зону отделяет минималистичная стеклянная перегородка в черном профиле, сохраняющая визуальный простор. Организовали вместительную скрытую систему шкафов с деревянными фасадами, которые скрывают инженерные узлы и вмещают хозяйственные принадлежности.

Кабинет-мастерская
Кабинет-мастерская

Кабинет-мастерская

Эту комнату мы превратили в полноценный техцентр с рабочим столом вдоль окна, рассчитанным на два места. Для работы 3D-принтеров вывели отдельную группу розеток и предусмотрели поверхности для покраски фигурок.

В комнате установили шкаф со встроенной кроватью-трансформером, поэтому кабинет легко превращается в гостевую спальню. Синяя мебель здесь выступает ярким пятном на фоне нейтральных светлых стен.

Рассчитайте стоимость дизайн-проекта, ремонта и материалов

1 из 5 вопросов

01

Выберите ваш тип жилья

У нас есть архитекторы и дизайнеры интерьеров, которые специализируются на конкретном типе помещений. Мы поможем составить грамотный дизайн-проект.

2 из 5 вопросов

02

Укажите общую площадь помещений

Для больших помещений мы снижаем стоимость закупки материалов за счет наших партнеров - строительных компаний.

м2

3 из 5 вопросов

03

В каком стиле вы хотите интерьер?

Возможно, Вы уже давно интересуетесь интерьером, и пришла пора проанализировать результат. А может быть, Вы пока не знаете, какому стилю отдать предпочтение. Выберите тот стиль, которое вам нравится больше всего.

4 из 5 вопросов

04

Когда вы хотите начать ремонтные работы?

Мы сможем заранее оценить нагруженность своей команды дизайнеров и организовать работу строителей.

5 из 5 вопросов

05

Куда отправить варианты расчета?

После отправки формы вы попадете на страницу, где сможете получить бесплатное руководство "Схема ремонта от А до Я". Мы свяжемся с Вами - и ответим на все вопросы, в течение 15 минут в рабочее время (с 10:00 до 19:00 по МСК).

Детская комната
Детская комната
Детская комната
Детская комната

Детская комната

Для хранения вещей и игрушек установили большой встроенный блок с деревянными фасадами и зелеными рифлеными панелями. Письменный стол встроили прямо в мебельную конструкцию, добавив локальную подсветку и открытые полки для книг. 

Акцентную стену у дивана оформили принтом с лесным сюжетом, который будет интересен ребенку разного возраста. Дополнительно обустроили спортивный уголок со шведской стенкой и скалодромом.

Прихожая
Прихожая
Прихожая
Прихожая

Прихожая

Стены покрасили в светло-серый тон, на фоне которого выигрышно смотрится встроенный шкаф с древесной фактурой. Для повседневных вещей оставили открытую зону с вешалками и добавили бирюзовую консоль для ключей и мелочей. 

Освещение на потолке дает направленный свет, помогая избежать темных углов в длинном коридоре. На полу уложили износостойкий кварцвинил, который не боится влаги и когтей домашнего питомца.

Дополнительная информация о проекте

Стиль и цветовая гамма

Интерьер реализован в современном стиле, основная палитра состоит из светло-серого и коричневого цветов, которые дополнены активными акцентами зеленого, бирюзового и синего. Такое сочетание позволяет выделить функциональные зоны и отразить интересы владельцев, не перегружая визуальное восприятие квартиры.

Материалы

Краска и 3D-панели — использованы для отделки стен, создают архитектурный рельеф и упрощают локальный ремонт.

Кварцвинил — выбран в качестве напольного покрытия за его прочность, влагостойкость и тактильное тепло.

Гибкий камень и шпон — добавляют интерьеру натуральные фактуры в акцентных зонах спальни и гостиной.

Натяжной потолок — позволил аккуратно скрыть трассы вентиляционной системы и встроить современное трековое освещение.

Интересные находки

Круглое фрезерованное панно — декоративный элемент в обеденной зоне, дополненный контурной подсветкой для создания атмосферы.

Кровать-трансформер — скрытая в шкафу конструкция в кабинете, которая позволяет быстро подготовить спальное место для родственников.

Глубокий кухонный гарнитур — нестандартное решение со встроенной системой хранения в фартуке, увеличивающее полезную площадь столешницы.

Отправьте заявку на консультацию или напишите нам в мессенджер

Мы составим для вас четкий путь от начала до результата, который потребует от вас минимальных усилий

Напишите нам!
Посчитаем точную стоимость вашего проекта