logo
Artum — студия дизайна интерьера
Перезвоните мне
Дизайн-проект квартиры в ЖК «Logos (Логос)» в Москве в стиле французской классики — 114 м²
блог Artum

Дизайн-проект квартиры в ЖК «Logos (Логос)» в Москве в стиле французской классики — 114 м²

Задачи проекта

  • Спроектировать скрытую зону в гардеробе для хранения лыжной экипировки.

  • Интегрировать в кухонный гарнитур максимум техники.

  • Спрятать массивную вентиляцию так, чтобы сохранить основную высоту потолков.

  • Подобрать особый лепной декор, чтобы закрепить шторы на стене при низком потолке.

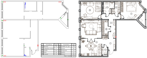
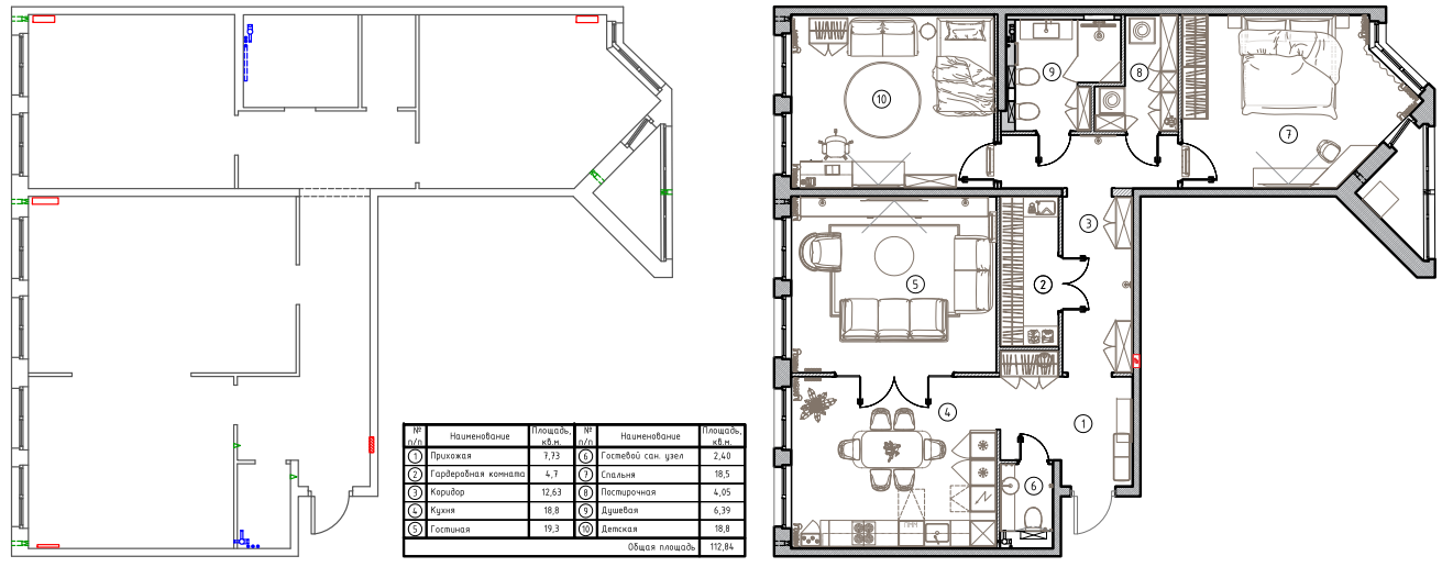
Планировочное решение

Изначальное решение застройщика предполагало узкий коридор и отсутствие мест для хранения вещей. Мы изменили границы помещений: ванную и постирочную расширили, задействовав часть коридора. Чтобы выкроить место под полноценную гардеробную, пришлось немного уменьшить гостиную. Также мы поработали с высотой: технические короба вентиляции скрыли за разноуровневыми конструкциями, оформив переходы декоративными порталами.

Кухня
Кухня
Кухня
Кухня

Кухня

Кухня и гостиная здесь могут работать как единое целое или как два изолированных помещения. Мы установили высокие распашные двери, которые позволяют быстро трансформировать пространство под ситуацию. Кухонный гарнитур выполнен из массива дерева в светлых оттенках, что облегчает массивную мебель. В одной из колонн нам удалось вертикально разместить сразу три прибора: винный шкаф, СВЧ и духовку.

Гостиная
Гостиная
Гостиная
Гостиная

Гостиная

Главным героем зоны отдыха стал диван в лаконичной обивке, который дополнили креслом с трендовой фактурой «букле». Реализовали крутую фишку с ТВ-зоной: чтобы экран не выпирал, нарастили стену и спрятали кронштейн в глубокую нишу. Стену в этой зоне обшили натуральным шпоном в тон кухонных фасадов, что круто связывает пространство воедино.

Интерьер наполнен деталями, которые хочется рассматривать: изящная люстра-ожерелье над диваном перекликается с круглыми бра на стенах, а строгие молдинги подчеркивают высоту потолка. Из-за особенностей вентиляции потолок пришлось опустить, поэтому мы подобрали особый лепной декор, чтобы закрепить шторы прямо на стенах — это сохранило ощущение воздуха.

back back

Сколько стоит дизайн-проект и ремонт: реальные примеры с ценами

Портфолио с готовыми проектами и финальными
сметами — без скрытых затрат и неожиданных расходов

Получить портфолио и расчёт
Гардеробная
Гардеробная

Гардеробная

Гардеробную комнату выделили специально, чтобы освободить коридор и жилые помещения от массивных шкафов. Внутри продумали специальные секции для хранения лыж и объемной спортивной одежды. Светлая отделка и грамотное освещение делают комнату визуально просторнее и удобнее для ежедневного использования.

Ванная комната
Ванная комната
Ванная комната
Ванная комната

Ванная комната

Для основной ванной выбрали широкоформатный керамогранит с мягкой текстурой камня. Главная фишка здесь — узкая вертикальная ниша с полками и встроенной подсветкой, где удобно хранить косметику, не загромождая пространство лишними деталями.

Мы установили подвесную сантехнику со скругленными углами, а под раковиной разместили вместительную подвесную тумбу в сером оттенке с классическими ручками. Душевая зона отделена прозрачным стеклом, а внутри предусмотрена удобная встроенная полка для банных принадлежностей.

Рассчитайте стоимость дизайн-проекта, ремонта и материалов

1 из 5 вопросов

01

Выберите ваш тип жилья

У нас есть архитекторы и дизайнеры интерьеров, которые специализируются на конкретном типе помещений. Мы поможем составить грамотный дизайн-проект.

2 из 5 вопросов

02

Укажите общую площадь помещений

Для больших помещений мы снижаем стоимость закупки материалов за счет наших партнеров - строительных компаний.

м2

3 из 5 вопросов

03

В каком стиле вы хотите интерьер?

Возможно, Вы уже давно интересуетесь интерьером, и пришла пора проанализировать результат. А может быть, Вы пока не знаете, какому стилю отдать предпочтение. Выберите тот стиль, которое вам нравится больше всего.

4 из 5 вопросов

04

Когда вы хотите начать ремонтные работы?

Мы сможем заранее оценить нагруженность своей команды дизайнеров и организовать работу строителей.

5 из 5 вопросов

05

Куда отправить варианты расчета?

После отправки формы вы попадете на страницу, где сможете получить бесплатное руководство "Схема ремонта от А до Я". Мы свяжемся с Вами - и ответим на все вопросы, в течение 15 минут в рабочее время (с 10:00 до 19:00 по МСК).

Гостевой санузел
Гостевой санузел

Гостевой санузел

В этом пространстве мы использовали плитку-октагон на полу, которая сразу задает ретро-настроение и сочетается с вертикальными панелями на стенах. Главным акцентом стала широкая столешница из белого мрамора с выразительными серыми прожилками, на которой установлена аккуратная накладная раковина. 

Чтобы визуально расширить узкую комнату, мы смонтировали большое зеркало во всю ширину стены с эффектной скрытой подсветкой по периметру. Все хозяйственные коммуникации и системы хранения спрятаны за лаконичными фасадами в цвет стен, поэтому интерьер выглядит очень аккуратным и собранным.

Прихожая
Прихожая
Прихожая
Прихожая

Прихожая

Коридор оставили чистым и светлым, избавив его от лишней мебели. Смонтировали зеркальные панно, которые визуально расширяют узкое пространство. В конце коридора разместили картину как яркий цветовой акцент. Все двери в проекте — с компланарной системой: они стоят в одной плоскости со стенами, делая интерьер цельным и аккуратным.

Дополнительная информация о проекте

Стиль и цветовая гамма

Интерьер выполнен в современной классике с акцентом на светлые, сложные оттенки серого и бежевого. Белые двери и плинтусы подчеркивают архитектуру стен и добавляют пространству четкости. Основной декор — это багеты и молдинги, которые задают ритм, но не перегружают комнаты лишними деталями.

Материалы

Натуральный дуб — паркетная доска на полу добавляет интерьеру тепла и природной фактуры.

Искусственный камень — из него изготовлены подоконники и столешницы для долговечности и практичности.

Натуральный шпон и массив — использованы в отделке ТВ-зоны и кухонных фасадов для единства стиля.

Специальный лепной декор — подобран для оформления переходов потолка и монтажа штор на стены.

Интересные находки

Компланарные двери — позволяют полотнам стоять в один уровень со стеной, несмотря на разное направление открывания.

Вертикальная колонна техники — редкое решение по размещению винного шкафа, СВЧ и духовки в один ряд.

Зона хранения лыж — продуманная скрытая секция в гардеробной, решающая вопрос хранения спортинвентаря.

Отправьте заявку на консультацию или напишите нам в мессенджер

Мы составим для вас четкий путь от начала до результата, который потребует от вас минимальных усилий

Напишите нам!
Посчитаем точную стоимость вашего проекта