logo
Artum — студия дизайна интерьера
Перезвоните мне
Дизайн-проект квартиры в ЖК «Лермонтовский 54» в Санкт-Петербурге в стиле джапанди — 50 м²
блог Artum

Дизайн-проект квартиры в ЖК «Лермонтовский 54» в Санкт-Петербурге в стиле джапанди — 50 м²

Задачи проекта

  • Организовать два изолированных рабочих места, не занимая пространство кухни-гостиной.

  • Скрыть интерьер от взглядов с улицы (квартира находится на втором этаже с панорамными окнами), сохранив естественное освещение.

  • Спроектировать полную звукоизоляцию пола, стен и потолка из-за коммерческих помещений снизу.

  • Создать цельный интерьер в эстетике джапанди при ограниченном бюджете.

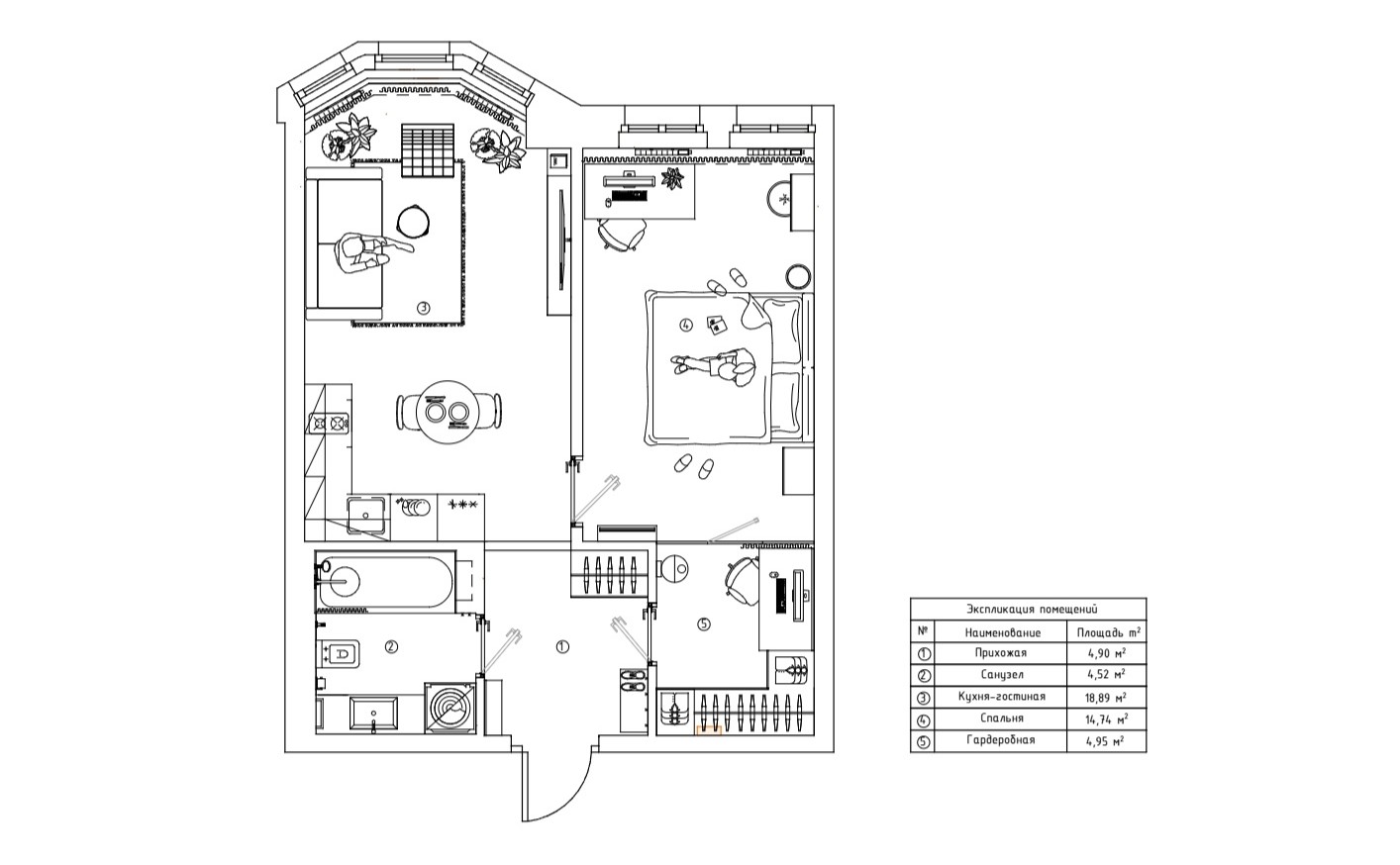
Планировочное решение

Мы сделали перепланировку: демонтировали часть перегородок, чтобы по-новому использовать комнаты. Глухую стену между спальней и бывшей гардеробной заменили стеклянной перегородкой — так на месте кладовой появился кабинет. Вход в санузел перенесли, освободив место под широкую ванну. Кухню-гостиную оставили только для отдыха, а второй рабочий стол вынесли в спальню.

Кухня-гостиная
Кухня-гостиная
Кухня-гостиная
Кухня-гостиная

Кухня-гостиная

Пространство собрано в светлых природных тонах с текстурой дерева. Кухню выстроили в линию, скрыв технику в высоких шкафах, а фартук оформили вертикальной плиткой. Обеденная зона с круглым столом поддерживает мягкие формы мебели. В гостиной поставили зелёный диван и кресло в ткани букле. Чтобы защитить окна от взглядов с улицы, мы использовали деревянные жалюзи и живые растения — это сохранило приватность и мягкий дневной свет.

Спальня
Спальня
Спальня
Спальня

Спальня

Здесь мы выделили рабочую зону за стеклянными дверями — она работает как тихий кабинет, не загромождая комнату визуально. Зелёное изголовье кровати и деревянные поверхности создают спокойный фон. У окна разместили туалетный столик, а по бокам от кровати — подвесные светильники и тумбы. Внутри рабочего отсека встроили шкафы под дерево и поставили компактный стол с мягким креслом.

Рассчитайте стоимость дизайн-проекта, ремонта и материалов

1 из 5 вопросов

01

Выберите ваш тип жилья

У нас есть архитекторы и дизайнеры интерьеров, которые специализируются на конкретном типе помещений. Мы поможем составить грамотный дизайн-проект.

2 из 5 вопросов

02

Укажите общую площадь помещений

Для больших помещений мы снижаем стоимость закупки материалов за счет наших партнеров - строительных компаний.

м2

3 из 5 вопросов

03

В каком стиле вы хотите интерьер?

Возможно, Вы уже давно интересуетесь интерьером, и пришла пора проанализировать результат. А может быть, Вы пока не знаете, какому стилю отдать предпочтение. Выберите тот стиль, которое вам нравится больше всего.

4 из 5 вопросов

04

Когда вы хотите начать ремонтные работы?

Мы сможем заранее оценить нагруженность своей команды дизайнеров и организовать работу строителей.

5 из 5 вопросов

05

Куда отправить варианты расчета?

После отправки формы вы попадете на страницу, где сможете получить бесплатное руководство "Схема ремонта от А до Я". Мы свяжемся с Вами - и ответим на все вопросы, в течение 15 минут в рабочее время (с 10:00 до 19:00 по МСК).

Ванная комната
Ванная комната
Ванная комната
Ванная комната

Ванная комната

В зоне ванны плитку выложили вертикально в терракотовом цвете, остальную базу сделали светлой. Для хранения предусмотрели открытые ниши и тумбу под раковину в отделке деревом. Стиральную и сушильную машины спрятали в отдельный встроенный модуль. Освещение разделили на разные цели: общий свет, подсветка зеркала и локальный акцент над ванной.

Прихожая
Прихожая

Прихожая

Входную зону оформили деревянными панелями и светлой краской. Мы предусмотрели мягкую скамью с полкой для обуви, крючки для одежды и ростовое зеркало с консолью. Свет встроили скрыто, чтобы создать мягкий эффект без лишних деталей в кадре.

Дополнительная информация о прокте

Стиль и цветовая гамма

Интерьер выдержан в стиле джапанди. Базовые тёплые тона дополнены акцентами — зелёным и терракотовым. Такое сочетание создает ощущение баланса, уюта и визуальной чистоты.

 

Материалы

Инженерная доска — натуральное дерево на полу добавляет тепла и текстурности.

Краска и натяжной тканевый потолок — матовые поверхности формируют мягкий, спокойный фон.

Деревянные жалюзи — практичное решение для окон на низком этаже, сохраняющее приватность.

Интересные находки

Напольный светильник — модель из металла в стиле брутализм с мраморным основанием (HM).

Кресло в букле — предмет необычной формы от SK Design, ставший мягким акцентом в гостиной.

Керамический столик — прикроватный арт-объект необычной формы от In My Room.

Отправьте заявку на консультацию или напишите нам в мессенджер

Мы составим для вас четкий путь от начала до результата, который потребует от вас минимальных усилий

Напишите нам!
Посчитаем точную стоимость вашего проекта

x

Оставить заявку

Заполните форму и наш менеджер свяжется с вами