logo
Artum — студия дизайна интерьера
Перезвоните мне
Дизайн-проект квартиры в ЖК «Империал Клаб (Imperial Club)» в Санкт-Петербурге
блог Artum

Дизайн-проект квартиры в ЖК «Империал Клаб (Imperial Club)» в Санкт-Петербурге

Задачи проекта

Предлагаем посмотреть, какие задачи стояли перед дизайн-проектом квартиры в ЖК «Империал Клаб» и как они влияют на интерьер:

  • создать современный дизайн квартиры с мужским характером в глубоких темных тонах;

  • спроектировать изолированный рабочий кабинет с сохранением естественного освещения;

  • интегрировать системы хранения в скрытые ниши для визуальной чистоты;

  • выполнить эксклюзивный дизайн интерьера квартиры с использованием натурального камня и арт-объектов.

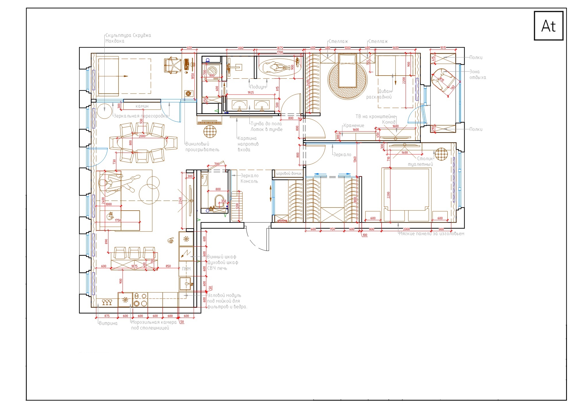
Планировочное решение

Индивидуальная планировка квартиры в ЖК «Империал Клаб» четко разделяет общие и приватные зоны. Продуманное планировочное решение объединило гостиную, кухню и столовую в одно открытое пространство, а спальни были вынесены в отдельный блок. Логичная перепланировка позволила расположить кабинет так, чтобы работа из дома не мешала остальной семье. Санузлы сгруппированы в одной части жилья, что упростило разводку коммуникаций. Данный дизайн-проект дополнительно выиграл в эргономике за счет шкафов, вписанных в габариты стен.

Кухня-гостиная
Кухня-гостиная
Кухня-гостиная
Кухня-гостиная

Кухня-гостиная

 
Как оформить кухню-гостиную в квартире в ЖК «Империал Клаб», чтобы пространство выглядело цельно и оставалось удобным? 

 

Кухня

Кухонная зона выглядит цельной и строгой благодаря монолитным темным фасадам, отражающим премиальный дизайн интерьера квартиры. Вместительный остров заменяет привычный стол для быстрых перекусов и служит удобной рабочей поверхностью. 

Мы добавили элегантные стеклянные витрины, в которые встроена мягкая внутренняя подсветка, чтобы визуально облегчить массив гарнитура. Каменные поверхности и минимум открытых полок позволяют поддерживать идеальный порядок в зоне готовки.

Гостиная
Гостиная
Гостиная
Гостиная

Гостиная

В гостиной мы собрали функциональные зоны вокруг камина и ТВ-панели. Мягкая группа со светлым диваном дополнена легкими журнальными столиками, формирующими стильный интерьер квартиры. Обеденная зона выделена дизайнерскими стульями, массивным столом и эффектным светильником. Главным декоративным элементом стала крупная фигура медведя, добавляющая обстановке иронии и узнаваемости.

 

Сколько стоит дизайн-проект и ремонт квартиры в ЖК «Империал Клаб» и где посмотреть реальные примеры с ценами?

Чтобы узнать, сколько стоит дизайн квартиры конкретно для вашей планировки, оставьте заявку на расчет, и мы подготовим точную смету. Посмотреть готовые ремонты можно в нашем портфолио.

back back

Сколько стоит дизайн-проект и ремонт: реальные примеры с ценами

Портфолио с готовыми проектами и финальными
сметами — без скрытых затрат и неожиданных расходов

Получить портфолио и расчёт
Спальня с гардеробной
Спальня с гардеробной
Спальня с гардеробной
Спальня с гардеробной

Спальня с гардеробной

Центром спальни стала кровать с массивным мягким изголовьем, задающим правильные пропорции комнате. Стену за ней мы оформили комбинацией панелей с разными фактурами и тонкими вставками из металла. 

Невесомая люстра над кроватью создает контраст с тяжелыми материалами отделки и добавляет пространству воздуха, благодаря чему дизайн спальни транслирует ощущение воздуха. Гардеробная за стеклянными фасадами в темных профилях выглядит аккуратно и позволяет быстро найти нужную вещь.

Другие помещения проекта
Другие помещения проекта
Другие помещения проекта
Другие помещения проекта

Другие помещения проекта

Какие решения для кабинета, детской, ванной и прихожей лучше всего работают в квартире ЖК «Imperial Club»? Мы обустроили остальные зоны следующим образом.

 

Ванная комната 

Основная ванная комната спроектирована как место для отдыха с отдельностоящей чашей и стеной из камня и душевой зоной. Активный природный рисунок на керамограните заменяет привычный декор и становится главным украшением комнаты. 

Подвесные светильники и скрытые ниши для хранения делают эксплуатацию удобной и эстетичной. Мы убрали все лишние детали, чтобы подчеркнуть чистоту линий и красоту материалов.

Гостевой санузел
Гостевой санузел

Гостевой санузел

Гостевой санузел получился компактным, но максимально функциональным за счет использования каждого сантиметра. Вместо навесных полок мы спроектировали встроенные ниши, которые сливаются с плоскостью стен. 

Скрытая инсталляция и лаконичная тумба под раковину поддерживают общую стилистику минимализма. Светло-бежевая отделка здесь работает на создание камерной и спокойной атмосферы.

Рассчитайте стоимость дизайн-проекта, ремонта и материалов

1 из 5 вопросов

01

Выберите ваш тип жилья

У нас есть архитекторы и дизайнеры интерьеров, которые специализируются на конкретном типе помещений. Мы поможем составить грамотный дизайн-проект.

2 из 5 вопросов

02

Укажите общую площадь помещений

Для больших помещений мы снижаем стоимость закупки материалов за счет наших партнеров - строительных компаний.

м2

3 из 5 вопросов

03

В каком стиле вы хотите интерьер?

Возможно, Вы уже давно интересуетесь интерьером, и пришла пора проанализировать результат. А может быть, Вы пока не знаете, какому стилю отдать предпочтение. Выберите тот стиль, которое вам нравится больше всего.

4 из 5 вопросов

04

Когда вы хотите начать ремонтные работы?

Мы сможем заранее оценить нагруженность своей команды дизайнеров и организовать работу строителей.

5 из 5 вопросов

05

Куда отправить варианты расчета?

После отправки формы вы попадете на страницу, где сможете получить бесплатное руководство "Схема ремонта от А до Я". Мы свяжемся с Вами - и ответим на все вопросы, в течение 15 минут в рабочее время (с 10:00 до 19:00 по МСК).

Кабинет в ЖК «Империал Клаб»
Кабинет в ЖК «Империал Клаб»
Кабинет в ЖК «Империал Клаб»
Кабинет в ЖК «Империал Клаб»

Кабинет в ЖК «Империал Клаб»

Рабочее место мы встроили в нишу у окна, что позволило освободить центральную часть комнаты. Стеклянные раздвижные перегородки отделяют кабинет от гостиной, пропуская свет и не создавая глухих преград. 

Для отдыха здесь предусмотрены мягкое кресло и небольшой диван, превращающие зону в приватную библиотеку. Фактурная отделка стен и постеры подчеркивают индивидуальность владельца.

Прихожая ЖК «Империал Клаб»
Прихожая ЖК «Империал Клаб»
Прихожая ЖК «Империал Клаб»
Прихожая ЖК «Империал Клаб»

Прихожая ЖК «Империал Клаб»

Функциональная прихожая встречает открытой перспективой на всю квартиру благодаря прозрачным перегородкам. Встроенный шкаф для верхней одежды и обуви визуально не считывается как мебель. На стене закреплено ростовое зеркало

Для домашнего питомца мы спроектировали специальный уголок с полками и лежанкой в общем стиле интерьера. Акцентная картина на входе сразу погружает в атмосферу проекта.

Дополнительная информация о проекте

Стиль, материалы и решения для квартиры в ЖК «Империал Клаб»

Стиль квартиры — современный с элементами минимализма. Цветовая база построена на сочетании глубокого серого, графитового и теплых древесных оттенков. Акценты расставлены с помощью подсветки и металлических деталей, что делает пространство объемным.

Материалы

Какие материалы использовать в квартире ЖК «Империал Клаб», чтобы интерьер был практичным и визуально цельным? 

  • Матовая краска и стеновые панели — создают ровный фон и добавляют интерьеру тактильности.
  • Широкоформатный керамогранит — имитирует натуральный камень в мокрых зонах и на кухонном фартуке.
  • Инженерная доска — уложена палубным способом, что подчеркивает длину помещений и добавляет природного тепла.
  • Металл и стекло — используются в перегородках и мебельных деталях для создания графичного рисунка.
Интересные находки

Какие нестандартные интерьерные решения можно использовать в квартире ЖК «Аструм», чтобы проект выглядел индивидуально и практично?

Современные идеи дизайна квартиры позволили выжать максимум из площади, а качественная отделка квартиры подчеркнула статус: 

  • Кабинет за матовым стеклом — решение, позволяющее работать в тишине, не теряя связи с общим пространством квартиры.
  • Скрытый уголок для питомца — интегрированная в мебель зона, которая не портит эстетику прихожей.
  • Акцентный арт-объект в гостиной — крупная скульптура, которая делает квартиру уникальной и запоминающейся.
От чего зависит стоимость дизайн-проекта квартиры в ЖК «Империал Клаб»

Итоговая стоимость дизайн-проекта квартиры в ЖК «Империал Клаб» рассчитывается индивидуально. На нее влияют общая площадь, сложность планировки и глубина проработки чертежей. Чем точнее составлена рабочая документация и итоговая смета, тем прозрачнее ремонт.

Настоящий ремонт и дизайн премиум-класса зависят от количества визуализаций и подбора элементов. Наша комплектация мебелью и материалами помогает избежать переплат. Также на стоимость дизайна интерьера влияет авторское сопровождение, гарантирующее точную реализацию всех задумок.

Где заказать дизайн-проект квартиры в ЖК «Империал Клаб», чтобы получить понятную концепцию и расчет? 

Если вам понравились решения в этом интерьере, вы можете заказать дизайн-проект квартиры под ключ. Наша студия дизайна интерьера Artum подготовит планировочное решение, трехмерную визуализацию, подберет материалы и рассчитает смету, чтобы ваш будущий дизайн-проект был воплощен безупречно.

Отправьте заявку на консультацию или напишите нам в мессенджер

Мы составим для вас четкий путь от начала до результата, который потребует от вас минимальных усилий

Напишите нам!
Посчитаем точную стоимость вашего проекта