logo
Artum — студия дизайна интерьера
Перезвоните мне
Дизайн-проект квартиры в ЖК «Foriver» в Москве в стиле современный минимализм — 74 м²
блог Artum

Дизайн-проект квартиры в ЖК «Foriver» в Москве в стиле современный минимализм — 74 м²

Задачи проекта

  • Сделать необычный интерьер премиум-класса в сдержанных теплых оттенках.

  • Использовать натуральный кварцит в отделке жилых зон.

  • Спроектировать сложный многоуровневый потолок с радиусными элементами.

  • Внедрить сложные декоративные детали: камин, радиусные фасады и латунь.

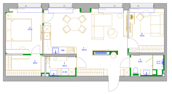
Планировочное решение

Мы сохранили исходную структуру квартиры, но перенесли несколько дверных проемов для лучшей эргономики. Это позволило встроить шкафы и технику вровень со стенами, не загромождая комнаты лишней мебелью. На кухне теперь достаточно места для полноценной готовки, а в спальнях увеличили зоны хранения. Гостиная стала смысловым центром, из которого удобно попадать во все остальные помещения.

Кухня-гостиная
Кухня-гостиная
Кухня-гостиная
Кухня-гостиная

Кухня-гостиная

Основной акцент в кухне-гостиной сделан на сочетании латуни, шпона и натурального камня. Кухонный гарнитур получил фрезерованные фасады и панели из латуни, которые выделяют рабочую зону на общем фоне. Фартук и столешницу изготовили из кварцита с мягкой подсветкой, что делает массивную конструкцию легче. 

В зоне отдыха внимание привлекает стена с телевизором из натурального камня и двусторонний камин. Панорамное окно наполняет комнату светом, подчеркивая фактуру материалов и объем пространства.

Спальня
Спальня
Спальня
Спальня

Спальня

Стену в изголовье кровати мы собрали из разных фактур: гладкий шпон соседствует с рельефными панелями и центральным панно, напоминающим состаренное золото. Закрепили лаконичный подвесной столик с выдвижным ящиком, над которым расположили овальное зеркало в деревянной раме. 

У окна — узкий открытый стеллаж до самого потолка, где за счет внутренней подсветки полки с декором кажутся почти невесомыми. Вместо обычных ламп использовали тонкие подвесы на тросах и скрытую диодную ленту в нише потолка, что создает мягкий свет и не перегружает интерьер лишними деталями.

back back

Сколько стоит дизайн-проект и ремонт: реальные примеры с ценами

Портфолио с готовыми проектами и финальными
сметами — без скрытых затрат и неожиданных расходов

Получить портфолио и расчёт
Ванная комната
Ванная комната
Ванная комната
Ванная комната

Ванная комната

В санузле использовали глубокие зелёные тона в сочетании с золотистой фурнитурой. Раковину изготовили из матового камня под заказ, установив её на тумбу с вертикальной фрезеровкой. Душевую зону со скрытым поддоном отделили прозрачным стеклом, чтобы не дробить пространство. В нише над инсталляцией организовали хранение косметики с аккуратной подсветкой. Пол выложили каменной мозаикой с графичным рисунком, который собирает все элементы интерьера в общую картину.

Постирочная
Постирочная

Постирочная

Хозяйственный блок спроектировали так, чтобы он был максимально незаметным, но вместительным. Стиральную и сушильную машины поставили в вертикальную колонну, сэкономив место для раковины и шкафов. В глубоких модулях спрятали бытовую химию, пылесос и гладильную доску. Над рабочей поверхностью установили диодную ленту для удобства работы. Напротив закрепили компактную металлическую сушилку, которая почти не занимает места в сложенном виде.

Рассчитайте стоимость дизайн-проекта, ремонта и материалов

1 из 5 вопросов

01

Выберите ваш тип жилья

У нас есть архитекторы и дизайнеры интерьеров, которые специализируются на конкретном типе помещений. Мы поможем составить грамотный дизайн-проект.

2 из 5 вопросов

02

Укажите общую площадь помещений

Для больших помещений мы снижаем стоимость закупки материалов за счет наших партнеров - строительных компаний.

м2

3 из 5 вопросов

03

В каком стиле вы хотите интерьер?

Возможно, Вы уже давно интересуетесь интерьером, и пришла пора проанализировать результат. А может быть, Вы пока не знаете, какому стилю отдать предпочтение. Выберите тот стиль, которое вам нравится больше всего.

4 из 5 вопросов

04

Когда вы хотите начать ремонтные работы?

Мы сможем заранее оценить нагруженность своей команды дизайнеров и организовать работу строителей.

5 из 5 вопросов

05

Куда отправить варианты расчета?

После отправки формы вы попадете на страницу, где сможете получить бесплатное руководство "Схема ремонта от А до Я". Мы свяжемся с Вами - и ответим на все вопросы, в течение 15 минут в рабочее время (с 10:00 до 19:00 по МСК).

Кабинет
Кабинет
Кабинет
Кабинет

Кабинет

Кабинет объединяет в себе рабочее место и зону отдыха для гостей. Рабочий стол закрепили консольно, чтобы под ним было легче убирать и оставалось больше пространства для ног. Напротив дивана смонтировали стеллаж с открытыми нишами для книг и закрытыми секциями для документов. Встроенная подсветка вертикальных полок добавляет комнате глубины в вечернее время. Диван раскладывается, превращая кабинет в полноценную гостевую спальню при необходимости.

Прихожая
Прихожая

Прихожая

Входная зона встречает тёплым светом и отделкой из шпонированных панелей. Главный элемент здесь — камин, который просматривается одновременно из коридора и из гостиной. Большие зеркала в пол расширяют узкий проход и удваивают количество света от ламп. Радиусные углы мебели и латунные вставки делают интерьер мягче и приятнее на ощупь. Весь периметр прихожей занят скрытыми шкафами, где помещается верхняя одежда и сезонные вещи.

Дополнительная информация о проекте

Стиль и цветовая гамма

Интерьер выдержан в современном минимализме с акцентом на премиальные фактуры. Основа — теплый шоколадный оттенок американского ореха и золотистые тона. Темное дерево добавляет интерьеру графичности, а светлые поверхности стен работают на визуальное расширение площади.

Материалы

Натуральный кварцит и дерево — использованы в отделке стен и мебели, создавая ощущение надежности и долговечности.

Шпонированный МДФ и латунь — основные материалы для индивидуальных мебельных конструкций и декоративных вставок.

Паркетная доска — уложена во всех жилых зонах, объединяя пространство единым напольным покрытием.

Сложные потолочные системы — разные уровни и радиусные элементы на потолке скрывают инженерные коммуникации.

Интересные находки

Двусторонний камин — связывает прихожую и гостиную, становясь визуальным центром сразу двух функциональных зон.

Интеграция техники — телевизор в кабинете встроен прямо в мебельную систему, образуя с ней единую плоскость.

Радиусные фасады — сглаженные углы встроенной мебели делают перемещение по квартире более безопасным и комфортным.

Скрытое хранение над камином — использование каждого сантиметра стены для создания дополнительных полок без ущерба дизайну.

Отправьте заявку на консультацию или напишите нам в мессенджер

Мы составим для вас четкий путь от начала до результата, который потребует от вас минимальных усилий

Напишите нам!
Посчитаем точную стоимость вашего проекта