logo
Artum — студия дизайна интерьера
Перезвоните мне
Дизайн-проект квартиры в ЖК «Champine (Шампайн)» в Москве в стиле современной классики — 129,5 м²
блог Artum

Дизайн-проект квартиры в ЖК «Champine (Шампайн)» в Москве в стиле современной классики — 129,5 м²

Задачи проекта

  • Сформировать открытое пространство, которое просматривается сразу от входной двери.

  • Спроектировать изолированную мастер-зону со своей гардеробной и ванной комнатой.

  • Акцентировать внимание на кухонном острове и барной стойке.

  • Интегрировать террариум в интерьер так, чтобы за ним было легко ухаживать.

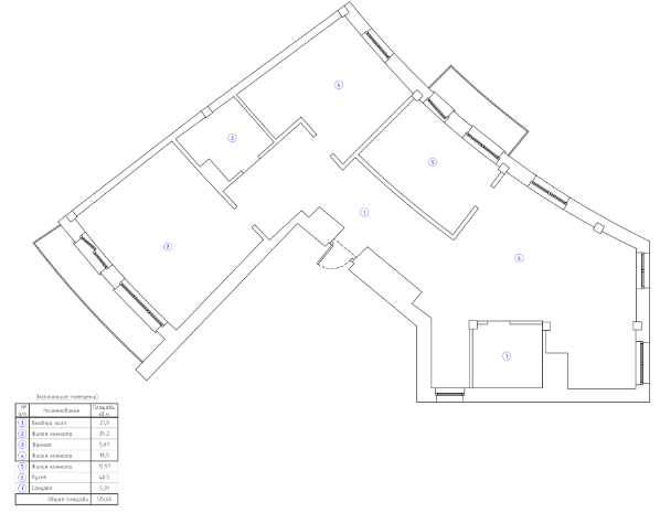
Планировочное решение

Статус апартаментов позволил нам свободно работать со стенами. Мы убрали перегородку между прихожей, кухней и гостиной. Чтобы уместить все необходимое, мы пересмотрели границы комнат: часть кухни отдали под спальню дочери, а на месте бывшего санузла сделали гардеробную. Саму ванную комнату перенесли в зону с окном — теперь это полноценное место для отдыха с видом на город.

Кухня
Кухня
Кухня
Кухня

Кухня

Зона кухни получилась легкой за счет светлых оттенков и камня. Каменные панели на стенах переходят в массивную барную стойку — она стала главным визуальным акцентом, который встречает гостей прямо с порога. Природные фактуры делают интерьер тактильным и статусным.

Гостиная
Гостиная
Гостиная
Гостиная

Гостиная

Бирюзовые стулья добавили цвета в спокойную базу. Стену за телевизором оформили деревянной панелью, чтобы добавить глубины, и встроили электрокамин. Над обеденной группой закрепили люстру в форме медузы, которая выделяет зону столовой. Глубокий диван стал центром притяжения для всей семьи.

Террариум поставили рядом с гостевым санузлом, чтобы владельцам не пришлось носить воду через всю квартиру для уборки.

Мастер-спальня
Мастер-спальня
Мастер-спальня
Мастер-спальня

Мастер-спальня

Здесь всё заточено под отдых. Главный акцент — мягкое изголовье кровати во всю стену, дополненное зеркалами для симметрии. Вместо яркого света использовали несколько уровней подсветки: бра, настольные лампы и люстру в форме ветвей, которая превращает потолок в арт-объект.

back back

Сколько стоит дизайн-проект и ремонт: реальные примеры с ценами

Портфолио с готовыми проектами и финальными
сметами — без скрытых затрат и неожиданных расходов

Получить портфолио и расчёт
Гардеробная в мастер-зоне
Гардеробная в мастер-зоне
Гардеробная в мастер-зоне
Гардеробная в мастер-зоне

Гардеробная в мастер-зоне

Это максимально функциональное пространство. Мы предусмотрели шкафы с внутренней подсветкой, открытые полки и удобные системы хранения. Стены и фасады отделали алькантарой — это добавило интерьеру мягкости и изысканности. Скрытые двери поддерживают идею чистого пространства без лишних деталей.

Детская комната
Детская комната
Детская комната
Детская комната

Детская комната

Комнату для 16-летней дочери разделили на три зоны: рабочее место у окна, кровать с мягким изголовьем для отдыха и системы хранения. Цветовая гамма спокойная, но с живыми зелеными акцентами в декоре и текстиле.

Мастер-ванная
Мастер-ванная
Мастер-ванная
Мастер-ванная

Мастер-ванная

Центр притяжения — отдельно стоящая ванна на подиуме напротив панорамного окна. Можно принимать ванну и рассматривать город. Стены оформили мрамором с золотыми прожилками в сочетании с лаконичными золотыми смесителями. Завершает образ необычная подвесная люстра.

Рассчитайте стоимость дизайн-проекта, ремонта и материалов

1 из 5 вопросов

01

Выберите ваш тип жилья

У нас есть архитекторы и дизайнеры интерьеров, которые специализируются на конкретном типе помещений. Мы поможем составить грамотный дизайн-проект.

2 из 5 вопросов

02

Укажите общую площадь помещений

Для больших помещений мы снижаем стоимость закупки материалов за счет наших партнеров - строительных компаний.

м2

3 из 5 вопросов

03

В каком стиле вы хотите интерьер?

Возможно, Вы уже давно интересуетесь интерьером, и пришла пора проанализировать результат. А может быть, Вы пока не знаете, какому стилю отдать предпочтение. Выберите тот стиль, которое вам нравится больше всего.

4 из 5 вопросов

04

Когда вы хотите начать ремонтные работы?

Мы сможем заранее оценить нагруженность своей команды дизайнеров и организовать работу строителей.

5 из 5 вопросов

05

Куда отправить варианты расчета?

После отправки формы вы попадете на страницу, где сможете получить бесплатное руководство "Схема ремонта от А до Я". Мы свяжемся с Вами - и ответим на все вопросы, в течение 15 минут в рабочее время (с 10:00 до 19:00 по МСК).

Душевая
Душевая
Душевая
Душевая

Душевая

Этот санузел сделали более контрастным: здесь глубокий синий цвет сочетается с золотыми деталями и мрамором. Стены душевой выполнили из стекла, а многоуровневая подсветка создает эффект «парящих» конструкций.

Прихожая
Прихожая

Прихожая

Дизайн входной группы задает масштаб всему проекту. За счет высоких дверей мы визуально подняли потолок. В шкафу спрятали практичное решение — встроенную принудительную вентиляцию. Она работает на просушку вещей, что очень удобно для активных городских жителей.

Дополнительная информация о прокте

Стиль и цветовая гамма

Интерьер сочетает современный стиль и классические детали. База — молочно-белые и теплые серые тона. Они работают на расширение пространства и добавляют воздуха. Яркие зеленый и бирюзовый введены дозированно, чтобы интерьер оставался спокойным.

Материалы

Керамогранит под мрамор с золотистыми прожилками — использовали на полу и для отделки стен, создавая эффект бесшовного пространства.

Широкоформатная паркетная доска — в жилых комнатах, чтобы подчеркнуть большую площадь помещений.

Стеновые панели из дерева и камня — ими оформили акцентные зоны за телевизором и в спальне, чтобы добавить стенам объема и архитектурности.

Зеркала и стекло — безрамное остекление душевой и зеркальные вставки в спальне. Визуально убирают границы между зонами и добавляют естественного света.

Интересные находки

Высокие двери визуально вытягивают пространство вверх.

Алькантара на стенах необычное тактильное решение для отделки шкафов и стен.

Вентканал в шкафу инженерное решение в прихожей для сушки верхней одежды.

Отправьте заявку на консультацию или напишите нам в мессенджер

Мы составим для вас четкий путь от начала до результата, который потребует от вас минимальных усилий

Напишите нам!
Посчитаем точную стоимость вашего проекта

x

Оставить заявку

Заполните форму и наш менеджер свяжется с вами