logo
Artum — студия дизайна интерьера
Перезвоните мне
Дизайн-проект квартиры в ЖК «Береговой-2» в Москве в стиле минимализм с элементами джапанди
блог Artum

Дизайн-проект квартиры в ЖК «Береговой-2» в Москве в стиле минимализм с элементами джапанди

Задачи проекта

  • Спроектировать три изолированных санузла: гостевой, детский и мастер-блок.

  • Разместить три гардеробные, включая большую мастер-гардеробную с витринами.

  • Организовать постирочную рядом со входной зоной.

  • Предусмотреть отдельное пространство для отдыха и медитации.

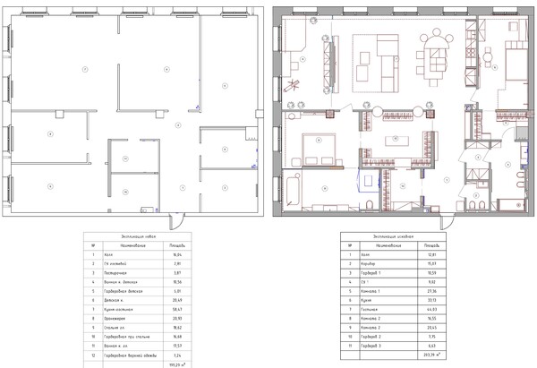
Планировочное решение

Квартиру перепланировали: демонтировали все перегородки и выстроили логику помещений заново. Появились три санузла, постирочная при входной зоне и несколько гардеробных, встроенных в общую планировочную структуру. Часть гостиной отвели под зимний сад — он скорректировал геометрию комнаты и добавил естественного света. Между зонами использовали стеклянные перегородки в потолок, чтобы сохранить ощущение открытого пространства.

Кухня-гостиная
Кухня-гостиная
Кухня-гостиная
Кухня-гостиная

Кухня-гостиная

Общая зона стала центральной точкой квартиры. Кухню и гостиную объединили, добавив остров с двухуровневой столешницей — он работает и как рабочая поверхность, и как обеденный стол. Фасады кухни и часть корпусной мебели облицованы керамогранитом в сочетании со шпоном — это объединяет разные зоны визуально. Мягкую группу собрали вокруг дивана в хлопковой обивке, рядом разместили зимний сад за прозрачной перегородкой — пространство с растениями и зоной отдыха.

Мастер-спальня с гардеробной
Мастер-спальня с гардеробной
Мастер-спальня с гардеробной
Мастер-спальня с гардеробной

Мастер-спальня с гардеробной

Интерьер спальни построен на мягкой пластике форм и спокойной фактуре материалов. Радиусные витрины и шпонированные панели добавляют глубину, не перегружая пространство. Гардеробная отделена стеклом — за счёт этого комната воспринимается шире. Подвесные светильники с геометрией выступают акцентом и дают мягкую подсветку вечером.

Гардеробная организована как отдельная функциональная комната. Встроенные шкафы дополнены подсветкой, предусмотрены открытые и закрытые секции. В центре установлен остров для хранения аксессуаров и примерки. Планировка позволяет свободно перемещаться и быстро находить нужные вещи.

back back

Сколько стоит дизайн-проект и ремонт: реальные примеры с ценами

Портфолио с готовыми проектами и финальными
сметами — без скрытых затрат и неожиданных расходов

Получить портфолио и расчёт
Мастер-ванная комната
Мастер-ванная комната
Мастер-ванная комната
Мастер-ванная комната

Мастер-ванная комната

Мастер-ванная соединена со спальней перегородками из матового стекла. Ванну установили на подиум, чтобы усилить приватность зоны и открыть вид на город. В отделке использован натуральный камень с активной текстурой и металлические акценты. Освещение выстроено так, чтобы сочетать естественный и искусственный свет.

Детская комната
Детская комната
Детская комната
Детская комната

Детская комната

Комнату спроектировали с запасом по функциям: сон, учёба, спорт и хранение. Рабочее место и и двухуровневую кровать разместили у окна. Рядом с кроватью организован спортивный блок со скалодромом и рукоходом на потолке. Для ТВ-зоны выбрали акцентный принт, который добавляет комнате характера.

Систему хранения встроили в объём комнаты за раздвижной дверью. Использовали тёмные фасады с внутренней подсветкой полок. Наполнение рассчитано на рост ребёнка и изменение гардероба со временем.

Рассчитайте стоимость дизайн-проекта, ремонта и материалов

1 из 5 вопросов

01

Выберите ваш тип жилья

У нас есть архитекторы и дизайнеры интерьеров, которые специализируются на конкретном типе помещений. Мы поможем составить грамотный дизайн-проект.

2 из 5 вопросов

02

Укажите общую площадь помещений

Для больших помещений мы снижаем стоимость закупки материалов за счет наших партнеров - строительных компаний.

м2

3 из 5 вопросов

03

В каком стиле вы хотите интерьер?

Возможно, Вы уже давно интересуетесь интерьером, и пришла пора проанализировать результат. А может быть, Вы пока не знаете, какому стилю отдать предпочтение. Выберите тот стиль, которое вам нравится больше всего.

4 из 5 вопросов

04

Когда вы хотите начать ремонтные работы?

Мы сможем заранее оценить нагруженность своей команды дизайнеров и организовать работу строителей.

5 из 5 вопросов

05

Куда отправить варианты расчета?

После отправки формы вы попадете на страницу, где сможете получить бесплатное руководство "Схема ремонта от А до Я". Мы свяжемся с Вами - и ответим на все вопросы, в течение 15 минут в рабочее время (с 10:00 до 19:00 по МСК).

Детский санузел
Детский санузел
Детский санузел
Детский санузел

Детский санузел

Детский санузел решён через сочетание практичных материалов и выразительных деталей. Основу отделки составил крупноформатный керамогранит с терраццо-текстурой — он использован на полу, стенах и в нишах хранения. Зону умывальника акцентировали панно из камня и круглыми зеркалами разного диаметра, дополнив композицию подвесными светильниками-шарами. Системы хранения встроены в глухие фасады и открытые ниши с подсветкой, а стену у ванны выделили крупным графичным принтом с медвежонком и вертикальной световой линией.

Прихожая
Прихожая
Прихожая
Прихожая

Прихожая

Фасады шкафов в прихожей выполнены в потолок, с минималистичной фрезеровкой и интегрированными ручками — за счёт этого плоскости выглядят монолитно. Зону гардеробной отделили раздвижными стеклянными перегородками в тёплом бронзовом тоне и реечными панелями, которые частично скрывают наполнение. 

В отделке использовали сочетание светлых матовых фасадов, древесных текстур и мягких зелёных акцентов в мебели, дополнив композицию линейной подсветкой по периметру потолка.

Дополнительная информация о прокте

Стиль и цветовая гамма

Интерьер выполнен в минимализме с элементами джапанди. Базу составляют светлые припылённые оттенки: бежевый, карамельный, травянисто-зелёный. Контрасты мягкие, без резких переходов. Палитра поддерживает ощущение целостного пространства.

Материалы

Шпонированные панели — использованы в отделке стен и фасадов встроенной мебели, формируют базовую фактуру интерьера.

Керамогранит — применён в кухонных фасадах, корпусной мебели и санузлах, объединяет разные зоны по отделке.

Натуральный камень и кварцевый агломерат — использованы в столешницах и акцентных поверхностях, добавляют глубину материалам.

Текстиль (хлопок, шерсть, шёлк) — задействован в обивке мягкой мебели и коврах, дополняет интерьер тактильно.

Интересные находки

Полностью встроенная корпусная мебель — спроектирована в единой отделке фасадов, формирует цельные плоскости хранения.
Стеклянные перегородки с тканью внутри — используются для зонирования, пропускают свет и смягчают границы помещений.
Двери и витрины в потолок — визуально вытягивают высоту помещений и поддерживают архитектуру интерьера.
Сквозные проходы через гардеробные — создают несколько маршрутов перемещения и упрощают навигацию по квартире.

Отправьте заявку на консультацию или напишите нам в мессенджер

Мы составим для вас четкий путь от начала до результата, который потребует от вас минимальных усилий

Напишите нам!
Посчитаем точную стоимость вашего проекта

x

Оставить заявку

Заполните форму и наш менеджер свяжется с вами