logo
Artum — студия дизайна интерьера
Перезвоните мне
Дизайн-проект квартиры в ЖК «Бадаевский» в Москве в стиле современного минимализма
блог Artum

Дизайн-проект квартиры в ЖК «Бадаевский» в Москве в стиле современного минимализма

Задачи проекта

  • Спроектировать отдельную зону постирочной с местами для хранения.

  • Интегрировать в спальню прозрачный гардеробный блок с внутренней подсветкой.

  • Оборудовать в кабинете рабочее место под два монитора и световую систему.

  • Продумать открытые системы хранения для коллекции лего-фигурок.

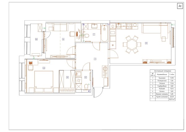
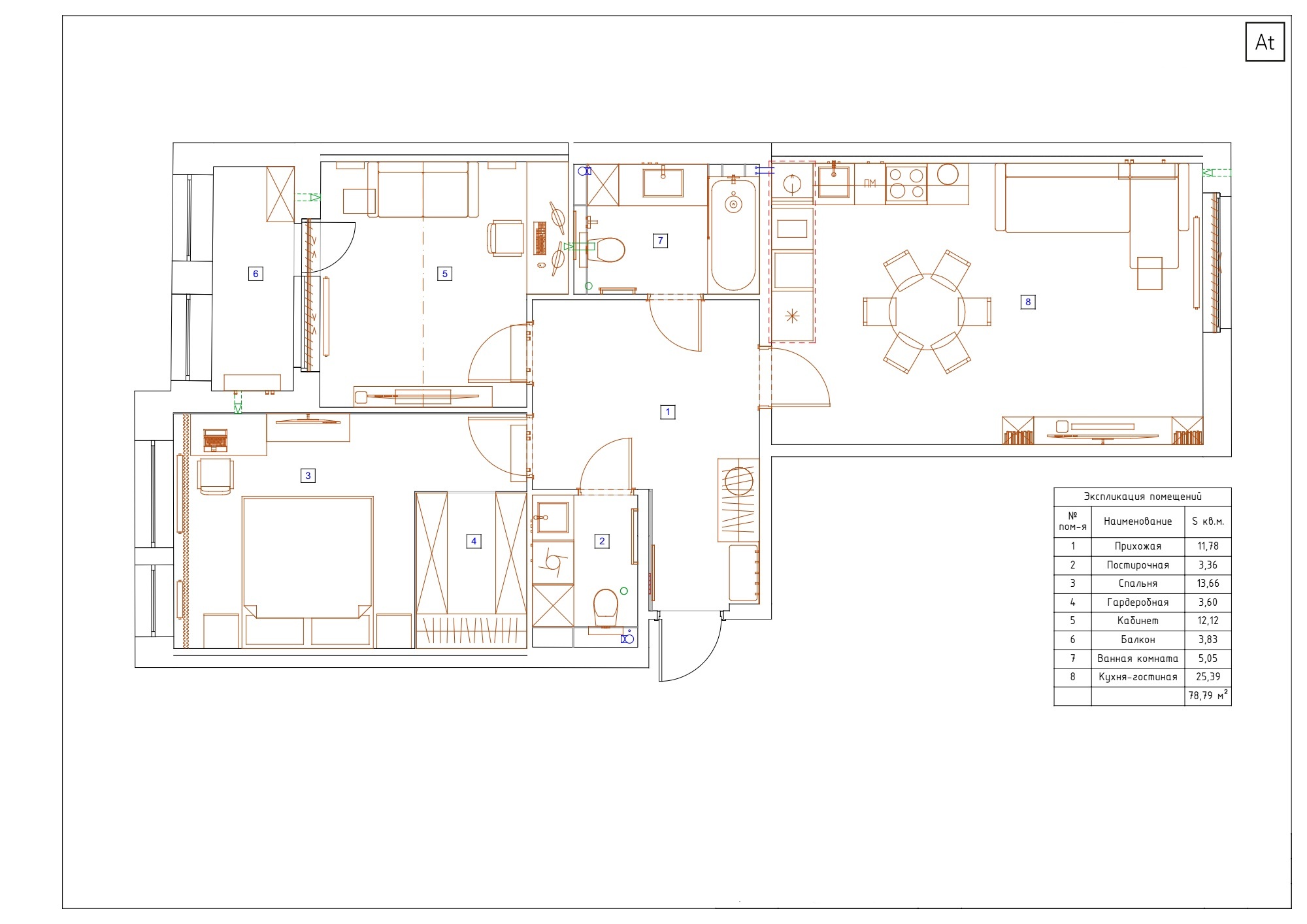
Планировочное решение

Мы изменили исходное пространство, чтобы сделать его более логичным. Площадь санузла увеличили — это позволило выделить место под полноценную постирочную с техникой и хозяйственным шкафом. В спальне возвели стеклянный бокс для одежды, который визуально не съедает метры. Кабинет стал больше: теперь здесь свободно помещается широкий стол и стеллажи. Кухню объединили с гостиной, выстроив технику в одну линию для сохранения минималистичного вида.

Гостиная
Гостиная
Гостиная
Гостиная

Гостиная

Общая зона получилась открытой, с четким разделением функций за счет мебели и света. Главная деталь здесь — стена с каменной фактурой, которая за счет контурной подсветки выглядит объемно и массивно. Под телевизором разместили длинную подвесную консоль, которая кажется невесомой и не загромождает пол. 

На фоне нейтральных стен выделили зону отдыха зеленым диваном и графичными постерами. Кресло терракотового оттенка и скрытые системы хранения завершают обустройство комнаты.

Кухня
Кухня
Кухня
Кухня

Кухня

Кухонный гарнитур мы подобрали в приглушенных серых тонах с добавлением дерева. Всю крупную технику, включая винный шкаф, встроили в высокую колонну, чтобы не дробить плоскость фасадов. 

Для кофемашины предусмотрели специальный отсек с дверцей, которая уходит вглубь корпуса при открытии. Рабочую поверхность подсветили диодной лентой, создав комфортные условия для готовки.

back back

Сколько стоит дизайн-проект и ремонт: реальные примеры с ценами

Портфолио с готовыми проектами и финальными
сметами — без скрытых затрат и неожиданных расходов

Получить портфолио и расчёт
Спальня с гардеробной
Спальня с гардеробной
Спальня с гардеробной
Спальня с гардеробной

Спальня с гардеробной

Интерьер спальни строится на контрасте светлого дерева и темной мягкой обивки кровати. Стена за изголовьем оформлена декоративными панелями со встроенным светом для создания глубины. 

Возле окна организовали компактное место для работы со стационарным компьютером, визуально «растворив» его в отделке. Стеклянная гардеробная с тонированными фасадами стала главным декоративным элементом, который эффектно подсвечивается по вечерам.

Кабинет
Кабинет
Кабинет
Кабинет

Кабинет

В этой комнате мы сфокусировались на увлечениях владельцев и комфортной работе. Рабочую зону выделили темным цветом и дополнили настенными RGB-панелями, меняющими оттенок свечения. Стол из массива рассчитан на два больших монитора, а рядом встали легкие полки для демонстрации коллекции фигурок. 

Рядом с рабочим местом поставили раскладной диван для гостей и тумбу под ТВ-зону. Закарнизная подсветка подчеркивает геометрию потолка и позволяет менять яркость света в комнате.

Ванная комната
Ванная комната
Ванная комната
Ванная комната

Ванная комната

Для отделки выбрали крупноформатный керамогранит с текстурой камня и дерева. Подвесная тумба с накладной раковиной выглядит легко, а большое зеркало со светом по периметру меняет восприятие пространства. 

Душевую зону отделили темным стеклом, а смесители и аксессуары подобрали в черном матовом исполнении для поддержки графичности.

Рассчитайте стоимость дизайн-проекта, ремонта и материалов

1 из 5 вопросов

01

Выберите ваш тип жилья

У нас есть архитекторы и дизайнеры интерьеров, которые специализируются на конкретном типе помещений. Мы поможем составить грамотный дизайн-проект.

2 из 5 вопросов

02

Укажите общую площадь помещений

Для больших помещений мы снижаем стоимость закупки материалов за счет наших партнеров - строительных компаний.

м2

3 из 5 вопросов

03

В каком стиле вы хотите интерьер?

Возможно, Вы уже давно интересуетесь интерьером, и пришла пора проанализировать результат. А может быть, Вы пока не знаете, какому стилю отдать предпочтение. Выберите тот стиль, которое вам нравится больше всего.

4 из 5 вопросов

04

Когда вы хотите начать ремонтные работы?

Мы сможем заранее оценить нагруженность своей команды дизайнеров и организовать работу строителей.

5 из 5 вопросов

05

Куда отправить варианты расчета?

После отправки формы вы попадете на страницу, где сможете получить бесплатное руководство "Схема ремонта от А до Я". Мы свяжемся с Вами - и ответим на все вопросы, в течение 15 минут в рабочее время (с 10:00 до 19:00 по МСК).

Санузел с постирочной
Санузел с постирочной
Санузел с постирочной
Санузел с постирочной

Санузел с постирочной

Второй санузел мы превратили в функциональный хозяйственный блок. Стиральную и сушильную машины спрятали в шкаф с фасадами под орех, сохранив единство стиля. 

В нижней части предусмотрели удобный выдвижной ящик для сортировки белья перед стиркой. Открытые полки с мягким светом используют для хранения бытовых средств, а черная сантехника связывает зону с основным дизайном.

Прихожая
Прихожая
Прихожая
Прихожая

Прихожая

Входная зона выполнена в сочетании графитовых поверхностей и деревянных вставок. Вместительный шкаф до потолка скрывает не только одежду, но и док-станцию для робота-пылесоса. Поставили мягкую банкетку и нишу с зеркалом, которая визуально «пробивает» стену. 

Трековая система на потолке дает равномерный свет, а нижняя подсветка вдоль пола создает эффект парящих стен. Яркая картина на стене добавляет пространству динамики и цвета.

Дополнительная информация о проекте

Стиль и цветовая гамма

Интерьер выполнен в современном стиле с элементами неоклассики и ар-деко. Цветовая база построена на молочно-белых и теплых серых оттенках, которые делают пространство светлее и визуально просторнее. Синие, зеленые и розовые акценты добавлены через мебель и декор, чтобы сохранить цельность оформления.

Материалы

Натуральное дерево — используется в отделке пола и мебели для создания природной фактуры.

Хлопковые ткани — применены в обивке и текстиле, мы принципиально отказались от использования велюра.

Краска и молдинги — формируют нейтральный фон и подчеркивают классическую основу интерьера.

Керамогранит и натуральный камень — практичные решения для рабочих поверхностей и мокрых зон.

Интересные находки

Ростовое зеркало в прихожей — монтаж полотна на всю высоту стены позволил вдвое визуально увеличить пространство.

Отдельная гардеробная в прихожей — это решение помогло освободить спальни от массивных шкафов для одежды.

Рабочая зона на балконе — использование утепленного контура позволило вынести кабинет из жилой зоны спальни.

Отправьте заявку на консультацию или напишите нам в мессенджер

Мы составим для вас четкий путь от начала до результата, который потребует от вас минимальных усилий

Напишите нам!
Посчитаем точную стоимость вашего проекта