logo
Artum — студия дизайна интерьера
Перезвоните мне
Дизайн-проект квартиры в ЖК «17/33 Петровский остров» в Санкт-Петербурге в стиле современной и французской классики
блог Artum

Дизайн-проект квартиры в ЖК «17/33 Петровский остров» в Санкт-Петербурге в стиле современной и французской классики

Задачи проекта

  • Грамотно зонировать совмещенную кухню-гостиную без потери ощущения пространства.

  • Организовать в детской комнате две автономные жилые зоны для девочек разного возраста.

  • Найти место под полноценный постирочный блок с колонной из техники в ванной.

  • Интегрировать элементы французской классики в современную планировку квартиры.

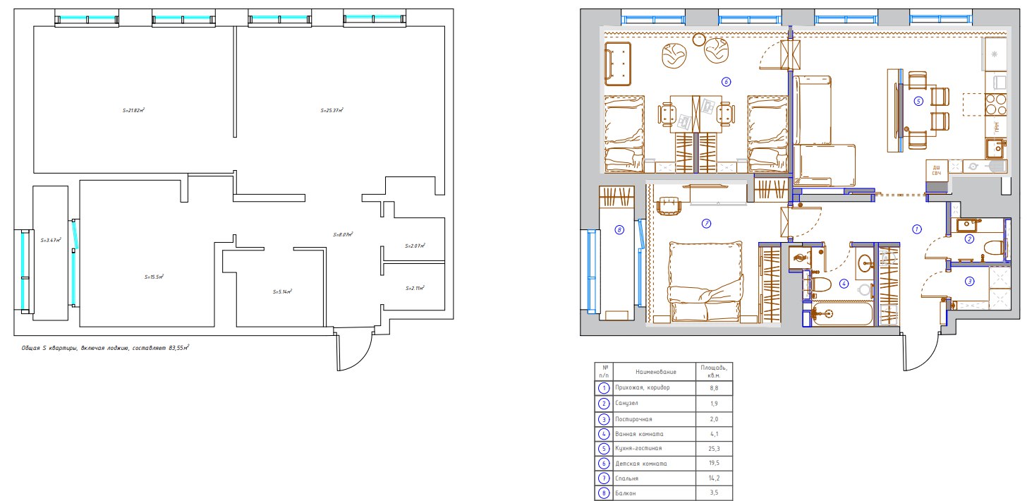
Планировочное решение

Для этого проекта мы подготовили план с серьезным изменением перегородок. Площадь ванной стала больше за счет части коридора, что позволило вписать глубокую нишу под технику. Детскую комнату расширили, забрав часть метров у гостиной — теперь там помещаются две полноценные спальные зоны. Кухню и гостиную мы оставили в едином контуре, но внедрили четкие границы для каждой функциональной точки.

Кухня-гостиная
Кухня-гостиная
Кухня-гостиная
Кухня-гостиная

Кухня-гостиная

Рабочую зону кухни мы отделили от места отдыха перегородкой из гипсокартона со вставками из рифленого стекла. В гостиной части поставили крупный диван винного цвета, который стал главным цветовым пятном на фоне светлых стен. 

На кухне установили Г-образный гарнитур кофейного цвета с фартуком из камня, имеющего активный зеленый рисунок. Обеденную группу со столом на четырех человек выделили с помощью настенного барельефа и живописи.

Спальня
Спальня

Спальня

В этой комнате основной акцент сделали на стену в изголовье кровати, украсив её барельефом с птицами. По бокам от кровати с мягкой обивкой закрепили симметричные бра для чтения. Напротив расположили длинную консоль оливкового цвета, которая служит одновременно рабочим столом и тумбой под ТВ.

Чтобы не загромождать пространство шкафами, системы хранения вынесли за полупрозрачную стеклянную перегородку. Терракотовые акценты в изголовье кровати и коричневый паркет добавили помещению нужной теплоты.

Рассчитайте стоимость дизайн-проекта, ремонта и материалов

1 из 5 вопросов

01

Выберите ваш тип жилья

У нас есть архитекторы и дизайнеры интерьеров, которые специализируются на конкретном типе помещений. Мы поможем составить грамотный дизайн-проект.

2 из 5 вопросов

02

Укажите общую площадь помещений

Для больших помещений мы снижаем стоимость закупки материалов за счет наших партнеров - строительных компаний.

м2

3 из 5 вопросов

03

В каком стиле вы хотите интерьер?

Возможно, Вы уже давно интересуетесь интерьером, и пришла пора проанализировать результат. А может быть, Вы пока не знаете, какому стилю отдать предпочтение. Выберите тот стиль, которое вам нравится больше всего.

4 из 5 вопросов

04

Когда вы хотите начать ремонтные работы?

Мы сможем заранее оценить нагруженность своей команды дизайнеров и организовать работу строителей.

5 из 5 вопросов

05

Куда отправить варианты расчета?

После отправки формы вы попадете на страницу, где сможете получить бесплатное руководство "Схема ремонта от А до Я". Мы свяжемся с Вами - и ответим на все вопросы, в течение 15 минут в рабочее время (с 10:00 до 19:00 по МСК).

Детская комната
Детская комната

Детская комната

Пространство для двух дочерей спроектировали так, чтобы у каждой была своя приватная территория. Комнату делит пополам двусторонний стеллаж и большой общий стол, установленный по центру. 

Кровати спрятали в ниши с мягкой отделкой стен и контурной подсветкой. Мы предусмотрели несколько вариантов освещения: от яркого потолочного для игр и учебы до мягких светильников у подушек. Нейтральный цвет стен здесь дополняют яркие игровые элементы и декор.

Ванная комната
Ванная комната

Ванная комната

Стены в ванной облицевали светлым мрамором, а зону душа и ванны выделили панелями из зеленого оникса. Постирочный блок с сушильной и стиральной машинами скрыли в нише, которую получили при перепланировке. 

Шкафы и тумбу под раковину заказали с вертикальной фрезеровкой фасадов в пыльно-зеленом цвете. Рифленые поверхности визуально поднимают потолок и скрывают места для хранения бытовых мелочей.

Прихожая
Прихожая

Прихожая

Входную зону оформили в сложном зеленом оттенке и декорировали стены тонкими молдингами. На пол уложили светлый керамогранит, сделав кант по периметру из плитки под оникс для поддержки общего стиля. 

Вдоль стены встроили высокий шкаф, зеркальные фасады которого визуально удваивают ширину коридора. За освещение отвечают встроенные потолочные точки и классические бра, которые дают мягкий свет при входе в квартиру.

Дополнительная информация о проекте

Стиль и цветовая гамма

Интерьер выполнен в современном стиле с классическими французскими элементами. Цветовая база построена на молочно-белых и теплых серых оттенках, которые делают пространство светлее и визуально просторнее. Зеленые и терракотовые акценты добавлены через мебель, панели и текстиль, чтобы интерьер сохранял спокойствие и цельность.

Материалы

Краска и декоративные панели — формируют нейтральный фон, подчеркивающий архитектуру интерьера.

Керамогранит с каменной текстурой — использован в санузле и акцентных зонах, отличается практичностью и устойчивостью.

Паркетная доска, уложенная «ёлкой» — добавляет тепла и делает интерьер более объёмным визуально.

3D-панели, молдинги и карнизы — выступают в роли деликатного декора, создавая рельеф и глубину без перегруза.

Интересные находки

Стеклянные перегородки с подсветкой — помогают зонировать комнаты, не затеняя при этом дальние углы квартиры.

Акцентный барельеф в спальне — заменяет стандартный декор и делает зону изголовья уникальной.

Система хранения за тонированным стеклом — позволяет спрятать вещи в спальне, сохраняя ощущение воздуха и объема.

Зеленый оникс в мокрых зонах — создает яркую вертикаль и связывает дизайн ванной с общей палитрой квартиры.

Отправьте заявку на консультацию или напишите нам в мессенджер

Мы составим для вас четкий путь от начала до результата, который потребует от вас минимальных усилий

Напишите нам!
Посчитаем точную стоимость вашего проекта