logo
Artum — студия дизайна интерьера
Перезвоните мне
Дизайн интерьера квартиры в ЖК «Shepilevskiy (Шипелевский)» в Санкт-Петербурге в стиле джапанди
блог Artum

Дизайн интерьера квартиры в ЖК «Shepilevskiy (Шипелевский)» в Санкт-Петербурге в стиле джапанди

Задачи проекта

  • Организовать два рабочих места, не задействуя кухню-гостиную.

  • Ограничить просматриваемость квартиры с улицы при панорамных окнах.

  • Предусмотреть звукоизоляцию из-за расположения над коммерческим помещением.

  • Разработать целостный интерьер в стиле джапанди.

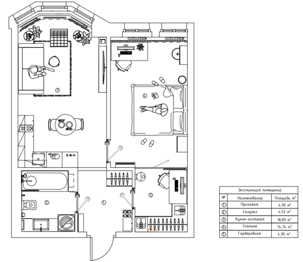
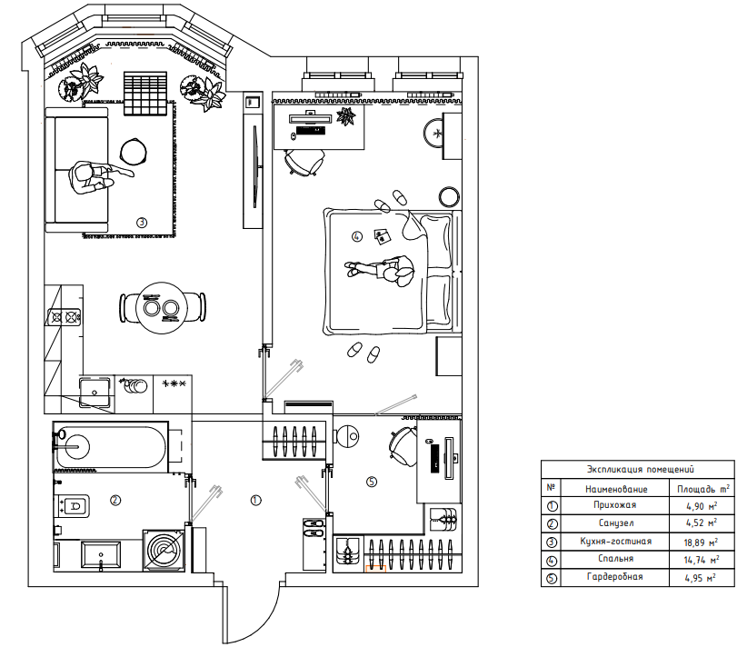
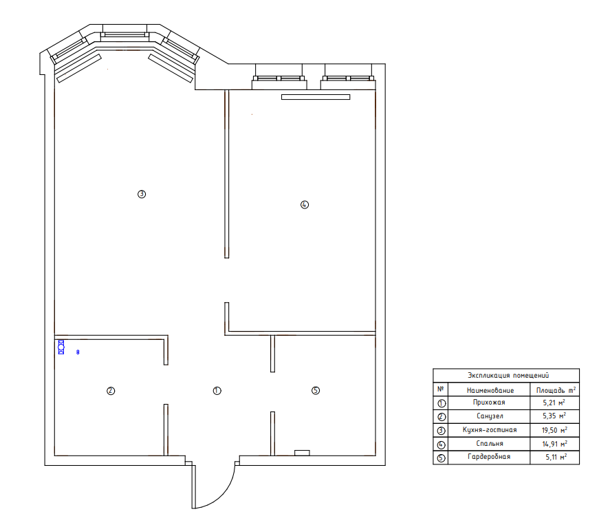
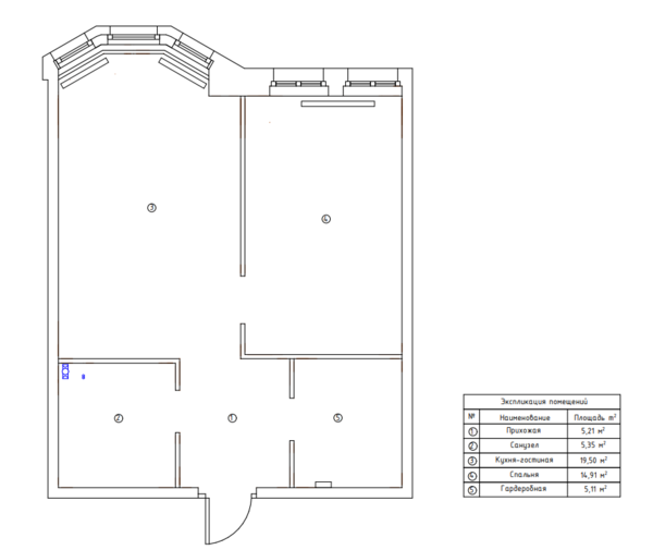
Планировочное решение

Без перепланировки в этой квартире не обошлось: часть перегородок демонтировали, чтобы перераспределить функции помещений. Главное изменение — объединение спальни с бывшей гардеробной. Вместо глухой стены установили стеклянную перегородку, а в пространстве гардеробной разместили изолированный кабинет. Вход в санузел сместили, что позволило разместить внутри широкую ванну. Кухню-гостиную оставили свободной от рабочих мест, сохранив её для отдыха.

Кухня-гостиная
Кухня-гостиная
Кухня-гостиная
Кухня-гостиная

Кухня-гостиная

Кухня-гостиная оформлена в тёплой природной палитре: древесные текстуры, молочные матовые фасады, мягкий рассеянный свет. Высокий пенал со встроенной техникой интегрирован в общий объём. Фартук облицован светлой плиткой с вертикальной раскладкой. Обеденная группа компактная: круглый стол и стулья в натуральных фактурах поддерживают стилистику джапанди и не перегружают пространство.

В зоне отдыха — глубокий зелёный диван и кресло в букле, добавляющие тактильности. ТВ-блок лаконичный: низкая тумба и открытый книжный стеллаж без лишнего декора. Пространство выглядит собранным, лёгким и визуально чистым.

Рассчитайте стоимость дизайн-проекта, ремонта и материалов

1 из 5 вопросов

01

Выберите ваш тип жилья

У нас есть архитекторы и дизайнеры интерьеров, которые специализируются на конкретном типе помещений. Мы поможем составить грамотный дизайн-проект.

2 из 5 вопросов

02

Укажите общую площадь помещений

Для больших помещений мы снижаем стоимость закупки материалов за счет наших партнеров - строительных компаний.

м2

3 из 5 вопросов

03

В каком стиле вы хотите интерьер?

Возможно, Вы уже давно интересуетесь интерьером, и пришла пора проанализировать результат. А может быть, Вы пока не знаете, какому стилю отдать предпочтение. Выберите тот стиль, которое вам нравится больше всего.

4 из 5 вопросов

04

Когда вы хотите начать ремонтные работы?

Мы сможем заранее оценить нагруженность своей команды дизайнеров и организовать работу строителей.

5 из 5 вопросов

05

Куда отправить варианты расчета?

После отправки формы вы попадете на страницу, где сможете получить бесплатное руководство "Схема ремонта от А до Я". Мы свяжемся с Вами - и ответим на все вопросы, в течение 15 минут в рабочее время (с 10:00 до 19:00 по МСК).

Спальня с кабинетом
Спальня с кабинетом
Спальня с кабинетом
Спальня с кабинетом

Спальня с кабинетом

Спальня выдержана в спокойных тёплых оттенках с акцентом на древесные текстуры и мягкие ткани. Изголовье кровати выполнено в обивке оливкового цвета — оно добавляет глубины и становится композиционным центром. По бокам — подвесные светильники и лаконичные тумбы. У окна разместили туалетный столик и растения.

В составе спальни организована отдельная рабочая зона. Её отделяет раздвижная стеклянная перегородка — рабочее место визуально не утяжеляет пространство. Внутри — встроенные шкафы под дерево, лаконичный стол и мягкое кресло, поддерживающие общую стилистику. Рабочая поверхность дополнена мягкой подсветкой.

Ванная комната
Ванная комната
Ванная комната
Ванная комната

Ванная комната

Ванная выполнена в светлой базовой палитре. Акцент — стена в ванной, облицованная вертикальной плиткой тёплого терракотового оттенка и предусмотрена ниша с открытыми полками для косметики.

Технический блок со стиральной и сушильной машинами встроен в мебель. Под раковиной — вместительная тумба в древесной отделке. Унитаз подвесной, инсталляция и шкафы скрыты в плоскости стен. Освещение многослойное: общее, подсветка зеркала и направленный свет на акцентную плитку.

 

back back

Сколько стоит дизайн-проект и ремонт: реальные примеры с ценами

Портфолио с готовыми проектами и финальными
сметами — без скрытых затрат и неожиданных расходов

Получить портфолио и расчёт
Прихожая
Прихожая

Прихожая

Прихожая оформлена сдержанно: светлые стены, встроенные шкафы с древесными панелями тёплого оттенка. Слева от двери — крючки и мягкая лавка с открытой полкой для обуви. Консоль с подсветкой дополнена зеркалом в полный рост. Подсветка встроена скрыто — мягкое рассеянное свечение подчёркивает объёмы и плоскости. Минимум деталей визуально расширяет входную зону.

Дополнительная информация о проекте

Стиль и цветовая гамма

Ремонт квартиры в ЖК «Shepilevskiy» выполнен в стиле джапанди с акцентом на природные фактуры и светлую тёплую базу. Основу составляют нейтральные оттенки с акцентами зелёного и терракотового — они добавлены точечно через мебель, текстиль и отделку.

Материалы

Инженерная доска — использована в жилых зонах, добавляет глубину за счёт натуральной текстуры дерева.

Окрашенные стены — формируют спокойный фон для мебели и декора.

Керамическая плитка — применена в санузле, включая акцентную терракотовую раскладку.

Интересные находки

Металлический напольный светильник в стиле брутализм с мраморным основанием — добавляет графичности пространству.

Кресло необычной формы в букле — работает как акцент в гостиной.

Керамический прикроватный столик нестандартной геометрии — выступает декоративной доминантой в спальне.

Отправьте заявку на консультацию или напишите нам в мессенджер

Мы составим для вас четкий путь от начала до результата, который потребует от вас минимальных усилий

Напишите нам!
Посчитаем точную стоимость вашего проекта