logo
Artum — студия дизайна интерьера
Перезвоните мне
Дизайн интерьера квартиры в ЖК «СберСити» в Москве в стиле ар-деко — 99 м²
блог Artum

Дизайн интерьера квартиры в ЖК «СберСити» в Москве в стиле ар-деко — 99 м²

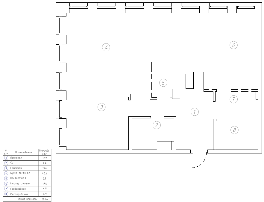
Задачи проекта

  • Предусмотреть большое количество мест для хранения.

  • Организовать рабочее место в мастер-спальне.

  • Выделить отдельную гостевую комнату.

  • Интегрировать систему «умный дом».

Планировочное решение

Изменения затронули мастер-зону. Гардеробную расширили за счёт площади спальни — это позволило увеличить объём хранения без потери удобства самой комнаты. Помещение, которое изначально планировалось как детская, переоборудовали в гостевую спальню. Комната легко трансформируется под разные сценарии — от размещения гостей до возможного использования в будущем как детской.

Гостиная
Гостиная
Гостиная
Гостиная

Гостиная

Чтобы отделить кухню-гостиную от входной зоны, при входе установили дверь. Решение добавило приватности и сделало пространство более камерным, особенно во время визитов гостей. В зоне отдыха разместили крупный диван для встреч и вечернего отдыха. Журнальные столики с золотой окантовкой добавляют интерьеру графичности и лёгкого блеска. Композицию завершает овальная подвесная люстра, парящая над группой.

Кухня
Кухня

Кухня

Кухонный блок выполнен в графитовых фасадах в сочетании со шпоном ореха. Контраст фактур делает зону глубже визуально и поддерживает стилистику квартиры. Обеденную группу акцентировали люстрой из вытянутых металлических элементов — она формирует вертикаль и добавляет динамики. Светлая мебель на фоне тёмной базы выглядит выразительно и нарядно.

back back

Сколько стоит дизайн-проект и ремонт: реальные примеры с ценами

Портфолио с готовыми проектами и финальными
сметами — без скрытых затрат и неожиданных расходов

Получить портфолио и расчёт
Мастер-спальня
Мастер-спальня
Мастер-спальня
Мастер-спальня

Мастер-спальня

Спальню немного сократили по площади и перераспределили метры в пользу гардеробной. Система хранения спроектирована модульно и закрывает все бытовые нужды владельца. Рабочее место с компактным консольным столиком. Он подходит как для работы за ноутбуком, так и в роли туалетного столика.

Высокие двери отсылают к эстетике ар-деко и визуально вытягивают помещение по высоте. Мягкое изголовье кровати обрамлено панелями из тёмного ореха. Бра добавляют камерный световой акцент и подчёркивают статус интерьера.

 

Гостевая спальня
Гостевая спальня

Гостевая спальня

Комната, изначально отведённая под детскую, переосмыслена как гостевая. Здесь разместили вместительный шкаф и заранее продумали расположение розеток и света  на случай будущей трансформации пространства. Акцентная стена за изголовьем оформлена обоями с медитативным цветочным рисунком. Орнамент собирает композицию комнаты и притягивает внимание.

Мастер-ванная
Мастер-ванная

Мастер-ванная

Мастер-ванная в тёмной графитовой палитре с активным использованием крупноформатного керамогранита. Зону раковины акцентировали подвесной тумбой с вертикальной фрезеровкой и столешницей из камня, дополненной встроенной подсветкой и латунной сантехникой. Системы хранения интегрированы в высокие шкафы со шпоном ореха, что визуально объединяет санузел с общей стилистикой квартиры. Ванну оформили стеклянной раздвижной перегородкой с тонировкой и встроенной нишей для косметики, сохранив чистоту линий и графичность пространства.

Душевая
Душевая

Душевая

Душевую оформили в контрасте тёмного керамогранита и древесных фасадов, поддерживая общую стилистику квартиры. Зону умывания выделили подвесной тумбой со шпоном ореха и каменной столешницей, дополненной вертикальной подсветкой зеркала. Душевое пространство отделено тонированной стеклянной перегородкой в чёрном профиле, что добавляет интерьеру графичности. Акценты из латуни в смесителях, крючках и фурнитуре завершают композицию, перекликаясь с остальными помещениями.

Рассчитайте стоимость дизайн-проекта, ремонта и материалов

1 из 5 вопросов

01

Выберите ваш тип жилья

У нас есть архитекторы и дизайнеры интерьеров, которые специализируются на конкретном типе помещений. Мы поможем составить грамотный дизайн-проект.

2 из 5 вопросов

02

Укажите общую площадь помещений

Для больших помещений мы снижаем стоимость закупки материалов за счет наших партнеров - строительных компаний.

м2

3 из 5 вопросов

03

В каком стиле вы хотите интерьер?

Возможно, Вы уже давно интересуетесь интерьером, и пришла пора проанализировать результат. А может быть, Вы пока не знаете, какому стилю отдать предпочтение. Выберите тот стиль, которое вам нравится больше всего.

4 из 5 вопросов

04

Когда вы хотите начать ремонтные работы?

Мы сможем заранее оценить нагруженность своей команды дизайнеров и организовать работу строителей.

5 из 5 вопросов

05

Куда отправить варианты расчета?

После отправки формы вы попадете на страницу, где сможете получить бесплатное руководство "Схема ремонта от А до Я". Мы свяжемся с Вами - и ответим на все вопросы, в течение 15 минут в рабочее время (с 10:00 до 19:00 по МСК).

Прихожая
Прихожая
Прихожая
Прихожая

Прихожая

Прихожая получилась просторной и функционально насыщенной. За счёт ширины помещения возвели перегородку и встроили шкаф для верхней одежды. Нишу напротив входа также задействовали под хранение.

Потолок оформлен световым панно, которое задаёт выразительный вид уже с порога. Напольное панно из керамогранита, выполненное по индивидуальным чертежам, усиливает декоративный эффект.

 

Дополнительная информация о проекте

Стиль и цветовая гамма

Ремонт квартиры в ЖК «СберСити» реализован в стилистике ар-деко, выбранной в продолжение архитектурной концепции дома. Цветовая база построена на тёмных графитовых оттенках с древесными акцентами. Контраст светлой мебели и тёмной отделки добавляет пространству выразительности и глубины.

Материалы

Шпон ореха — использован в мебели и панелях, формирует статусную визуальную базу.

Керамогранит — применён в напольных акцентных решениях.

Декоративные панели и окраска — создают фон для мебели и света.

Текстиль и металл с золотыми элементами — поддерживают стилистику ар-деко.

Интересные находки

Высокие двери в эстетике ар-деко — визуально вытягивают помещения по высоте, усиливают архитектурность интерьера и поддерживают стилистическую линию проекта.

Световое панно на потолке в прихожей — формирует выразительный сценарий освещения уже при входе, задаёт интерьеру статусное первое впечатление.

Напольное панно из керамогранита по индивидуальным чертежам — выступает декоративным акцентом и добавляет пространству графичности за счёт сложного рисунка укладки.

Отправьте заявку на консультацию или напишите нам в мессенджер

Мы составим для вас четкий путь от начала до результата, который потребует от вас минимальных усилий

Напишите нам!
Посчитаем точную стоимость вашего проекта