logo
Artum — студия дизайна интерьера
Перезвоните мне
Дизайн интерьера квартиры в ЖК «Саларьево парк» в Москве в стиле современный минимализм
блог Artum

Дизайн интерьера квартиры в ЖК «Саларьево парк» в Москве в стиле современный минимализм

Задачи проекта

  • Разместить пианино в общей зоне гостиной.

  • Организовать просторную кухню-гостиную с возможностью изоляции помещений.

  • Предусмотреть дополнительные места хранения в санузлах и коридоре.

  • Сформировать зону для ночёвки гостей.

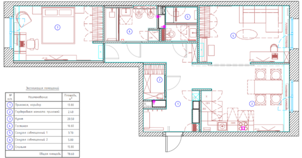
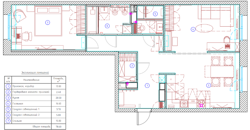
Планировочное решение

Изначально кухня и гостиная были отдельными помещениями. В новом решении пространства объединили в общую кухню-гостиную. Между зонами установили раздвижные двери, позволяющие при необходимости изолировать гостиную. Так же тут выделили место под пианино. В коридоре спроектировали встроенный шкаф для хозяйственного хранения. В санузлах добавили ниши и шкафы.

Кухня
Кухня
Кухня
Кухня

Кухня

Кухня объединена с гостиной с возможностью разделения раздвижными дверями. Фасады выполнены в светлой гамме с древесными акцентами. Верхние и нижние шкафы формируют достаточный объём хранения для техники и бытовых принадлежностей. Рабочая зона оформлена крупноформатным фартуком. 

У окна организована обеденная зона с компактным столом и мягкими креслами, а акцентом стены выступает картина в современном стиле, которая поддерживает цветовые акценты интерьера.

 

Гостиная
Гостиная
Гостиная
Гостиная

Гостиная

В гостиной — диван нейтрального оттенка с функцией раскладывания. Отдельно организована зона с пианино. Стена за инструментом выделена декоративной отделкой и подсветкой, что визуально фиксирует музыкальный уголок в общей композиции комнаты.

back back

Сколько стоит дизайн-проект и ремонт: реальные примеры с ценами

Портфолио с готовыми проектами и финальными
сметами — без скрытых затрат и неожиданных расходов

Получить портфолио и расчёт
Спальня
Спальня
Спальня
Спальня

Спальня

Спальня выполнена в светлой палитре с изголовьем кровати из мягких панелей. По обе стороны размещены прикроватные тумбы и бра для локального освещения. У окна организована рабочая зона со столом и компьютерной техникой.

Встроенные шкафы от пола до потолка предназначены для хранения одежды и личных вещей. Напротив кровати расположена ТВ-зона с древесными полками, где размещена коллекция моделей самолётов. Подсветка и сочетание дерева, текстиля и декоративной штукатурки добавляют интерьеру глубину и визуальное разнообразие.

 

Ванная комната
Ванная комната
Ванная комната
Ванная комната

Ванная комната

Помещение оформлено в светлой гамме с использованием крупноформатного керамогранита под камень и древесных акцентов. Зона ванны отделена прозрачной перегородкой с чёрным профилем.

Над раковиной размещено зеркало с подсветкой, подвесная тумба облегчает восприятие объёма. Шкафы и ниша со стиральной и сушильной машинами позволяют скрыть технику и бытовые принадлежности.

Рассчитайте стоимость дизайн-проекта, ремонта и материалов

1 из 5 вопросов

01

Выберите ваш тип жилья

У нас есть архитекторы и дизайнеры интерьеров, которые специализируются на конкретном типе помещений. Мы поможем составить грамотный дизайн-проект.

2 из 5 вопросов

02

Укажите общую площадь помещений

Для больших помещений мы снижаем стоимость закупки материалов за счет наших партнеров - строительных компаний.

м2

3 из 5 вопросов

03

В каком стиле вы хотите интерьер?

Возможно, Вы уже давно интересуетесь интерьером, и пришла пора проанализировать результат. А может быть, Вы пока не знаете, какому стилю отдать предпочтение. Выберите тот стиль, которое вам нравится больше всего.

4 из 5 вопросов

04

Когда вы хотите начать ремонтные работы?

Мы сможем заранее оценить нагруженность своей команды дизайнеров и организовать работу строителей.

5 из 5 вопросов

05

Куда отправить варианты расчета?

После отправки формы вы попадете на страницу, где сможете получить бесплатное руководство "Схема ремонта от А до Я". Мы свяжемся с Вами - и ответим на все вопросы, в течение 15 минут в рабочее время (с 10:00 до 19:00 по МСК).

Душевая
Душевая
Душевая
Душевая

Душевая

Компактный санузел выполнен в той же стилистике. Использованы светлые поверхности, натуральные текстуры и чёрная фурнитура. Душевая ограждена стеклянной перегородкой, внутри предусмотрены сиденье и ниши для аксессуаров.

Подвесная тумба с фактурными фасадами и зеркало с подсветкой поддерживают современную линию интерьера. Дополнительное хранение интегрировано в шкафы над инсталляцией.

 

Прихожая
Прихожая
Прихожая
Прихожая

Прихожая

Прихожая оформлена в светлой цветовой базе. Встроенные шкафы от пола до потолка формируют основной объём хранения — для одежды, обуви и хозяйственных принадлежностей.

Зона переобувания дополнена скамьёй и открытыми полками. Акцентом стала яркая картина в нише и профильная подсветка, переходящая со стен на потолок. Все двери выполнены в скрытом формате. На полу — крупноформатный керамогранит с минимальным количеством швов.

Дополнительная информация о проекте

Стиль и цветовая гамма

Интерьер выполнен в стиле современный минимализм: светлая база с контрастными и древесными акцентами. Основу составляют бежевые и серые оттенки стен. Декор дерева интегрирован в мебель, панели и общественные зоны, добавляя глубину пространству.

Материалы

Крупноформатный керамогранит с минимальным количеством швов — использован в общественных зонах и санузлах.

Текстильное изголовье кровати — формирует акцент спальни.

Декоративная штукатурка — применена в отделке стен как фактурный элемент.

 

Интересные находки

Подсветка в прихожей с переходом со стен на потолок — формирует дополнительную графику пространства.

Крупноформатный керамогранит в ТВ-зоне гостиной и на кухонном фартуке — объединяет общественные помещения.

Яркие современные картины — выступают акцентами на нейтральном фоне интерьера.

 

Отправьте заявку на консультацию или напишите нам в мессенджер

Мы составим для вас четкий путь от начала до результата, который потребует от вас минимальных усилий

Напишите нам!
Посчитаем точную стоимость вашего проекта