logo
Artum — студия дизайна интерьера
Перезвоните мне
Дизайн интерьера квартиры в ЖК «Режиссер» в Москве в стиле джапанди с элементами бохо — 70 м²
блог Artum

Дизайн интерьера квартиры в ЖК «Режиссер» в Москве в стиле джапанди с элементами бохо — 70 м²

Задачи проекта

  • Объединить зону кухни и коридора для визуального расширения пространства.

  • Спроектировать два изолированных рабочих места на территории балконов.

  • Создать спокойный монохромный интерьер в светлых тонах без ярких пятен.

  • Грамотно вписать зону отдыха с диваном и ТВ в общее пространство кухни-гостиной.

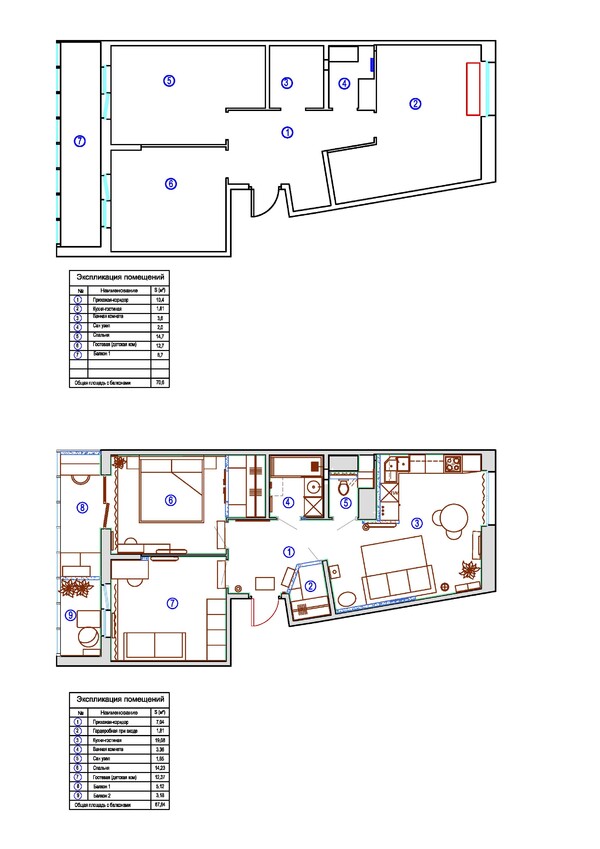
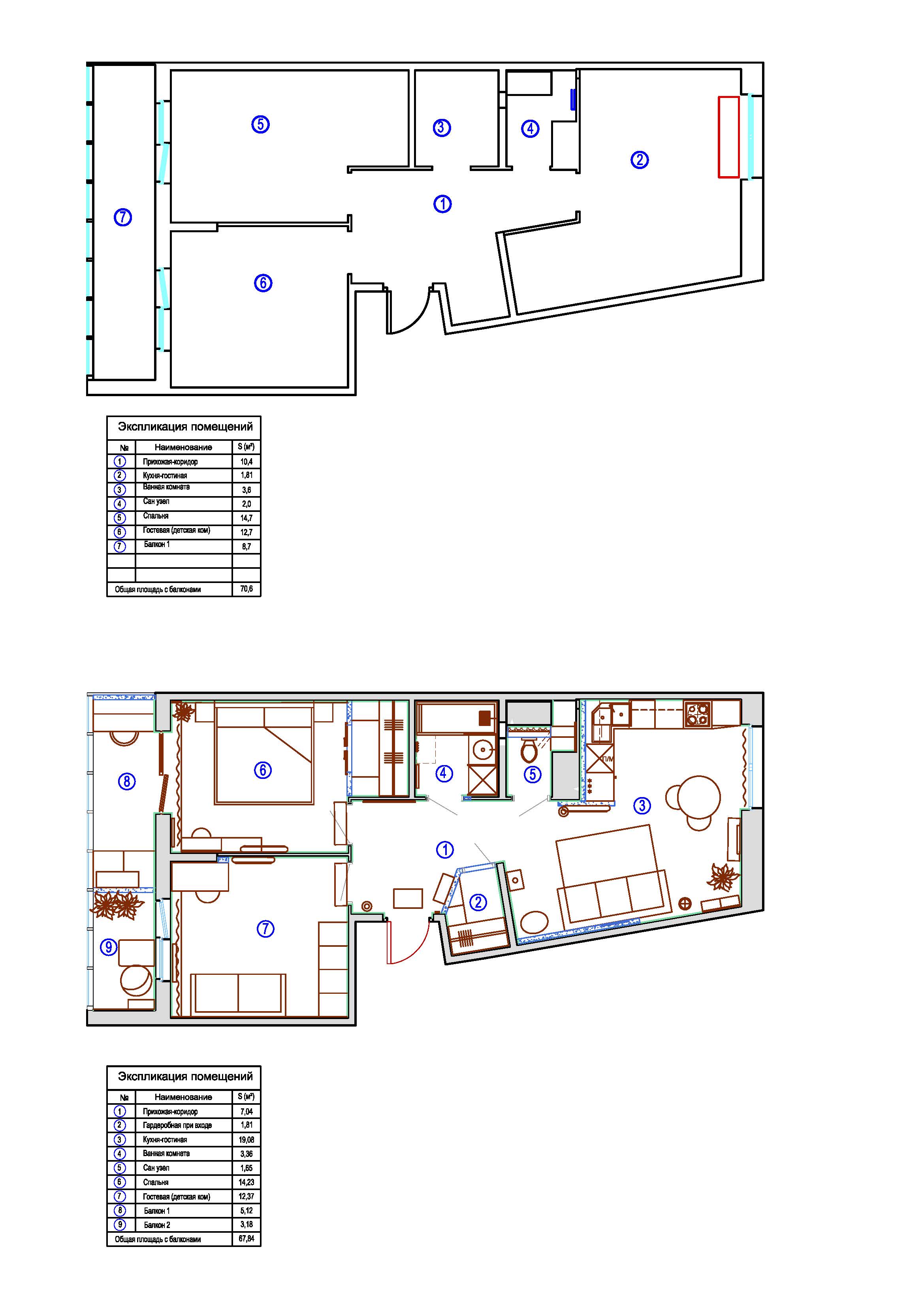
Планировочное решение

Мы полностью пересмотрели исходные данные застройщика, чтобы избавиться от тесноты. Узкий темный коридор и маленькая кухня делали квартиру неудобной, поэтому мы демонтировали перегородку, стоявшую под углом. Большой балкон мы разделили на две части капитальной перегородкой, организовав два приватных кабинета. Теперь в квартире нет «мертвых» зон, а каждый квадратный метр используется с пользой.

Кухня-гостиная
Кухня-гостиная
Кухня-гостиная
Кухня-гостиная

Кухня-гостиная

Кухня и гостиная теперь составляют единый ансамбль, но четко разделены. Центром стал диван с мягкими, округлыми формами, который мы расположили напротив специально возведенной перегородки. На этой стене закрепили телевизор, а с обратной стороны перегородки спрятали вместительные кухонные колонны с техникой. 

Кухонные фасады в шпоне ореха отлично сочетаются с зеленой плиткой фартука, которая имеет неровную «ручную» фактуру. Для домашних питомцев мы интегрировали в интерьер настенную игровую систему, которая не выбивается из общего стиля.

 

Спальня
Спальня
Спальня
Спальня

Спальня

В спальне мы применили тактику минимализма, оставив только самое необходимое для качественного сна. Главным декоративным элементом стала стена в изголовье кровати, оформленная объемной гипсовой композицией с эффектом скалы.

Вместо громоздких шкафов мы организовали отдельную гардеробную, скрытую за раздвижными дверями с текстильной отделкой. Подвесные тумбы и лаконичная консоль с зеркалом помогают поддерживать ощущение легкости и воздуха. Свет здесь многоуровневый: от мягкой контурной подсветки до направленных спотов для чтения.

back back

Сколько стоит дизайн-проект и ремонт: реальные примеры с ценами

Портфолио с готовыми проектами и финальными
сметами — без скрытых затрат и неожиданных расходов

Получить портфолио и расчёт
Рабочие зоны (балконы)
Рабочие зоны (балконы)
Рабочие зоны (балконы)
Рабочие зоны (балконы)

Рабочие зоны (балконы)

Первый кабинет получился компактным и светлым благодаря панорамному остеклению с черными рамами. Мы установили здесь откидную столешницу, чтобы при необходимости освободить место, и добавили открытые полки для книг.

Второй балкон оформлен в более насыщенных, теплых тонах и предназначен для длительной работы за стационарным столом. Здесь мы предусмотрели встроенный шкаф до потолка, где хозяева хранят сезонные вещи, не загромождая жилые комнаты. Оба помещения утеплены и позволяют комфортно работать в любое время года.

Ванная комната
Ванная комната

Ванная комната

Ванную комнату мы выполнили в глубоких графитовых оттенках, используя керамогранит с текстурой камня и дерева. Здесь удалось разместить полноценную ванну и широкий блок, в который спрятаны стиральная и сушильная машины.

Гостевой санузел
Гостевой санузел

Гостевой санузел

Гостевой санузел сделали светлым и природным, добавив в нишу над инсталляцией панно из настоящего стабилизированного мха. Встроенная подсветка проявляет рельеф материалов. Все гигиенические принадлежности скрыты в нишах, поэтому пространство выглядит аккуратно.

Рассчитайте стоимость дизайн-проекта, ремонта и материалов

1 из 5 вопросов

01

Выберите ваш тип жилья

У нас есть архитекторы и дизайнеры интерьеров, которые специализируются на конкретном типе помещений. Мы поможем составить грамотный дизайн-проект.

2 из 5 вопросов

02

Укажите общую площадь помещений

Для больших помещений мы снижаем стоимость закупки материалов за счет наших партнеров - строительных компаний.

м2

3 из 5 вопросов

03

В каком стиле вы хотите интерьер?

Возможно, Вы уже давно интересуетесь интерьером, и пришла пора проанализировать результат. А может быть, Вы пока не знаете, какому стилю отдать предпочтение. Выберите тот стиль, которое вам нравится больше всего.

4 из 5 вопросов

04

Когда вы хотите начать ремонтные работы?

Мы сможем заранее оценить нагруженность своей команды дизайнеров и организовать работу строителей.

5 из 5 вопросов

05

Куда отправить варианты расчета?

После отправки формы вы попадете на страницу, где сможете получить бесплатное руководство "Схема ремонта от А до Я". Мы свяжемся с Вами - и ответим на все вопросы, в течение 15 минут в рабочее время (с 10:00 до 19:00 по МСК).

Гостевая комната
Гостевая комната

Гостевая комната

Эта комната служит и дополнительной зоной отдыха, и полноценным местом для приема гостей. Оливковый диван выступает мягким цветовым акцентом на фоне нейтральных бежевых стен. 

У окна мы поставили еще один рабочий стол из светлого дерева, который дополнен открытыми стеллажами. Интерьер завершает лаконичный встроенный шкаф с белыми матовыми фасадами с гранатовой рифленой окантовкой.

 

Прихожая
Прихожая

Прихожая

Входная зона встречает мягким светом и светлой пастельной гаммой. Мы установили здесь большое арочное зеркало с контурным освещением, которое визуально удваивает ширину коридора. 

На полу уложен практичный кварц-винил под дерево, плавно переходящий в жилые комнаты. Небольшая консоль с плетеными фасадами добавляет нотку бохо и служит местом для ключей и мелочей. Система освещения разделена на основной потолочный свет и вечерний дежурный свет, встроенный в плинтусы и ниши.

 

Дополнительная информация о проекте

Стиль и цветовая гамма

Интерьер базируется на принципах джапанди и акцентами бохо. Основная палитра состоит из бежево-серых пастельных тонов, которые служат спокойным фоном для жизни. В качестве акцентов мы использовали природные цвета — мох, терракоту и глубокий графит. Такое сочетание помогает создать пространство, которое не надоест через год и будет актуально долгое время.

Материалы

Краска и декоративная штукатурка — создают ровные матовые поверхности, за которыми легко ухаживать.

Кварц-винил и керамогранит — выбраны за их износостойкость, что особенно важно при наличии в доме собаки и кота.

Шпон ореха и натуральное дерево — добавляют интерьеру тактильного тепла и подчеркивают экологичность стиля.

3D-панели из гипса — использованы для создания рельефных акцентов в спальне и гостиной без перегрузки цветом.

Интересные находки

Эффект скалы в спальне — объемная композиция из гипса заменяет привычный декор и выглядит как арт-объект.

Разделение балкона на два кабинета — позволило создать изолированные офисы для каждого из супругов на месте одной лоджии.

Многофункциональная перегородка в гостиной — она одновременно служит ТВ-зоной и скрывает техническую часть кухонного гарнитура.

Панно из мха в санузле — добавляет живую зелень в помещение без окон, не требуя при этом полива и сложного ухода.

Отправьте заявку на консультацию или напишите нам в мессенджер

Мы составим для вас четкий путь от начала до результата, который потребует от вас минимальных усилий

Напишите нам!
Посчитаем точную стоимость вашего проекта