logo
Artum — студия дизайна интерьера
Перезвоните мне
Дизайн интерьера квартиры в ЖК «Петровский парк II» в Москве с элементами контемпорари — 145 м²
блог Artum

Дизайн интерьера квартиры в ЖК «Петровский парк II» в Москве с элементами контемпорари — 145 м²

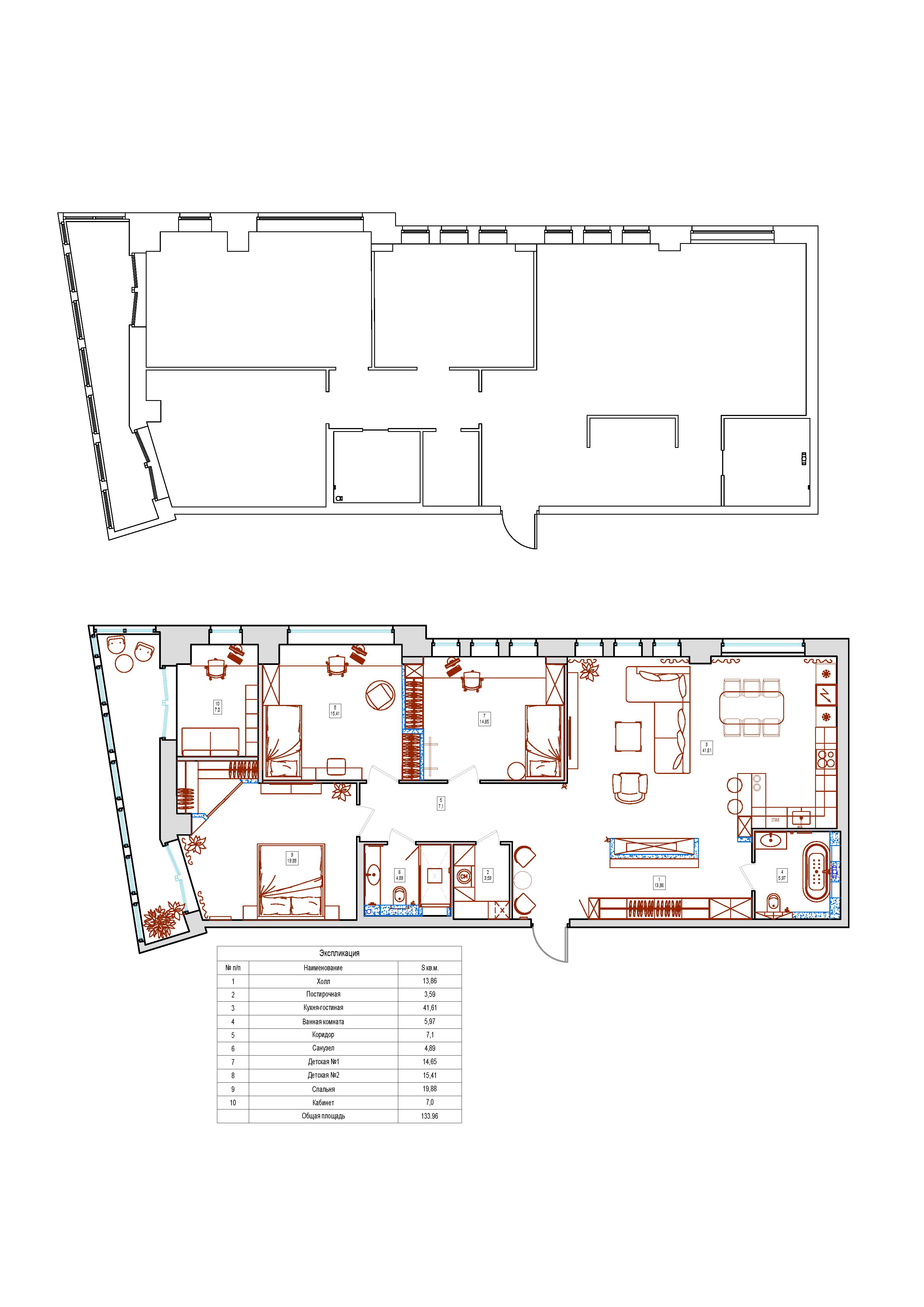
Задачи проекта

  • Спроектировать зону для установки камина в пространстве гостиной.

  • Выделить отдельное изолированное место под рабочий кабинет хозяина.

  • Создать в ванной комнате нишу с акцентным панно из керамогранита.

  • Оборудовать в мастер-спальне функциональную закрытую гардеробную.

Планировочное решение

Мы изменили исходный план, чтобы сделать движение по квартире логичным. Раньше коридор был разбит перегородкой на две части, что дробило пространство. Мы убрали эту стену, объединив прихожую с холлом в общую просторную зону. Большую угловую комнату разделили на две части, благодаря чему в квартире появились детская и кабинет. В гостиной изменили форму перегородок специально под установку камина в глубокую нишу.

Кухня
Кухня
Кухня
Кухня

Кухня

Кухню и гостиную объединили, сохранив при этом четкое функциональное деление. Для отделки выбрали светлые тона и дерево, добавив детали из металла теплых оттенков. Верхние кухонные фасады сделали матовыми и гладкими, полностью отказавшись от выступающей фурнитуры. 

Столешница и фартук выполнены из керамогранита с активным природным рисунком. Группу для обедов выделили креслами в бархатной обивке цвета марсала и латунным светильником.

Гостиная
Гостиная
Гостиная
Гостиная

Гостиная

Центральным элементом этой комнаты стал камин, который встроили в подготовленную нишу между шкафами. Стену за телевизором оформили комбинацией деревянных панелей и покрытия с фактурой дикого камня. 

Мягкую мебель подобрали в нейтральной гамме, чтобы не перегружать восприятие. Завершает интерьерную группу кофейный стол из матового металла, который перекликается с общим стилем.

Мастер-спальня
Мастер-спальня
Мастер-спальня
Мастер-спальня

Мастер-спальня

Комнату оформили в серо-бежевых тонах, сделав ставку на игру разных поверхностей. Стену за кроватью закрыли вертикальными панелями со вставками под мрамор и скрытым светом. 

Рядом с кроватью закрепили подвесные тумбы и бра с декоративными стеклянными элементами. Для хранения вещей возвели перегородку и установили раздвижные двери из рифленого стекла. В отделке сочетали краску, штукатурку и шпон, а свет разделили на потолочный и интерьерный.

back back

Сколько стоит дизайн-проект и ремонт: реальные примеры с ценами

Портфолио с готовыми проектами и финальными
сметами — без скрытых затрат и неожиданных расходов

Получить портфолио и расчёт
Комната сына
Комната сына
Комната сына
Комната сына

Комната сына

В отделке использовали спокойную базу с акцентом на глубокую синюю стену у изголовья кровати. Спальное место выделили мягкими панелями серого цвета и деревянной картой мира с декоративной подсветкой. 

Рабочую зону организовали вдоль окна с помощью массивной столешницы, переходящей в систему хранения с открытыми полками. Встроенный шкаф с комбинированными фасадами под дерево и белый глянец позволил аккуратно разместить личные вещи и декор.

Комната дочери
Комната дочери
Комната дочери
Комната дочери

Комната дочери

Основная палитра комнаты выполнена в светлых тонах с мягкими розовыми акцентами и деталями под золото. У окна расположено рабочее место со встроенными стеллажами для хранения наград и книг. 

Кровать дополнена фигурным мягким изголовьем, которое переходит в стеновые панели с вертикальной фрезеровкой. Главным акцентом стала зона туалетного столика с круглым зеркалом, вписанным в подсвеченный арочный портал.

Кабинет
Кабинет

Кабинет

Рабочее место оформили в сдержанных тонах, сочетая дерево и серые поверхности. Стол поставили прямо у окна, чтобы максимально использовать дневной свет во время дел. Всю стену заняли системы хранения для документов и книг со встроенной подсветкой в полках. Кресло из коричневой кожи выступает ярким штрихом и поддерживает общую цветовую схему.

Рассчитайте стоимость дизайн-проекта, ремонта и материалов

1 из 5 вопросов

01

Выберите ваш тип жилья

У нас есть архитекторы и дизайнеры интерьеров, которые специализируются на конкретном типе помещений. Мы поможем составить грамотный дизайн-проект.

2 из 5 вопросов

02

Укажите общую площадь помещений

Для больших помещений мы снижаем стоимость закупки материалов за счет наших партнеров - строительных компаний.

м2

3 из 5 вопросов

03

В каком стиле вы хотите интерьер?

Возможно, Вы уже давно интересуетесь интерьером, и пришла пора проанализировать результат. А может быть, Вы пока не знаете, какому стилю отдать предпочтение. Выберите тот стиль, которое вам нравится больше всего.

4 из 5 вопросов

04

Когда вы хотите начать ремонтные работы?

Мы сможем заранее оценить нагруженность своей команды дизайнеров и организовать работу строителей.

5 из 5 вопросов

05

Куда отправить варианты расчета?

После отправки формы вы попадете на страницу, где сможете получить бесплатное руководство "Схема ремонта от А до Я". Мы свяжемся с Вами - и ответим на все вопросы, в течение 15 минут в рабочее время (с 10:00 до 19:00 по МСК).

Ванная комната
Ванная комната

Ванная комната

В центре внимания — отдельно стоящая ванна на фоне стены из крупноформатного керамогранита. Чтобы спрятать трубы и коммуникации, мы возвели короб-портал, который стал главным декоративным элементом.

По периметру этой конструкции проложили светодиодную ленту, подчеркивающую текстуру плитки. Смесители и фурнитуру подобрали в матовом золоте, выдерживая общую концепцию проекта.

Гостевой санузел
Гостевой санузел

Гостевой санузел

Для гостевого санузла выбрали практичную бежево-серую гамму, которая выглядит аккуратно. В душевой зоне сделали встроенную нишу для косметики и поставили перегородку в тонком профиле. Смесители и аксессуары в оттенке латуни связывают это помещение с остальными комнатами. Грамотная раскладка плитки позволила визуально расширить небольшую площадь санузла.

Прихожая
Прихожая

Прихожая

Зону входа выполнили в светло-серых тонах, добавив металлические детали под золото. Большое зеркало в полный рост помогает визуально увеличить узкое пространство холла. 

На полу лежит керамогранит с тонкими вставками из латуни, уложенными в виде геометрического узора. У стены поставили пару кресел и стол, а напротив разместили панель с нишей и декором.

Дополнительная информация о проекте

Стиль и цветовая гамма

Интерьер выполнен в современном стиле с аккуратно интегрированными элементами контемпорари. Цветовая база построена на пастельных серо-бежевых оттенках, которые делают пространство светлее. Акцентные пятна цвета марсала и синие тона добавлены дозированно, чтобы сохранить спокойный характер жилья.

Материалы

Краска, декоративная штукатурка и 3D-панели — создают сложный фон и подчеркивают архитектуру стен.

Керамогранит и кварцвинил — выбраны для отделки пола и влажных зон как самые износостойкие покрытия.

Мебельные панели под дерево и камень — используются в отделке акцентных стен и систем хранения.

Металлические молдинги и латунь — выступают в роли тонких графичных деталей, связывающих интерьер воедино.

Интересные находки

Эффектная зона камина в гостиной — стала визуальным центром квартиры благодаря сложной конфигурации перегородок.

Комбинация скальной фактуры и дерева — необычное решение в ТВ-зоне, добавляющее пространству природности.

Архитектурный портал в ванной — позволил эстетично скрыть инженерные узлы и создать место для подсветки.

Отправьте заявку на консультацию или напишите нам в мессенджер

Мы составим для вас четкий путь от начала до результата, который потребует от вас минимальных усилий

Напишите нам!
Посчитаем точную стоимость вашего проекта