logo
Artum — студия дизайна интерьера
Перезвоните мне
Дизайн интерьера квартиры в ЖК «Омега Хаус» в стиле монохромный минимализм — 110 м²
блог Artum

Дизайн интерьера квартиры в ЖК «Омега Хаус» в стиле монохромный минимализм — 110 м²

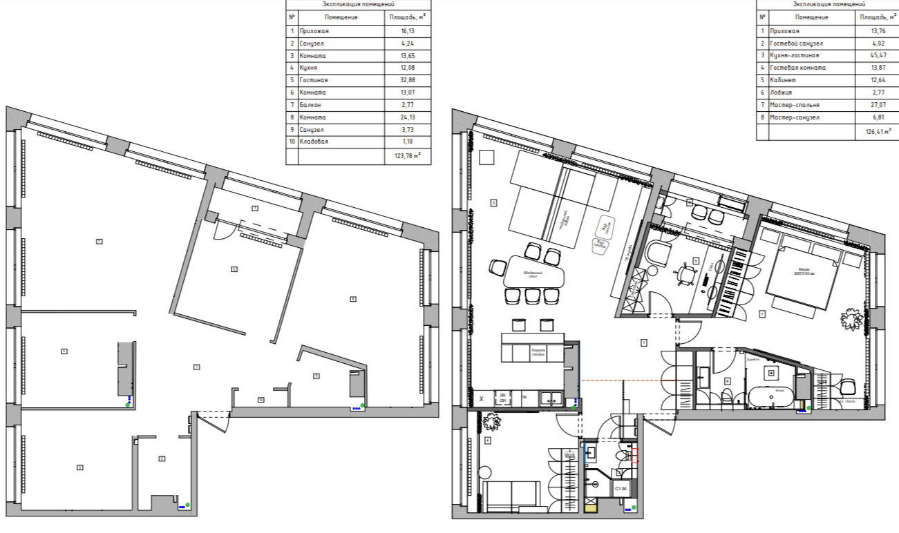
Задачи проекта

  • Внедрить проводной умный дом, чтобы техника не бросалась в глаза.

  • Разместить вентиляцию и кондиционеры так, чтобы потолки опустились минимально.

  • Продумать расстановку мебели с учётом панорамного остекления.

  • Организовать скрытое размещение серверного и электротехнического оборудования.

Планировочное решение

В квартире провели перепланировку, чтобы сделать пространство более логичным по функциям и удобным. Кухню и гостиную объединили — помещение стало светлее и просторнее, появилось место для отдыха и приёма гостей. Гостевую комнату заложили с возможностью дальнейшей трансформации в детскую. Кабинет с выходом на балкон сформировали как отдельную рабочую зону. Дополнительно организовали гостевой санузел. В прихожей предусмотрели декоративную перегородку с зеркалом и встроенным шкафом — она отделяет входную часть от основной зоны и одновременно скрывает техническое оборудование.

Кухня-гостиная
Кухня-гостиная
Кухня-гостиная
Кухня-гостиная

Кухня-гостиная

В кухне-гостиной центральный элементом служит большой модульный диван строгой формы. У окна расположены торшер и телескоп — детали, отражающие интересы владельца и добавляющие индивидуальности. ТВ-зона собрана из крупных панелей со скрытой подсветкой.

Кухонный блок выполнен в тёмной древесной гамме. Гладкие фасады без ручек сохраняют цельность плоскостей. Остров дополнен подсветкой и используется как рабочая поверхность и место для быстрых приёмов пищи. Фартук и рабочая зона оформлены фактурным камнем, который усиливает контраст материалов и добавляет глубину интерьеру.

 

Спальня
Спальня

Спальня

Кровать развернули к окну, мягкое изголовье и компактная банкетка поддерживают спокойный характер зоны отдыха. Шкафы выполнены в тёмно-сером оттенке и выстроены в единую линию, формируя скрытую систему хранения. У окна организована консоль с зеркалом во всю высоту. Телевизор встроен в плоскость стены, рядом добавлен фактурный участок отделки, который работает как акцент без избыточного декора.

back back

Сколько стоит дизайн-проект и ремонт: реальные примеры с ценами

Портфолио с готовыми проектами и финальными
сметами — без скрытых затрат и неожиданных расходов

Получить портфолио и расчёт
Ванная комната
Ванная комната

Ванная комната

В пространстве ванной объединили душевую и зону отдельно стоящей ванны, закрыв их стеклянной перегородкой на всю длину. Подвесная тумба и шкафы выполнены в тёмной палитре, а подсветка под ними создаёт эффект «парящих» объёмов. В отделке использован крупноформатный керамогранит, дополненный вертикальной фактурой в зоне ванны — она подчёркивает высоту помещения и усиливает графику интерьера.

Душевая
Душевая

Душевая

В душевой предусмотрели нишу со стиральной и сушильной машинами, закрытую встроенными фасадами. Душевой угол выполнен из стекла с тёмными профилями, а периметральная подсветка подчёркивает чистоту линий. Узкая тумба с зеркалом во всю высоту визуально вытягивает пространство и остаётся удобной для ежедневного использования.

Рассчитайте стоимость дизайн-проекта, ремонта и материалов

1 из 5 вопросов

01

Выберите ваш тип жилья

У нас есть архитекторы и дизайнеры интерьеров, которые специализируются на конкретном типе помещений. Мы поможем составить грамотный дизайн-проект.

2 из 5 вопросов

02

Укажите общую площадь помещений

Для больших помещений мы снижаем стоимость закупки материалов за счет наших партнеров - строительных компаний.

м2

3 из 5 вопросов

03

В каком стиле вы хотите интерьер?

Возможно, Вы уже давно интересуетесь интерьером, и пришла пора проанализировать результат. А может быть, Вы пока не знаете, какому стилю отдать предпочтение. Выберите тот стиль, которое вам нравится больше всего.

4 из 5 вопросов

04

Когда вы хотите начать ремонтные работы?

Мы сможем заранее оценить нагруженность своей команды дизайнеров и организовать работу строителей.

5 из 5 вопросов

05

Куда отправить варианты расчета?

После отправки формы вы попадете на страницу, где сможете получить бесплатное руководство "Схема ремонта от А до Я". Мы свяжемся с Вами - и ответим на все вопросы, в течение 15 минут в рабочее время (с 10:00 до 19:00 по МСК).

Гостевая комната
Гостевая комната

Гостевая комната

Гостевую можно использовать как дополнительную спальню или со временем переоборудовать под детскую. Светлые стены и встроенные шкафы дают достаточный объём хранения. Низкий диван делает пространство визуально мягче и подходит как для отдыха, так и для работы. У окна предусмотрена широкая подоконная скамья — место для чтения или перерывов в течение дня.

Кабинет
Кабинет

Кабинет

Кабинет задуман как изолированная рабочая зона. Комната имеет выход на балкон, где размещено инженерное оборудование. Рабочий стол с большой столешницей, мониторами и подсветкой, которые формируют удобную зону для длительной работы. На стене размещены гитары — они выступают личным акцентом. Встроенные шкафы в тёмной отделке дают хранение для техники и документов, а глубокое кресло у окна добавляет дополнительное место для перерывов.

Прихожая
Прихожая
Прихожая
Прихожая

Прихожая

Входная часть отделена декоративной конструкцией с зеркалом и системой хранения, внутри которой размещены инженерные блоки. Такое решение позволило сохранить визуальную чистоту и одновременно предусмотреть хранение верхней одежды, обуви и бытовых элементов. Дополнительные шкафы встроены в общую линию стен. Светлая палитра и ровные поверхности визуально расширяют пространство и делают его легче для восприятия.

Дополнительная информация о проекте

Стиль и цветовая гамма

Интерьер выполнен в монохромном минимализме: базу составляют серые, бежевые, белые и тёмно-коричневые оттенки. Контраст чёрных и темно-серых элементов добавляет глубину и подчёркивает архитектуру пространства.

Материалы

Краска и декоративные покрытия — формируют ровный фон и подчёркивают геометрию помещений.

Камень и зеркальные поверхности — добавляют фактуру и отражают свет.

Паркетная доска — используется как тёплый баланс к холодной монохромной палитре.

Керамогранит — в санузлах и мокрых зонах за счёт практичности и износостойкости.

 

Интересные находки

Световые потолки — создают мягкое рассеянное освещение без массивных светильников.

Зеркала в угловых зонах — отражают шторы и визуально продолжают пространство, формируя эффект дополнительного прохода.

 

Отправьте заявку на консультацию или напишите нам в мессенджер

Мы составим для вас четкий путь от начала до результата, который потребует от вас минимальных усилий

Напишите нам!
Посчитаем точную стоимость вашего проекта