logo
Artum — студия дизайна интерьера
Перезвоните мне
Дизайн интерьера квартиры в ЖК «Министр» в Санкт-Петербурге в стиле современная классика — 54 м²
блог Artum

Дизайн интерьера квартиры в ЖК «Министр» в Санкт-Петербурге в стиле современная классика — 54 м²

Задачи проекта

  • Сделать современный интерьер с элементами классики на небольшой площади.

  • Продумать системы хранения так, чтобы они не бросались в глаза.

  • Добавить в спокойную базу яркие акценты изумрудного и серого.

  • Подобрать практичные и износостойкие материалы для семьи с ребенком.

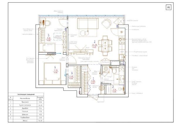
Планировочное решение

Мы сохранили исходное планировочное решение от застройщика. Центром квартиры стала кухня-гостиная, откуда можно попасть в приватные спальные зоны. Все технические узлы и системы хранения мы сгруппировали в зоне входа, чтобы освободить жилые комнаты. Спальни расположены в глубине квартиры, что позволяет сохранить приватность личного пространства.

Кухня-гостиная
Кухня-гостиная
Кухня-гостиная
Кухня-гостиная

Кухня-гостиная

Кухонный гарнитур встроен в нишу и дополнен классическими филёнчатыми фасадами в светлом оттенке. Фартук и столешница выполнены из камня с выразительным рисунком, который стал главным декоративным элементом зоны. 

Обеденная группа с массивным деревянным столом расположена по центру и выделена дизайнерским подвесным светильником. В зоне отдыха мы установили контрастный диван изумрудного цвета, напольный светильник и столиком со светлой столешницей.

Спальня с гардеробной
Спальня с гардеробной
Спальня с гардеробной
Спальня с гардеробной

Спальня с гардеробной

В спальне кровать с мягким изголовьем дополнили стеновыми панелями с имитацией скалы и вертикальным светом. Громоздкие прикроватные тумбы заменили на легкие подвесные консоли, чтобы комната казалась просторнее. 

Рядом с кроватью — лаконичный встроенный шкаф, который сливается с цветом стен. Гардеробную вынесли в отдельный блок за перегородку из темного стекла в тонкой раме.

Детская комната
Детская комната
Детская комната
Детская комната

Детская комната

Детская оформлена в нейтральной светлой гамме с добавлением тёплых древесных фактур. Кровать-софа расположена вдоль стены, а рядом установлен высокий шкаф с оригинальными арочными фасадами. 

У окна организовали рабочее место с полками и большой графитовой доской для рисования мелом. Игрушки и книги хранятся в низких стеллажах, до которых ребенку легко дотянуться самому.

Рассчитайте стоимость дизайн-проекта, ремонта и материалов

1 из 5 вопросов

01

Выберите ваш тип жилья

У нас есть архитекторы и дизайнеры интерьеров, которые специализируются на конкретном типе помещений. Мы поможем составить грамотный дизайн-проект.

2 из 5 вопросов

02

Укажите общую площадь помещений

Для больших помещений мы снижаем стоимость закупки материалов за счет наших партнеров - строительных компаний.

м2

3 из 5 вопросов

03

В каком стиле вы хотите интерьер?

Возможно, Вы уже давно интересуетесь интерьером, и пришла пора проанализировать результат. А может быть, Вы пока не знаете, какому стилю отдать предпочтение. Выберите тот стиль, которое вам нравится больше всего.

4 из 5 вопросов

04

Когда вы хотите начать ремонтные работы?

Мы сможем заранее оценить нагруженность своей команды дизайнеров и организовать работу строителей.

5 из 5 вопросов

05

Куда отправить варианты расчета?

После отправки формы вы попадете на страницу, где сможете получить бесплатное руководство "Схема ремонта от А до Я". Мы свяжемся с Вами - и ответим на все вопросы, в течение 15 минут в рабочее время (с 10:00 до 19:00 по МСК).

Ванная комната
Ванная комната
Ванная комната
Ванная комната

Ванная комната

Интерьер ванной комнаты построен на использовании крупноформатного керамогранита под белый мрамор с золотыми прожилками. Зона душа отделена прозрачным стеклом, внутри стены дополнены нишами для хранения косметики. 

Подвесная тумба с синими фасадами и каменной столешницей добавляет пространству графичности и контраста. Бытовую технику мы спрятали в высокий шкаф, сохранив эстетику и порядок в помещении.

Прихожая
Прихожая
Прихожая
Прихожая

Прихожая

Прихожая получилась лаконичной: вдоль стены установлены системы хранения до потолка с гладкими фасадами и лаконичной фурнитурой. Напротив входа расположено высокое зеркало с каменной консолью и мягким пуфом для переобувания. 

Двери скрытого монтажа выполнены в цвет стен, поэтому они не дробят пространство и выглядят аккуратно. Линейная подсветка на потолке подчеркивает геометрию коридора и связывает входную зону с жилыми комнатами.

Дополнительная информация о проекте

Стиль и цветовая гамма

Интерьер выполнен в современном стиле с классическими элементами. В основе — молочные и серые тона, которые визуально расширяют квартиру. Цвет добавили точечно: через обивку дивана, фасады тумбы в ванной и декор.

Материалы

Краска и молдинги — создают рельеф на стенах, добавляя интерьеру глубины.

Камень с активной текстурой — основной декоративный элемент на кухне и в ванной.

Паркет «французская ёлка» — классика, которая делает пол главным украшением комнат.

Шпон и стекло — добавляют тепла и позволяют играть со светом и отражениями.

Интересные находки

ТВ-зона с раскладкой шпона — стена с разной направленностью древесного рисунка заменяет дорогой декор.

Арочные шкафы в детской — смягчают интерьер и делают мебель менее «офисной».

Световые вертикальные профили в спальне — заменяют ночники и подсвечивают рельефную стену под камень.

Стеклянная витрина с подсветкой в обеденной зоне — служит для хранения коллекции вина и бокалов.

Отправьте заявку на консультацию или напишите нам в мессенджер

Мы составим для вас четкий путь от начала до результата, который потребует от вас минимальных усилий

Напишите нам!
Посчитаем точную стоимость вашего проекта