logo
Artum — студия дизайна интерьера
Перезвоните мне
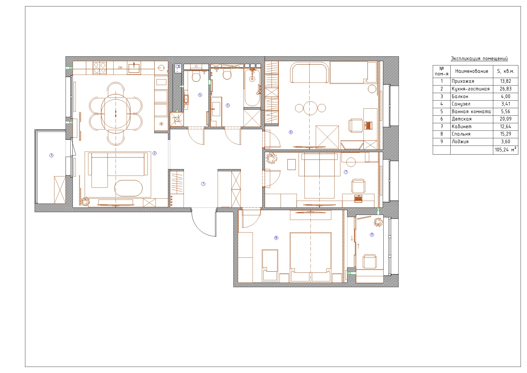
Дизайн интерьера квартиры в ЖК «Ильинойс» в Москве в стиле современный минимализм — 107 м²
блог Artum

Дизайн интерьера квартиры в ЖК «Ильинойс» в Москве в стиле современный минимализм — 107 м²

Задачи проекта

  • Увеличить площадь ванной комнаты и санузла за счет полезной площади коридора.

  • Спроектировать отдельный кабинет с большой рабочей зоной под два монитора.

  • Организовать полноценную постирочную зону.

  • Обустроить скрытые системы хранения во всей квартире.

Планировочное решение

Изначально в квартире была нерационально большая прихожая и два тесных санузла, поэтому мы полностью пересобрали структуру помещений. Часть коридора ушла под расширение мокрых зон, что позволило вписать туда полноценную постирочную и глубокие хозяйственные шкафы. Общее открытое пространство разделили на изолированный кабинет и просторную кухню-гостиную. В итоге получили три полноценные комнаты: спальню с выходом на лоджию, детскую и кабинет.

Кухня-гостиная
Кухня-гостиная
Кухня-гостиная
Кухня-гостиная

Кухня-гостиная

Центром гостиной стала ТВ-зона с настенными панелями и скрытой контурной подсветкой. В подвесную консоль под телевизором мы встроили увлажнитель воздуха с имитацией открытого огня, который заменяет камин. Поставили светлый модульный диван и низкие столики. 

Кухонный гарнитур сделали максимально лаконичным: фасады без ручек, фартук из керамогранита с активным рисунком и встроенная техника в высоких колоннах. Обеденная группа с круглым раздвижным столом и мягкими креслами выделена подвесным светильником-артом.

Спальня с лоджией
Спальня с лоджией
Спальня с лоджией
Спальня с лоджией

Спальня с лоджией

В спальне мы работали с сочетанием мягких фактур и вертикальных линий, которые визуально приподнимают потолок. За изголовьем кровати организовали мягкую подсветку по периметру стены для вечернего отдыха. Рядом с кроватью предусмотрели место для детской кроватки. 

Лоджию утеплили и установили панорамную раздвижную перегородку, организовав там компактный стол-трансформер для работы и большое зеркало.

 

back back

Сколько стоит дизайн-проект и ремонт: реальные примеры с ценами

Портфолио с готовыми проектами и финальными
сметами — без скрытых затрат и неожиданных расходов

Получить портфолио и расчёт
Ванная комната
Ванная комната
Ванная комната
Ванная комната

Ванная комната

Для отделки выбрали крупноформатный керамогранит, который минимизирует количество швов и упрощает уборку. Стеклянная перегородка в зоне душа и световая полоса вдоль ванны визуально расширяют границы помещения. Основное хранение спрятано в высоком шкафу. 

Сантехнику выбрали в темном металле, а мелкие аксессуары скрыли в мебельных панелях. Все технические узлы и коммуникации закрыты гладкими фасадами оливкового оттенка, создавая эффект монолитной стены.

 

Гостевой санузел
Гостевой санузел
Гостевой санузел
Гостевой санузел

Гостевой санузел

В этом помещении мы позволили себе более смелые решения, использовав цветные фасады мебели и камень с выраженной текстурой. Стиральную и сушильную машины установили в колонну и полностью закрыли дверцами. 

Главными акцентами стали зеркало нестандартной формы с подсветкой и картина. Палитра санузла выстраивалась именно вокруг этого светового элемента, объединяя холодные и теплые тона.

 

Детская комната
Детская комната
Детская комната
Детская комната

Детская комната

Комнату проектировали по принципу «растущего» интерьера, чтобы её было легко адаптировать под возраст ребенка. Сейчас это просторная игровая с безопасным мягким покрытием, тактильным текстилем и акцентной фреской на стене. Встроенный шкаф спроектирован так, чтобы ребенок со временем мог сам дотягиваться до нижних полок с игрушками. 

Рабочую зону объединили с туалетным столиком, создав единую линию вдоль окна для естественного освещения. Нейтральная отделка стен позволит менять атмосферу комнаты только за счет декора и мебели без полноценного ремонта.

 

back back

Сколько стоит дизайн-проект и ремонт: реальные примеры с ценами

Портфолио с готовыми проектами и финальными
сметами — без скрытых затрат и неожиданных расходов

Получить портфолио и расчёт
Кабинет
Кабинет
Кабинет
Кабинет

Кабинет

Кабинет ориентирован на комфортную работу программиста, поэтому здесь установлена большая столешница под два монитора. Особая фишка — ростовой стол с механизмом регулировки высоты, который позволяет работать и сидя, и стоя. 

Стены оформили графичными панелями в темных тонах, добавив скрытое освещение. Для размещения гостей предусмотрели раскладной диван и вместительный встроенный шкаф под личные вещи. Интерьер получился строгим и собранным, что помогает лучше концентрироваться на рабочих задачах.

 

Прихожая
Прихожая
Прихожая
Прихожая

Прихожая

Входную зону разделили с помощью двухстороннего шкафа: одна его часть работает на прихожую, а вторая — на жилую зону. Со стороны входа за фасадами спрятан хозблок, а с другой стороны организован полноценный гардероб для верхней одежды. 

Под шкафом оставили зазор с подсветкой, чтобы там мог свободно проезжать и заряжаться робот-пылесос. Для удобства поставили мягкий пуф, открытую вешалку и повесили зеркало в пол. Акцентная стена с арт-объектом при входе сразу дает понять, что интерьер современный и продуманный.

 

Дополнительная информация о проекте

Стиль и цветовая гамма

Интерьер выдержан в современном минимализме с элементами функционального арта. Основная палитра состоит из светлых природных оттенков, которые служат фоном для графичных черных деталей и цветовых акцентов. Контраст создается за счет сочетания матовых поверхностей и выраженных фактур дерева и камня.

Материалы

Износостойкая краска и панели — создают ровное покрытие стен, устойчивое к повседневным нагрузкам в семье с ребенком.

Керамогранит под камень — применен в мокрых зонах и на кухонном фартуке, обеспечивая долговечность и легкий уход.

Инженерная доска — натуральное дерево на полу добавляет тепла и приятных тактильных ощущений в жилых комнатах.

Фрески с авторским принтом — использованы в спальне и детской как основной визуальный акцент, задающий настроение.

Интересные находки

Увлажнитель с эффектом пламени — интегрирован в подвесную мебель, создает уют без сложностей с установкой настоящего камина.

Стол-трансформер на лоджии — совмещает функции рабочего места и столика для хобби, экономя полезную площадь.

Ростовой стол в кабинете — позволяет менять положение тела во время долгой работы за компьютером, что важно для здоровья.

Акцентный свет — светильник в санузле стал основой для подбора всей цветовой гаммы помещения.

Отправьте заявку на консультацию или напишите нам в мессенджер

Мы составим для вас четкий путь от начала до результата, который потребует от вас минимальных усилий

Напишите нам!
Посчитаем точную стоимость вашего проекта