logo
Artum — студия дизайна интерьера
Перезвоните мне
Дизайн интерьера квартиры в ЖК «GloraX Premium Белорусская» в Москве в стиле минимализм — 54 м²
блог Artum

Дизайн интерьера квартиры в ЖК «GloraX Premium Белорусская» в Москве в стиле минимализм — 54 м²

Задачи проекта

  • Объединить кухню с гостиной и прихожей для создания открытого пространства.

  • Обустроить в спальне полноценную гардеробную без потери полезной площади.

  • Разместить в ванной комнате душевую и полноценную зону постирочной.

  • Продумать системы хранения и встроить всю необходимую бытовую технику.

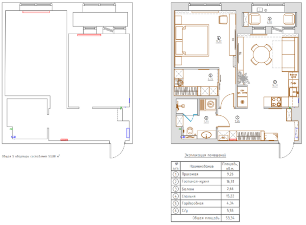
Планировочное решение

Планировочное решение сделало квартиру открытой и логичной. Мы полностью отказались от двери между прихожей и гостиной, заменив её высоким проемом до самого потолка. Это позволило дневному свету проникать вглубь помещений и визуально расширило границы. В спальне спроектировали отдельную гардеробную, вход в которую сместили в сторону от кровати.

Кухня-гостиная
Кухня-гостиная
Кухня-гостиная
Кухня-гостиная

Кухня-гостиная

Кухня и гостиная образуют общее открытое пространство, которое визуально не перегружено лишними деталями. Линию верхних шкафов мы оставили только на одной стене, а зону приготовления пищи выделили керамогранитом под камень до самого потолка. В обеденной части установили черный стол с необычным подстольем. 

ТВ-зона выполнена в цвете графит с разной динамикой текстур, что позволяет избежать визуального шума и сохранить баланс. Синий диван стал главным цветовым акцентом, который разбавляет спокойную базу из серо-бежевых тонов.

Балкон
Балкон

Балкон

Балкон мы оформили в светлой гамме с контрастными темными элементами. Узкое пространство задействовали под функциональную зону: вдоль остекления закрепили широкую столешницу. 

Стены дополнили лаконичными светильниками, которые поддерживают общую стилистику квартиры. В углу поставили небольшое кресло, превратив балкон в место для уединенного отдыха или работы.

Рассчитайте стоимость дизайн-проекта, ремонта и материалов

1 из 5 вопросов

01

Выберите ваш тип жилья

У нас есть архитекторы и дизайнеры интерьеров, которые специализируются на конкретном типе помещений. Мы поможем составить грамотный дизайн-проект.

2 из 5 вопросов

02

Укажите общую площадь помещений

Для больших помещений мы снижаем стоимость закупки материалов за счет наших партнеров - строительных компаний.

м2

3 из 5 вопросов

03

В каком стиле вы хотите интерьер?

Возможно, Вы уже давно интересуетесь интерьером, и пришла пора проанализировать результат. А может быть, Вы пока не знаете, какому стилю отдать предпочтение. Выберите тот стиль, которое вам нравится больше всего.

4 из 5 вопросов

04

Когда вы хотите начать ремонтные работы?

Мы сможем заранее оценить нагруженность своей команды дизайнеров и организовать работу строителей.

5 из 5 вопросов

05

Куда отправить варианты расчета?

После отправки формы вы попадете на страницу, где сможете получить бесплатное руководство "Схема ремонта от А до Я". Мы свяжемся с Вами - и ответим на все вопросы, в течение 15 минут в рабочее время (с 10:00 до 19:00 по МСК).

Спальня с гардеробной
Спальня с гардеробной
Спальня с гардеробной
Спальня с гардеробной

Спальня с гардеробной

В спальне установили встроенное изголовье, которое визуально вытягивает комнату по горизонтали. Стену за кроватью оформили панелями с четкой геометрией и добавили скрытую подсветку. 

Напротив спального места разместили ТВ-панель и консоль, объединив ее с рабочим местом. Стеклянные раздвижные двери в гардеробную выбрали с рельефным тонированием, чтобы мягко разграничить зоны.

Ванная комната
Ванная комната
Ванная комната
Ванная комната

Ванная комната

В ванной комнате мы отказались от ванны в пользу просторной душевой ниши. Раковину выполнили на заказ из керамогранита, интегрировав чашу внутрь подвесного каркаса. Над ней закрепили высокое зеркало с подсветкой, которое доходит до самого потолка. Также здесь удалось уместить постирочный блок со стиральной и сушильной машинами.

Прихожая
Прихожая
Прихожая
Прихожая

Прихожая

Прихожая плавно переходит в жилую зону, сохраняя строгий вид за счет встроенных систем хранения. Мы использовали сочетание графитовых поверхностей и светлых фасадов шкафов во всю высоту стен. Отсутствие лишних дверей и перегородок пропускает сюда естественный свет из окон гостиной. Мягкая скамья в нише делает входную зону удобнее и завершает архитектурный облик помещения.

Дополнительная информация о проекте

Стиль и цветовая гамма

Интерьер выполнен в стиле современный минимализм. Цветовая палитра включает графитовый, синий, серый и серо-бежевый оттенки с добавлением терракотовых акцентов. Такое сочетание позволяет зонировать пространство без использования перегородок.

Материалы

Керамогранит и кварц-паркет — практичные покрытия, которые использованы в мокрых зонах и жилых комнатах.

Краска и декоративная штукатурка — создают качественный однотонный фон для мебели и декора.

Рельефное стекло и металл — применяются в перегородках и освещении для придания интерьеру глубины.

Интересные находки

Теневые рейки — использованы для зонирования стен и подчеркивания геометрии комнат.

Вертикальная выдвижная сушка — спрятана в зоне постирочной для экономии места в ванной.

Диммируемый световой потолок в душевой — позволяет менять интенсивность света от яркого до приглушенного.

Отправьте заявку на консультацию или напишите нам в мессенджер

Мы составим для вас четкий путь от начала до результата, который потребует от вас минимальных усилий

Напишите нам!
Посчитаем точную стоимость вашего проекта