logo
Artum — студия дизайна интерьера
Перезвоните мне
Дизайн интерьера квартиры в ЖК «Дом Достижение» в Москве в стиле современный минимализм
блог Artum

Дизайн интерьера квартиры в ЖК «Дом Достижение» в Москве в стиле современный минимализм

Задачи проекта

  • Обустроить в спальне гардеробную и полноценную зону с рабочим столом.

  • Выделить место для хранения крупной бытовой техники.

  • Превратить лоджию в лаунж-зону и местом для хранения сноубордов.

  • Спланировать детскую «на вырост» с возможностью трансформации под нужды ребенка.

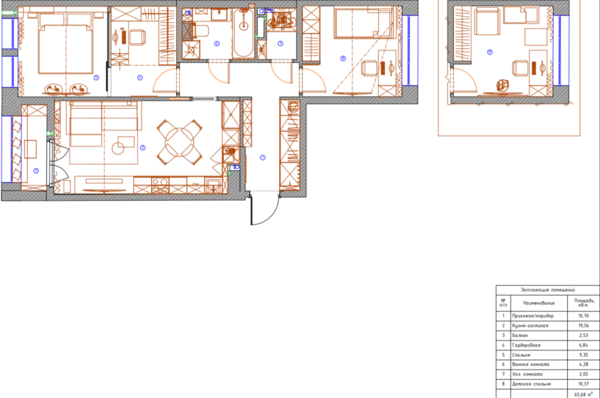
Планировочное решение

Основной контур стен от застройщика нам подошел, поэтому мы сосредоточились на детальной адаптации пространства. Чтобы установить откатную дверь между прихожей и гостиной, мы демонтировали старую перегородку и возвели новую. В спальне построили дополнительные стены для формирования гардеробного отсека. Все инженерные узлы и коллекторы спрятали внутри мебели, сохранив к ним быстрый доступ для обслуживания.

Кухня-гостиная
Кухня-гостиная
Кухня-гостиная
Кухня-гостиная

Кухня-гостиная

Кухню укомплектовали всей необходимой базой: от встроенной кофемашины до винного холодильника. Обеденный стол на четверых поставили так, чтобы он обозначал границу зон, но не мешал проходу к панорамному окну. 

Акцентную стену в ТВ-зоне облицевали панелями из натурального ореха и дизайнерского шпона. Терракотовый диван добавил цвета сдержанной базе, а рядом с ним встроили узкий стеллаж для книг и мелочей.

Лоджия
Лоджия

Лоджия

Холодную зону превратили в место для отдыха с мягким подиумом, который растянулся вдоль всего остекления. В торцевой части спроектировали высокий шкаф: там хранятся сноуборды и аксессуары для кальяна. 

Для стен выбрали декоративную штукатурку, которая спокойно переносит яркое солнце и влажность. Завершает композицию компактный столик от локального бренда для утреннего кофе или работы с ноутбуком.

back back

Сколько стоит дизайн-проект и ремонт: реальные примеры с ценами

Портфолио с готовыми проектами и финальными
сметами — без скрытых затрат и неожиданных расходов

Получить портфолио и расчёт
Спальня с гардеробной
Спальня с гардеробной
Спальня с гардеробной
Спальня с гардеробной

Спальня с гардеробной

Спальню оформили в сдержанных тонах с мягким освещением от трековых систем и подсветки в изголовье. Парящая кровать из дерева с терракотовым изголовьем и фактурный плед добавляют комнате тепла.

Гардеробную отделили от спальни стильной стеклянной перегородкой, создающей ощущение легкости. Внутри предусмотрели продуманную систему хранения и полноценное рабочее место, что позволило максимально функционально использовать площадь.

Ванная комната
Ванная комната
Ванная комната
Ванная комната

Ванная комната

Санузел сделали темным и брутальным по просьбе заказчиков, используя микроцемент и керамогранит под металл. Раковину изготовили на заказ из того же материала, что и отделка стен, добиваясь эффекта монолита. 

Смесители вмонтировали прямо в зеркальное полотно, за которым спрятали контурный свет. Громоздкий бойлер на 100 литров разместили в коробе над инсталляцией, закрыв его мебельным фасадом.

Рассчитайте стоимость дизайн-проекта, ремонта и материалов

1 из 5 вопросов

01

Выберите ваш тип жилья

У нас есть архитекторы и дизайнеры интерьеров, которые специализируются на конкретном типе помещений. Мы поможем составить грамотный дизайн-проект.

2 из 5 вопросов

02

Укажите общую площадь помещений

Для больших помещений мы снижаем стоимость закупки материалов за счет наших партнеров - строительных компаний.

м2

3 из 5 вопросов

03

В каком стиле вы хотите интерьер?

Возможно, Вы уже давно интересуетесь интерьером, и пришла пора проанализировать результат. А может быть, Вы пока не знаете, какому стилю отдать предпочтение. Выберите тот стиль, которое вам нравится больше всего.

4 из 5 вопросов

04

Когда вы хотите начать ремонтные работы?

Мы сможем заранее оценить нагруженность своей команды дизайнеров и организовать работу строителей.

5 из 5 вопросов

05

Куда отправить варианты расчета?

После отправки формы вы попадете на страницу, где сможете получить бесплатное руководство "Схема ремонта от А до Я". Мы свяжемся с Вами - и ответим на все вопросы, в течение 15 минут в рабочее время (с 10:00 до 19:00 по МСК).

Детская комната
Детская комната
Детская комната
Детская комната

Детская комната

Пространство для ребенка подготовили так, чтобы через пару лет не пришлось делать ремонт заново. В комнате разместили: диван, кроватку, игровую зона и кресло для родителей. 

Стену украсили бесшовным панно, которое задает настроение, но легко демонтируется в будущем. Позже на месте игровой зоны легко встанет кровать стандартного размера и письменный стол.

Прихожая
Прихожая
Прихожая
Прихожая

Прихожая

Входную зону оставили светлой, добавив глубокий синий цвет на фасадах обувного шкафа. Электрический щиток переносить не стали, а просто встроили его в верхнюю секцию гардероба. 

В мебельной группе предусмотрели нишу с мягкой подсветкой для ключей и удобное место, чтобы присесть. На полу уложили износостойкий кварц-винил под дерево, который не боится влаги и грязи с улицы.

Дополнительная информация о проекте

Стиль и цветовая гамма

Интерьер выдержан в современном минимализме с акцентом на функциональность. За основу взяли нейтральные серые и бежевые оттенки, которые работают фоном для выразительной текстуры дерева. Характер пространству задают терракотовый диван в гостиной и глубокий синий шкаф в прихожей.

Материалы

Дизайнерский шпон и орех — использованы для отделки стен и создания мебели, добавляют интерьеру статусности.

Микроцемент и керамогранит под металл — применены в ванной для создания бесшовных поверхностей и индустриальной эстетики.

Кварц-винил — выбран в качестве напольного покрытия за его прочность и приятную древесную фактуру.

Стекло и металл — раздвижные перегородки и системы хранения добавляют воздуха и визуально расширяют комнаты.

Интересные находки

Многофункциональный стеллаж — конструкция у дивана не только хранит книги, но и скрывает радиатор, бризер и кондиционер.

Двусторонний шкаф в спальне — разделяет зоны и одновременно служит полками для парфюмерии с одной стороны и стеллажом у компьютера с другой.

Хозблок с нишей для питомцев — отдельное помещение, где спрятаны лотки, пылесос, отпариватель и скрытый доступ к коллекторам.

Раковина-монолит — индивидуальное изделие из керамогранита, которое визуально сливается со стенами санузла.

Отправьте заявку на консультацию или напишите нам в мессенджер

Мы составим для вас четкий путь от начала до результата, который потребует от вас минимальных усилий

Напишите нам!
Посчитаем точную стоимость вашего проекта