logo
Artum — студия дизайна интерьера
Перезвоните мне
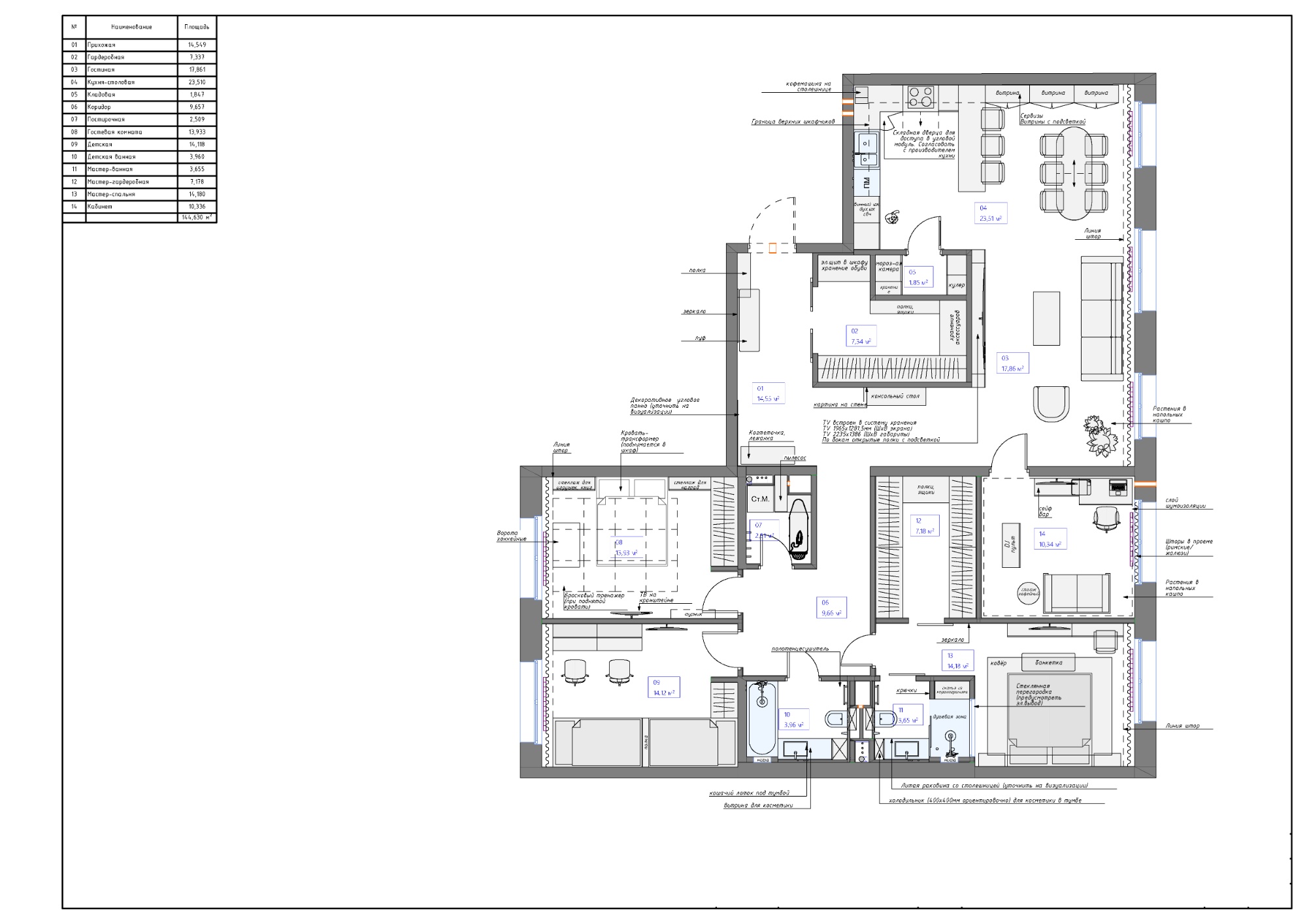
Дизайн-проект квартиры в ЖК «Аструм (Astrum)» в Санкт-Петербурге
блог Artum

Дизайн-проект квартиры в ЖК «Аструм (Astrum)» в Санкт-Петербурге

Задачи проекта

Вот какие задачи стояли перед дизайн-проектом квартиры в ЖК «Аструм» и как они влияют на интерьер:

  • сделать интерьер в стиле современной классики и минимализма с элементами ар-деко;

  • сохранить исходную высоту потолков при монтаже инженерных систем;

  • спроектировать кабинет с шумоизоляцией;

  • адаптировать дизайн квартиры под сценарии жизни семьи с двумя сыновьями-хоккеистами.

Планировочное решение

Мы сохранили исходную логику перегородок от застройщика, так как планировочное решение «Аструм» уже включало разводку «умного дома». Основные изменения коснулись оптимизации зон под хранение: за счет площади в коридоре мы расширили прихожую и добавили скрытую кладовую, а в спальне выделили вместительную гардеробную. Мы грамотно использовали всю полезную площадь и переоборудовали одну из комнат в изолированную игровую, бережно сохранив покой в приватном блоке родителей.

Кухня-гостиная в ЖК «Аструм»
Кухня-гостиная в ЖК «Аструм»
Кухня-гостиная в ЖК «Аструм»
Кухня-гостиная в ЖК «Аструм»

Кухня-гостиная в ЖК «Аструм»

 
Как оформить кухню-гостиную в квартире в ЖК «Аструм», чтобы пространство выглядело цельно и оставалось удобным? Мы сделали ставку на премиальное зонирование и палитру благородных фактур. 

 

Гостиная

Центральную общую зону собрали на базе бежевых тонов и натурального дерева — шпона ореха. В центре внимания — камин с порталом из черного глянца и встроенный экран, заменяющий привычную ТВ-зону

Потолочные светильники в виде латунных колец и трековые системы визуально поднимают потолок. Низкий модульный диван позволяет удобно расположиться всей семье, создавая эргономичный дизайн интерьера.

Кухня
Кухня
Кухня
Кухня

Кухня

В зоне готовки установили кухонный гарнитур, где скомбинировали светлые фасады и фартук из вертикальной глянцевой плитки. Рабочий остров с рифленым основанием служит местом для быстрых перекусов. 

Обеденную группу выделили овальным столом и высоким шкафом-витриной с подсветкой для посуды. Натуральный камень столешницы и латунная фурнитура подчеркивают интерьер квартиры

 

Сколько стоит дизайн-проект и ремонт квартиры в ЖК «Аструм» и где посмотреть реальные примеры с ценами?

Чтобы узнать, сколько стоит дизайн квартиры конкретно для вашей планировки, оставьте заявку на расчет, и мы подготовим точную смету. Посмотреть готовые ремонты можно в нашем портфолио.

Мастер-спальня в ЖК «Аструм»
Мастер-спальня в ЖК «Аструм»
Мастер-спальня в ЖК «Аструм»
Мастер-спальня в ЖК «Аструм»

Мастер-спальня в ЖК «Аструм»

В мастер-спальне родителей использовали спокойную палитру с акцентом на радиальный рисунок панелей за изголовьем кровати, который формирует дорогой дизайн спальни. Зону гардеробной отделили стеклянной тонированной перегородкой, которая пропускает свет, но скрывает содержимое шкафов. 

Высокие двери «в потолок» и вертикальные линии шпона делают помещение визуально выше. Кровать с мягкой обивкой дополнена тумбами из темного дерева и парными дизайнерскими светильниками.

back back

Сколько стоит дизайн-проект и ремонт: реальные примеры с ценами

Портфолио с готовыми проектами и финальными
сметами — без скрытых затрат и неожиданных расходов

Получить портфолио и расчёт
Другие помещения проекта
Другие помещения проекта
Другие помещения проекта
Другие помещения проекта

Другие помещения проекта

Какие решения для кабинета, детской, ванной и прихожей лучше всего работают в квартире ЖК «Аструм»? Рассказываем, как мы обустроили остальные зоны для большой семьи.

 

Ванная комната в квартире в ЖК «Аструм» 

Для главной ванной выбрали смелое решение — отделку в насыщенном кирпичном цвете. Стены из керамогранита под камень здесь сочетаются с теплыми фасадами из ореха и латунными деталями. 

Душевую зону сделали полностью стеклянной, чтобы не дробить пространство. Подвесная тумба с рифленой фактурой и каскадный светильник добавляют интерьеру индивидуальности.

Гостевой санузел
Гостевой санузел
Гостевой санузел
Гостевой санузел

Гостевой санузел

Второй гостевой санузел оформили в светло-кофейных тонах с использованием крупноформатного мрамора. Внутри душевой предусмотрели нишу с подсветкой, где удобно хранить косметику и принадлежности. Темная тумба и лаконичные смесители поддерживают строгий современный стиль.

Постирочная
Постирочная
Постирочная
Постирочная

Постирочная

Для бытовых задач выделили отдельный блок, где в колонну установлены стиральная и сушильная машины. Здесь предусмотрели секции, где скрыта хозяйственная постирочная утварь: химия, пылесос и гладильная доска. Все технические процессы сосредоточены в одном месте, что помогает поддерживать порядок в остальных комнатах.

Детская комната
Детская комната
Детская комната
Детская комната

Детская комната

Детская комната для двух мальчиков спроектирована как функциональное и игровое пространство. Учебная зона оборудована двумя столами с регулировкой высоты и удобными креслами. Яркий игровой акцент создают неоновые светильники на стене в виде Марио и Гриба. 

Оригинальное оформление стен с росписью на тему космоса и графичными формами добавляет динамики и подчеркивает увлечения детей. Зона отдыха с диванами и дизайнерской игрушкой расположена напротив большого окна с блэкаут-жалюзи.

Рассчитайте стоимость дизайн-проекта, ремонта и материалов

1 из 5 вопросов

01

Выберите ваш тип жилья

У нас есть архитекторы и дизайнеры интерьеров, которые специализируются на конкретном типе помещений. Мы поможем составить грамотный дизайн-проект.

2 из 5 вопросов

02

Укажите общую площадь помещений

Для больших помещений мы снижаем стоимость закупки материалов за счет наших партнеров - строительных компаний.

м2

3 из 5 вопросов

03

В каком стиле вы хотите интерьер?

Возможно, Вы уже давно интересуетесь интерьером, и пришла пора проанализировать результат. А может быть, Вы пока не знаете, какому стилю отдать предпочтение. Выберите тот стиль, которое вам нравится больше всего.

4 из 5 вопросов

04

Когда вы хотите начать ремонтные работы?

Мы сможем заранее оценить нагруженность своей команды дизайнеров и организовать работу строителей.

5 из 5 вопросов

05

Куда отправить варианты расчета?

После отправки формы вы попадете на страницу, где сможете получить бесплатное руководство "Схема ремонта от А до Я". Мы свяжемся с Вами - и ответим на все вопросы, в течение 15 минут в рабочее время (с 10:00 до 19:00 по МСК).

Игровая комната
Игровая комната
Игровая комната
Игровая комната

Игровая комната

Это пространство полностью адаптировано под хоккейные тренировки: на стенах и полу использовали максимально прочные антивандальные материалы. Мебели здесь минимум, чтобы оставить место для активных движений и бросков шайбы. 

Специальные системы хранения позволяют держать тяжелую экипировку и клюшки в одном месте. Спортивная стенка дополняет зону, превращая комнату в полноценный домашний спортзал.

Кабинет
Кабинет
Кабинет
Кабинет

Кабинет

В кабинете предусмотрели качественную звукоизоляцию по запросу заказчика Интерьер выполнен в темных тонах с черным реечным декором, наливным полом и графитовым потолком. Здесь установили диджейский пульт с возможностью свободного обхода со всех сторон. Диско-шар и вертикальные световые линии создают идеальную атмосферу для творчества.

Прихожая в квартире в ЖК «Аструм»
Прихожая в квартире в ЖК «Аструм»
Прихожая в квартире в ЖК «Аструм»
Прихожая в квартире в ЖК «Аструм»

Прихожая в квартире в ЖК «Аструм»

Прихожая встречает отделкой из черного камня и панелями из ореха.  Акцентное зеркало в полный рост и тонкая консоль помогают быстро собраться перед выходом, а синяя скамья вносит цветовой акцент в интерьер этой трехкомнатной квартиры

Напротив расположили глубокий встроенный шкаф для верхней одежды с фасадами из стекла и камня. Ярким пятном стала синяя скамья, которая вносит цветовой акцент в сдержанную гамму коридора.

Дополнительная информация о проекте

Стиль, материалы и решения для квартиры в ЖК «Аструм»

Какой стиль и палитра лучше подходят для квартиры в ЖК «Аструм», чтобы интерьер выглядел цельно и дорого? 

Интерьер выполнен в стиле современный минимализм с элементами ар-деко. Основа цветовой гаммы интерьера — бежевый, черный, охра и глубокий синий. Сложные фактуры дерева и камня создают базу, а латунь добавляет пространству визуальной плотности.

Материалы

Какие материалы использовать в квартире ЖК «Аструм», чтобы интерьер был практичным и визуально цельным? 

  • Натуральный шпон ореха и МДФ-панели — использованы для отделки стен и создания встроенной мебели в едином стиле.
  • Керамогранит под камень и глянцевая плитка — практичные покрытия для зон с высокой нагрузкой (кухня, прихожая, санузлы).
  • Стекло и металл — перегородки и латунные детали, которые работают на стилистику ар-деко. 
  • Антивандальные покрытия и наливной пол — применены в игровой и кабинете для защиты поверхностей от повреждений.
Интересные находки

Какие нестандартные интерьерные решения можно использовать в квартире ЖК «Аструм», чтобы проект выглядел индивидуально и практично?

 В этом проекте мы применили следующие идеи дизайна квартиры

  • Акцентная картина в прихожей — масштабное полотно, которое собирает в себе все оттенки, использованные в отделке квартиры.
  • Стеклянная перегородка в спальне — выполнена из спецстекла, которое отделяет гардеробную.
  • Хоккейная игровая — помещение со сверхпрочной отделкой, позволяющее детям полноценно тренироваться дома.
  • Диджейская зона в кабинете — островное расположение пульта с возможностью обхода со всех сторон для удобства работы со звуком.
От чего зависит стоимость дизайн-проекта квартиры в ЖК «Аструм»

Итоговая стоимость дизайна интерьера зависит от площади квартиры, количества визуализаций и состава рабочей документации. Также на бюджет влияет финальная комплектация объекта, после которой формируется точная смета на ремонт и дизайн под ключ. 

Где заказать дизайн-проект квартиры в ЖК «Аструм», чтобы получить понятную концепцию и расчет? 

Если вам необходим опытный дизайнер интерьера, оставьте заявку на консультацию. Мы выполним точный расчет стоимости, подберем материалы и реализуем безупречный дизайн-проект.

Отправьте заявку на консультацию или напишите нам в мессенджер

Мы составим для вас четкий путь от начала до результата, который потребует от вас минимальных усилий

Напишите нам!
Посчитаем точную стоимость вашего проекта