logo
Artum — студия дизайна интерьера
Перезвоните мне
Дизайн-проект квартиры в ЖК «Alpen (Альпен)» в Санкт-Петербурге
блог Artum

Дизайн-проект квартиры в ЖК «Alpen (Альпен)» в Санкт-Петербурге

Задачи проекта

Предлагаем посмотреть, какие задачи стояли перед дизайн-проектом квартиры в ЖК «Alpen» и как они влияют на интерьер:

  • сделать интерьер в стиле современной классики;

  • задействовать 5-метровую высоту потолков под второй ярус в детской;

  • скрыть электроприборы и лишнюю подсветку ради «чистого» дизайна интерьера квартиры;

  • создать визуально эстетичное пространство с уникальным декором для семейных фотосессий.

  • увеличить полезную площадь комнат за счет скрытых ниш и пустых коробов;

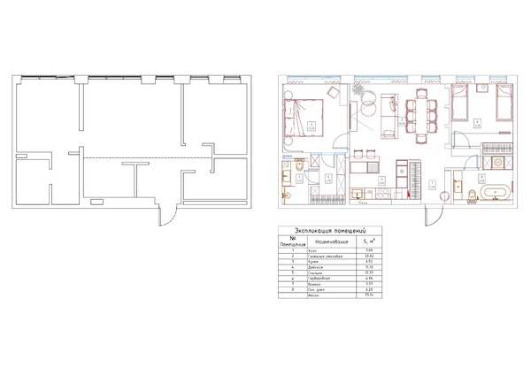
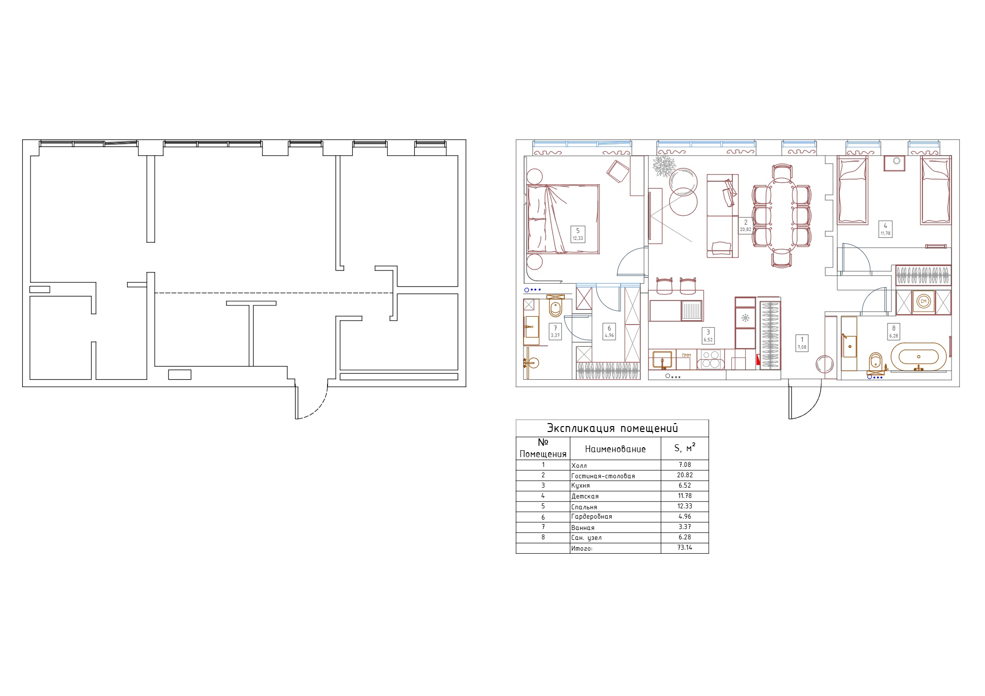
Планировочное решение

Мы провели минимальную перепланировку квартиры в ЖК «Alpen» лишь для исправления геометрии комнат. После сноса коробов от застройщика обнаружились пустые места, которые мы отдали под расширение спальни и гардероба. Кухню немного увеличили, чтобы выровнять границы гостиной. В детской перестроили перегородки так, чтобы компактно вписать лестницу на второй уровень.

Кухня-гостиная
Кухня-гостиная
Кухня-гостиная
Кухня-гостиная

Кухня-гостиная

 

Как оформить кухню-гостиную в квартире ЖК «Alpen», чтобы пространство выглядело цельно и оставалось удобным?

Разрабатывая этот интерьер квартиры, мы сделали ставку на зонирование и единую палитру благородных фактур. Центром квартиры стала гостиная с модульным диваном, где удобно собираться всей семьей и принимать друзей. Главным акцентом стены стали арочные ниши со стеклянными полками, которые служат фоном для фото.

Мы отказались от ТВ-зоны, оставив место для живого общения и отдыха. Мебель расставили свободно, чтобы владельцы могли легко добавлять детали, привезенные из путешествий.

 

 

Кухня
Кухня

Кухня

Кухню расширили и оформили в светлых тонах с использованием мраморных фактур на столешницах. Кухонный остров заменяет обеденный стол для быстрых завтраков детей и комфортно вмещает двоих взрослых. 

Всю бытовую технику встроили в колонны кухонного гарнитура, чтобы сохранить чистоту фасадов и строгую геометрию. Из-за особенностей потолка мы продлили перегородку между холлом и кухней, сделав этот переход логичным, а сам дизайн интерьера полностью законченным.

 

Сколько стоит дизайн-проект и ремонт квартиры в ЖК «Alpen» и где посмотреть реальные примеры с ценами?

Посмотреть готовый ремонт и дизайн квартиры в «Alpen» можно в нашем портфолио. А чтобы узнать точную стоимость дизайна интерьера для вашей планировки — оставьте заявку на расчет и мы подготовим прозрачную смету.

back back

Сколько стоит дизайн-проект и ремонт: реальные примеры с ценами

Портфолио с готовыми проектами и финальными
сметами — без скрытых затрат и неожиданных расходов

Получить портфолио и расчёт
Спальня в ЖК «Alpen»
Спальня в ЖК «Alpen»
Спальня в ЖК «Alpen»
Спальня в ЖК «Alpen»

Спальня в ЖК «Alpen»

Чтобы спальня была спокойной, функциональной и не выглядела перегруженной, установили декоративную фальш-стену за изголовьем кровати и дополнили её мягким ночным светом. Около окна обустроили зону туалетного столика с арочными зеркалами, которые повторяют общую архитектуру проекта. 

Гардеробную отделили прозрачными раздвижными дверями, чтобы сохранить объем и не загромождать комнату шкафами. Дизайн спальни оставили нейтральным, предусмотрев места под новые предметы интерьера и личные вещи.

Другие помещения проекта
Другие помещения проекта
Другие помещения проекта
Другие помещения проекта

Другие помещения проекта

Какие решения для кабинета, детской, ванной и прихожей лучше всего работают в квартире ЖК «Alpen»? Этот проект демонстрирует, что дизайн трехкомнатной квартиры должен быть гибким.

Детская комната

Продуманная детская спроектирована с учетом высоты потолков и потребностей троих детей. На втором ярусе расположили спальное место, к которому ведет устойчивая деревянная лестница. 

Нижний уровень отвели под активные игры, установив там мягкие диваны и обустроив рабочее место для учебы. Встроенный шкаф с арочным фасадом помогает убрать игрушки и книги, поддерживая порядок в комнате.

 

Ванная комната в ЖК «Alpen»
Ванная комната в ЖК «Alpen»
Ванная комната в ЖК «Alpen»
Ванная комната в ЖК «Alpen»

Ванная комната в ЖК «Alpen»

В основной ванной мы использовали теплый терракотовый оттенок в сочетании с темной отдельностоящей ванной. За счет демонтажа коммуникационных коробов в стене появилась глубокая арка для хранения. 

Вместо плитки во влажных зонах применили микроцемент, что сделало отделку бесшовной и практичной. Мраморные элементы и лепнина связывают санузел по стилю с остальной частью квартиры.

 

Рассчитайте стоимость дизайн-проекта, ремонта и материалов

1 из 5 вопросов

01

Выберите ваш тип жилья

У нас есть архитекторы и дизайнеры интерьеров, которые специализируются на конкретном типе помещений. Мы поможем составить грамотный дизайн-проект.

2 из 5 вопросов

02

Укажите общую площадь помещений

Для больших помещений мы снижаем стоимость закупки материалов за счет наших партнеров - строительных компаний.

м2

3 из 5 вопросов

03

В каком стиле вы хотите интерьер?

Возможно, Вы уже давно интересуетесь интерьером, и пришла пора проанализировать результат. А может быть, Вы пока не знаете, какому стилю отдать предпочтение. Выберите тот стиль, которое вам нравится больше всего.

4 из 5 вопросов

04

Когда вы хотите начать ремонтные работы?

Мы сможем заранее оценить нагруженность своей команды дизайнеров и организовать работу строителей.

5 из 5 вопросов

05

Куда отправить варианты расчета?

После отправки формы вы попадете на страницу, где сможете получить бесплатное руководство "Схема ремонта от А до Я". Мы свяжемся с Вами - и ответим на все вопросы, в течение 15 минут в рабочее время (с 10:00 до 19:00 по МСК).

Гостевой санузел
Гостевой санузел
Гостевой санузел
Гостевой санузел

Гостевой санузел

Гостевой санузел выполнен в спокойной природной гамме с акцентным полом из мрамора. Мы установили подвесной унитаз и стеклянную перегородку, чтобы не дробить площадь небольшого помещения. 

Зону раковины оформили круглым зеркалом и вертикальными нишами для мелочей. Деревянные панели на стенах добавляют фактурности и делают интерьер более основательным.

Прихожая
Прихожая
Прихожая
Прихожая

Прихожая

Функциональная прихожая встречает светлыми стенами с молдингами и практичным темным полом из керамогранита. Скрытые двери под покраску задекорировали лепниной, чтобы сохранить рисунок стен без разрывов. 

Для большой семьи предусмотрели удобную скамью у входа и вместительную систему хранения с медными ручками. Пространство получилось функциональным и легко подстраивается под задачи владельцев.

Дополнительная информация о проекте

Стиль, материалы и решения для квартиры в ЖК «Alpen»

Какой стиль и палитра лучше подходят для квартиры, чтобы интерьер выглядел цельно и дорого? 

Мы реализовали этот дизайн квартиры в стиле современной классики с элементами модерна. Основная палитра состоит из светлых нейтральных и холодных тонов, которые визуально увеличивают площадь. В качестве контрастов выступают терракотовые оттенки, темные полы и черные элементы сантехники.  

 

Материалы

Какие материалы использовать в квартире ЖК «Alpen», чтобы интерьер был практичным и визуально цельным? 

  • Светлая краска и ажурный гипсополимерный декор — формируют классический рельеф на стенах и скрытых дверях.

  • Наборный модульный паркет — уложен в жилых зонах, добавляя интерьеру традиционности и устойчивости.

  • Микроцемент — использован во влажных зонах как практичная альтернатива стандартной плитке.

  • Мрамор и натуральное дерево — в отделке квартиры эти материалы применяются для столешниц и акцентных панелей.

Интересные находки

Какие нестандартные интерьерные решения можно использовать в квартире ЖК «Alpen», чтобы проект выглядел индивидуально и практично?

  • Большие встроенные арки в перегородках — помогли эстетично спрятать несущие конструкции для второго яруса.
  • Лепнина на скрытых дверях — позволила не разрывать рисунок молдингов и сохранить симметрию в дизайне квартиры ЖК «Alpen»
  • Использование «пустот» от застройщика — после демонтажа гипрока удалось создать дополнительные ниши для хранения.
  • Вертикальные медные ручки и панели в прихожей — визуально увеличивают высоту помещений и выступают как интересные решения интерьера.
От чего зависит стоимость дизайн-проекта квартиры в ЖК «Alpen»

Итоговая стоимость дизайна интерьера всегда рассчитывается индивидуально. Она напрямую зависит от общей площади объекта, сложности планировки, выбранных материалов, состава проекта, а также количества визуализаций и рабочей документации.

Кроме того, на бюджет существенно влияет финальная комплектация комнат, последующий ремонт и авторское сопровождение. Только после детального согласования всех этих параметров формируется окончательная смета на комплексный ремонт и дизайн под ключ.

Где заказать дизайн-проект квартиры в ЖК «Alpen», чтобы получить понятную концепцию и расчет?

Вы можете прямо сейчас заказать дизайн интерьера квартиры Alpen на бесплатной консультации в студии Artum. И получить точный расчет стоимости проекта под ваши задачи и бюджет.

Отправьте заявку на консультацию или напишите нам в мессенджер

Мы составим для вас четкий путь от начала до результата, который потребует от вас минимальных усилий

Напишите нам!
Посчитаем точную стоимость вашего проекта