logo
Artum — студия дизайна интерьера
Перезвоните мне
Дизайн интерьера квартиры в ЖК «Afi Tower (Афи Тауэр)» в Москве в стиле современный минимализм — 106 м²
блог Artum

Дизайн интерьера квартиры в ЖК «Afi Tower (Афи Тауэр)» в Москве в стиле современный минимализм — 106 м²

Задачи проекта

  • Организовать отдельную полноценную спальню для старшего сына.

  • Обустроить два рабочих места для супругов в зоне спальни.

  • Сделать оба санузла доступными из общего коридора.

  • Спроектировать дополнительную систему хранения в кухонной зоне.

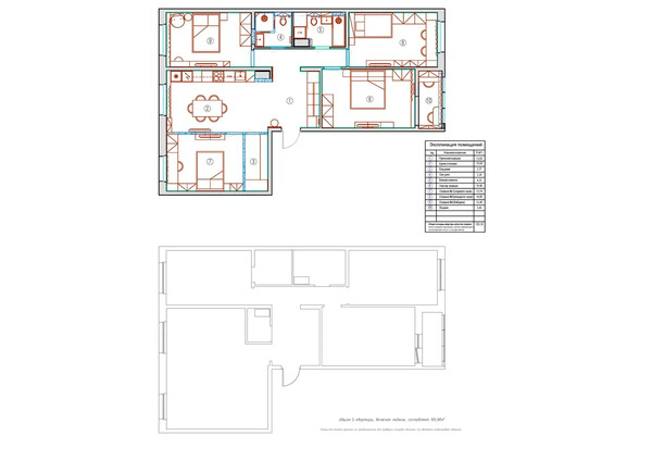
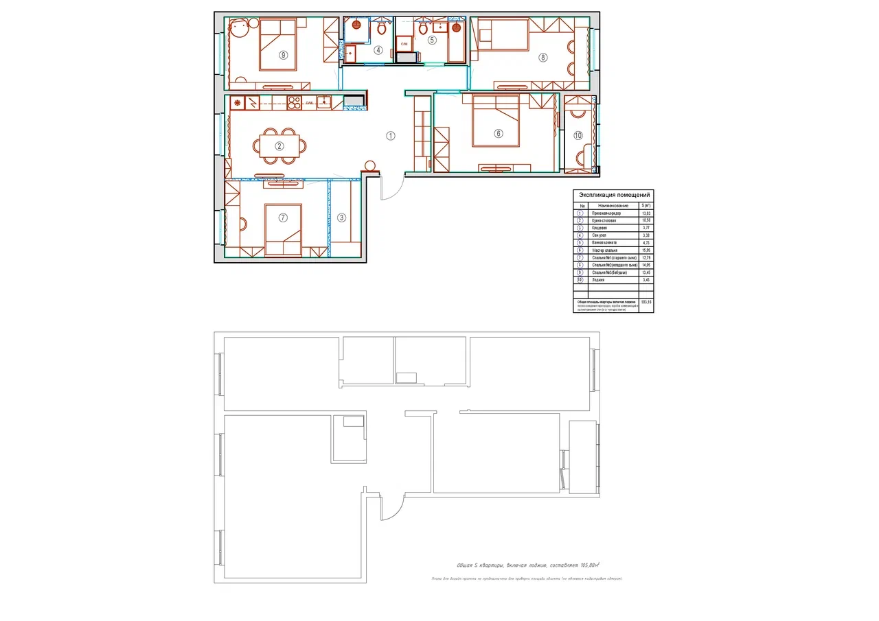
Планировочное решение

Изначально в квартире не было места для кладовой и отдельной комнаты для старшего сына. Пространство разделили перегородкой: так удалось выделить полноценную спальню и найти место для хозблока со стороны кухни. Конфигурацию санузлов тоже изменили — убрали проход из спальни и сделали входы в обе мокрые зоны из коридора. Бывшую лоджию утеплили и объединили с комнатой родителей, организовав там два полноценных рабочих места.

Кухня
Кухня
Кухня
Кухня

Кухня

Кухонная зона выполнена в темных серых и бежевых тонах, которые перекликаются с общим стилем квартиры. Гарнитур выстроили в одну линию, спрятав технику за высокими пеналами и фасадами без ручек. Для фартука и столешницы выбрали износостойкий керамогранит с текстурой камня, чтобы рабочая поверхность выглядела монолитно. 

Обеденную группу из массивного стола и мягких кресел в приглушенно-зеленом цвете расположили в центре. За освещение отвечают трековые системы и линейный светильник над столом, что позволяет настраивать разную яркость под время суток.

Спальня с кабинетом
Спальня с кабинетом
Спальня с кабинетом
Спальня с кабинетом

Спальня с кабинетом

В интерьере мастер-спальни мы использовали глубокие антрацитовые и кофейные оттенки. Изголовье кровати выделили тонкими вертикальными рейками, широкоформатными панелями и скрытой контурной подсветкой. Напротив спального места закрепили подвесную ТВ-тумбу, сохранив визуальную легкость и свободное пространство на полу. 

Присоединенная зона балкона стала логичным продолжением комнаты, где мы обустроили два рабочих стола. Благодаря единой отделке кабинет не выбивается из общей концепции квартиры.

Комната подростка
Комната подростка
Комната подростка
Комната подростка

Комната подростка

Для старшего сына создали лаконичный интерьер в графитовых и древесных оттенках с акцентом на четкую геометрию. Здесь установили кровать, рабочий стол у окна и продумали системы хранения для личных вещей и учебников.

back back

Сколько стоит дизайн-проект и ремонт: реальные примеры с ценами

Портфолио с готовыми проектами и финальными
сметами — без скрытых затрат и неожиданных расходов

Получить портфолио и расчёт
Детская комната
Детская комната
Детская комната
Детская комната

Детская комната

Вторая детская получилась более активной за счет акцентной стены с изображением космонавта и контрастных синих деталей. В этой комнате предусмотрели много открытых полок для игрушек и книг, сохранив при этом удобное место для занятий. Пространства спроектировано «на вырост», чтобы интерьер оставался актуальным через несколько лет.

Ванная комната
Ванная комната
Ванная комната
Ванная комната

Ванная комната

Основную ванную облицевали крупноформатным керамогранитом под камень и добавили вставки с текстурой дерева. В помещении удалось разместить и ванну, и отдельный душ за стеклянной перегородкой, сохранив при этом место для широкой тумбы с раковиной.

Рассчитайте стоимость дизайн-проекта, ремонта и материалов

1 из 5 вопросов

01

Выберите ваш тип жилья

У нас есть архитекторы и дизайнеры интерьеров, которые специализируются на конкретном типе помещений. Мы поможем составить грамотный дизайн-проект.

2 из 5 вопросов

02

Укажите общую площадь помещений

Для больших помещений мы снижаем стоимость закупки материалов за счет наших партнеров - строительных компаний.

м2

3 из 5 вопросов

03

В каком стиле вы хотите интерьер?

Возможно, Вы уже давно интересуетесь интерьером, и пришла пора проанализировать результат. А может быть, Вы пока не знаете, какому стилю отдать предпочтение. Выберите тот стиль, которое вам нравится больше всего.

4 из 5 вопросов

04

Когда вы хотите начать ремонтные работы?

Мы сможем заранее оценить нагруженность своей команды дизайнеров и организовать работу строителей.

5 из 5 вопросов

05

Куда отправить варианты расчета?

После отправки формы вы попадете на страницу, где сможете получить бесплатное руководство "Схема ремонта от А до Я". Мы свяжемся с Вами - и ответим на все вопросы, в течение 15 минут в рабочее время (с 10:00 до 19:00 по МСК).

Гостевой санузел
Гостевой санузел
Гостевой санузел
Гостевой санузел

Гостевой санузел

Гостевой санузел оформили в более строгом стиле с использованием плитки под бетон и вертикальных зеленых акцентов, реализованных с помощью узкой глянцевой плитки, напоминающей бамбук. 

Все инженерные узлы и инсталляции скрыли в нишах, которые дополнительно подсветили для удобства и визуальной глубины. Душевую зону здесь оборудовали встроенным тропическим душем для максимального комфорта.

Гостевая комната
Гостевая комната
Гостевая комната
Гостевая комната

Гостевая комната

Комнату подготовили специально для визитов бабушки, выбрав максимально спокойную светлую гамму. Стены задекорировали обоями с деликатным растительным принтом, а кровать подобрали с мягким текстильным изголовьем в кремовом цвете. 

У окна организовали зону отдыха с туалетным столиком и удобным пуфом для чтения или ухода за собой. Золотистая фурнитура и мягкое освещение добавляют интерьеру тепла, не перегружая его лишними деталями.

Прихожая
Прихожая
Прихожая
Прихожая

Прихожая

Прихожая спроектирована в стиле современного минимализма с акцентом на чистые линии и строгую геометрию мебельных конструкций. В отделке преобладают тёмные серые и бежевые тона, которые дополнены природной текстурой дерева и контурной подсветкой под потолком. 

Вместительные встроенные шкафы со скрытыми ручками образуют единую монолитную плоскость, позволяя спрятать все бытовые вещи. Визуальный объем помещения увеличили за счет большого зеркала, а фактурная стена и ярко-изумрудный пуф стали главными декоративными деталями интерьера.

Дополнительная информация о проекте

Стиль и цветовая гамма

Интерьер выдержан в стиле современного минимализма. Основная палитра состоит из глубоких серых и бежевых оттенков. Темные акценты добавляют пространству графичности и подчеркивают архитектурные линии комнат. Такое цветовое сочетание практично в эксплуатации и долго остается актуальным, не надоедая владельцам.

Материалы

Краска и декоративная штукатурка — использованы для отделки стен, чтобы создать матовые поверхности с интересной фактурой. 

Керамогранит и кварц-винил — выбраны в качестве напольных покрытий из-за их высокой прочности и легкости в уборке. 

3D-панели — применяются для создания встроенных систем хранения и акцентных вертикалей в интерьере. 

Натуральные текстуры камня — интегрированы в отделку санузлов и кухни для придания пространству статусности и надежности.

Интересные находки

Зона кухни, объединенная с прихожей — такое решение позволило максимально эффективно использовать площадь холла и расширить пространство. 

Скала в кухонной зоне — необычный декоративный элемент, который стал главным визуальным центром квартиры. 

Рабочий кабинет на присоединенном балконе — мы задействовали площадь лоджии, разместив там два полноценных стола для работы супругов. 

Перепланировка кухни-гостиной — за счет возведения новой перегородки удалось выделить отдельную комнату для старшего сына и вместительную кладовую.

Отправьте заявку на консультацию или напишите нам в мессенджер

Мы составим для вас четкий путь от начала до результата, который потребует от вас минимальных усилий

Напишите нам!
Посчитаем точную стоимость вашего проекта