logo
Artum — студия дизайна интерьера
Перезвоните мне
Дизайн интерьера квартиры в ЖК AFI Park «Воронцовский» в Москве в стиле минимализма и джапанди — 128 м²
блог Artum

Дизайн интерьера квартиры в ЖК AFI Park «Воронцовский» в Москве в стиле минимализма и джапанди — 128 м²

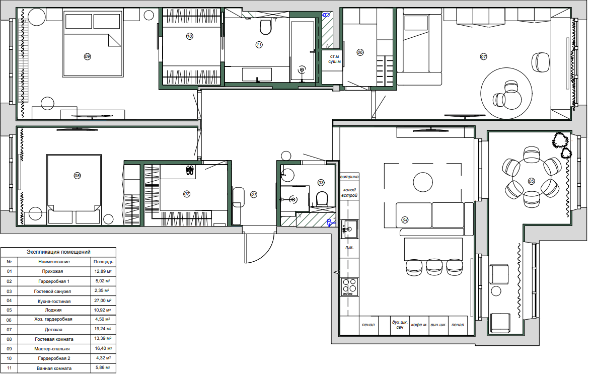
Задачи проекта

  • Спроектировать вместительную гардеробную зону при входе в квартиру.

  • Организовать отдельное хозяйственное помещение.

  • Сделать мастер-спальню со своим санузлом и системой хранения.

  • Визуально облегчить интерьер детской комнаты за счет нестандартных мебельных решений.

Планировочное решение

Изначальный план квартиры был с избытком неиспользуемой площади в проходах. Мы демонтировали часть перегородки гостевой комнаты, чтобы расширить входную зону и вписать туда полноценный гардероб. Коридор немного уменьшили, и на этом месте появилась постирочная. В спальне хозяев также убрали лишнюю стену, создав приватный проход в личную гардеробную и санузел.

Кухня
Кухня

Кухня

Кухонный гарнитур мы объединили с гостиной, установив функциональный остров для завтраков и быстрых перекусов. Фасады выбрали в спокойном бежевом цвете без выступающих ручек, чтобы мебель сливалась со стенами. Всю бытовую технику встроили в колонны, сохранив единство поверхностей и чистоту линий. 

Рабочий фартук и столешницу выполнили из износостойкого керамогранита с линейным освещением рабочей зоны. Высокий шкаф со стеклянными вставками добавил интерьеру глубины, не перегружая при этом обеденную зону.

Гостиная
Гостиная
Гостиная
Гостиная

Гостиная

Центром комнаты стала диванная группа с мягкой обивкой и плавными формами, которая отделяет зону отдыха от места для готовки. Стену под ТВ облицевали крупноформатным керамогранитом, добавив скрытую подсветку и ниши для книг или декора. 

В отделке преобладают светлые тона и дерево, что характерно для эстетики джапанди. Окна оставили максимально открытыми, чтобы в комнату попадало больше естественного света. Массивные шкафы здесь отсутствуют, поэтому пространство ощущается легким и свободным.

Лоджия с обеденной зоной
Лоджия с обеденной зоной
Лоджия с обеденной зоной
Лоджия с обеденной зоной

Лоджия с обеденной зоной

Мы присоединили лоджию к общему пространству, превратив ее в полноценное место для семейных ужинов. Возле панорамного остекления поставили круглый стол и кресла с мягкой текстильной обивкой. Стены оформили декоративной штукатуркой и вертикальными панелями, которые визуально приподнимают потолок. 

На пол уложили светлый керамогранит, подходящий по тону к остальным помещениям. Над столом закрепили лаконичный светильник, который дает мягкое направленное пятно света по вечерам.

back back

Сколько стоит дизайн-проект и ремонт: реальные примеры с ценами

Портфолио с готовыми проектами и финальными
сметами — без скрытых затрат и неожиданных расходов

Получить портфолио и расчёт
Мастер-спальня
Мастер-спальня
Мастер-спальня
Мастер-спальня

Мастер-спальня

Комнату оформили в пастельной гамме, сделав упор на тактильные материалы: микроцемент, фактурную штукатурку и дерево. Кровать с мягким изголовьем дополнили вертикальными панелями со встроенными лампами. 

Зона ТВ выглядит максимально просто — здесь только длинная подвесная тумба и рейки с контурным светом. После перепланировки вход в личный санузел и гардеробную осуществляется прямо из спальни.

Ванная комната
Ванная комната
Ванная комната
Ванная комната

Ванная комната

Санузел при спальне выдержан в бежевых тонах с использованием микроцемента и керамогранита под камень. Мы отказались от лишнего декора в пользу функциональных ниш с подсветкой, где удобно хранить косметику. 

Тумба под раковину выполнена из дерева, что добавляет интерьеру природной теплоты и смягчает холод камня. Большое круглое зеркало визуально расширяет границы небольшого помещения и служит дополнительным источником света. Все коммуникации спрятаны за фальш-стенами, оставляя на виду только чистые поверхности.

Душевая
Душевая

Душевая

Гостевой санузел с душевой сделали компактным, но при этом задействовали каждый сантиметр площади. Стеклянная перегородка в пол помогает сохранить визуальный объем и не дробит комнату на части. В отделке скомбинировали нейтральную плитку и деревянные элементы, поддерживая общую стилистику квартиры. 

Внутри душевой предусмотрели встроенные полки под банные принадлежности, чтобы не вешать лишние металлические держатели. Вертикальные световые линии помогают ориентироваться в пространстве и создают нужную яркость.

Рассчитайте стоимость дизайн-проекта, ремонта и материалов

1 из 5 вопросов

01

Выберите ваш тип жилья

У нас есть архитекторы и дизайнеры интерьеров, которые специализируются на конкретном типе помещений. Мы поможем составить грамотный дизайн-проект.

2 из 5 вопросов

02

Укажите общую площадь помещений

Для больших помещений мы снижаем стоимость закупки материалов за счет наших партнеров - строительных компаний.

м2

3 из 5 вопросов

03

В каком стиле вы хотите интерьер?

Возможно, Вы уже давно интересуетесь интерьером, и пришла пора проанализировать результат. А может быть, Вы пока не знаете, какому стилю отдать предпочтение. Выберите тот стиль, которое вам нравится больше всего.

4 из 5 вопросов

04

Когда вы хотите начать ремонтные работы?

Мы сможем заранее оценить нагруженность своей команды дизайнеров и организовать работу строителей.

5 из 5 вопросов

05

Куда отправить варианты расчета?

После отправки формы вы попадете на страницу, где сможете получить бесплатное руководство "Схема ремонта от А до Я". Мы свяжемся с Вами - и ответим на все вопросы, в течение 15 минут в рабочее время (с 10:00 до 19:00 по МСК).

Детская комната
Детская комната
Детская комната
Детская комната

Детская комната

Комнату для ребенка мы спроектировали на перспективу, чтобы интерьер оставался актуальным еще много лет. Помещение разделено на место для сна, рабочий стол и игровую зону с ковром. Установили шкаф и использовали систему хранения, которая буквально парит над полом, облегчая уборку. 

Светлые стены служат фоном для игрушек, а деревянные детали добавляют визуального тепла. Проходы оставили широкими, чтобы у ребенка было достаточно места для активных игр на полу.

Гостевая комната
Гостевая комната
Гостевая комната
Гостевая комната

Гостевая комната

Для гостей подготовили универсальное пространство в спокойных тонах с акцентом на фактуру дерева. Кровать с мягким широким изголовьем вписана между стеновыми панелями со скрытыми диодами. 

Напротив расположили минималистичную ТВ-зону и трековое освещение на потолке для равномерного залива светом. Никаких громоздких предметов — только самое необходимое для комфортного пребывания.

Прихожая
Прихожая
Прихожая
Прихожая

Прихожая

Входную группу выполнили в строгом минимализме, используя светлую штукатурку и керамогранит на полу. Зону гардероба выделили деревянными панелями, за которыми скрываются глубокие системы хранения для верхней одежды. 

Мы установили фасады в один уровень со стенами, чтобы шкафы не бросались в глаза и не загромождали проход. Вдоль потолка и стен пустили световые линии, которые помогают визуально вытянуть пространство прихожей. Узкая консоль и небольшой пуф завершают композицию, делая вход в квартиру удобным и аккуратным.

Дополнительная информация о проекте

Стиль и цветовая гамма

Интерьер выполнен в современном минимализме с элементами джапанди. Основа палитры — светлые пастельные тона от бежевого до глубокого коричневого без ярких цветовых пятен. Акцент сделан на сочетании разных фактур: матовой краски, дерева и холодного камня. Такое решение сохраняет визуальную чистоту и делает пространство функциональным.

Материалы

Краска и декоративная штукатурка — создают нейтральный фон и подчеркивают строгую геометрию стен.

Керамогранит и микроцемент — использованы в санузлах и грязных зонах как самые практичные и износостойкие покрытия.

Кварцвинил и дерево — добавляют фактурности полу и мебельным фасадам, делая интерьер визуально теплее.

Реечные и мебельные панели — работают как деликатный декор, скрывая системы хранения и зонируя комнаты.

Интересные находки

Подвесные парящие шкафы в детской — мебель не касается пола, за счет чего интерьер кажется легче и упрощается уборка.

Стык керамогранита и микроцемента в ванной — практичное решение для мокрых зон, которое избавляет от лишних швов.

Кухонный остров как разделитель — конструкция зонирует общую площадь, работая одновременно как рабочий стол и место для завтраков.

Отправьте заявку на консультацию или напишите нам в мессенджер

Мы составим для вас четкий путь от начала до результата, который потребует от вас минимальных усилий

Напишите нам!
Посчитаем точную стоимость вашего проекта