logo
Artum — студия дизайна интерьера
Перезвоните мне
Как сделать дизайн-проект квартиры самостоятельно: пошаговый план от замеров до сметы

Как сделать дизайн-проект квартиры самостоятельно: пошаговый план от замеров до сметы

Что должно быть в проекте, чтобы ремонт шёл по документам: требования, обмерный план, планировка и мебель, свет и розетки, ведомость отделки, спецификация и смета. В конце — чек-лист проверки. Разобрали всё максимально детально, чтобы понятно было даже новичку.

Содержание

Как сделать дизайн-проект самому: что считается «готовым» и зачем это нужно

Дизайн-проект интерьера — подробная инструкция, как превратить пустую комнату или квартиру в красивое и удобное для жизни пространство. Он включает идею, технические решения, визуализации и все-все детали будущего результата.  

Представьте, что вы собираетесь испечь торт. Просто купить продукты — недостаточно. Вам нужен рецепт: какие именно ингредиенты, в каких пропорциях, в какой последовательности их смешивать, при какой температуре печь и как украшать. Вот проект выступает в роли такого «рецепта», только для ремонта.

Как получить образование дизайнера интерьера
Сколько лет нужно учиться на дизайнера интерьера и когда можно считать себя готовым к работе?

Отучиться можно меньше, чем за год. В офлайн-формате или дистанционно. Что касается готовности к профессиональной работе, то её определяют конкретные скиллы:

  • провести встречу с заказчиком и понять его запрос 
  • сделать планировку с учетом эргономики 
  • подготовить в программе чертежи, по которым строители начнут ремонт
  • создать визуализацию, чтобы клиент увидел будущий интерьер
  • объяснить свои решения так, чтобы той стороне согласились

Если всё ещё теряетесь, вот шпаргалка-ориентир — для каждой цели подходит свой формат:

Какой формат образования на дизайнера интерьера выбрать?
А есть ли причины браться за дизайн-проект самостоятельно, если сегодня можно нанять дизайнера:

1. Экономия. Во-первых, стоимость услуг профессионала ~1000-5000 рублей за м². Во-вторых, материалы сегодня, ой, какие дорогие, поэтому цена ошибки сильно возросла. С планом сохраняете до 30% бюджета.

2. Идеальное совпадение. Вы лучше знаете свои привычки: где любите пить кофе, в каком формате хотите хранить книги, как планируете отдыхать. Пока дизайнер оперирует шаблонами, вы мыслите своей жизнью. 

3. Свобода фантазии. Воплощаете свои мечты = получаете чувство гордости и удовлетворения. Согласитесь, жить в квартире, которую вы придумали сами, намного приятнее. Причём сделали это грамотно. 

Как сделать планировку комнаты на своем компьютере
Как понять, что дизайн-проект квартиры готов, если я делаю его самостоятельно?  

Помимо сбора всех планировок, визуализаций и ведомостей, готовность можно засчитывать, если на руках есть ответы на следующие вопросы, и вы их уже не меняете:

  • Где и какая мебель стоит → точно знаете, какой диван, какой шкаф и куда именно ставить; согласно замерам всё влезает и свободно открывается
  • Где и какие розетки/выключатели находятся → все точки продуманы до мелочей — где стоит техника, где подключаете телефон на зарядку, где рука тянется включить свет
  • Какие материалы уже куплены или точно выбраны → ламинат или плитка, цвет краски или конкретные обои и т.д. 
  • Какая сантехника будет установлена → знаете модели унитаза, раковины и смесителей (от этого зависит, как подводить трубы)
  • Что по освещению → понимаете, где именно будут висеть светильники и люстры, сколько будет уровней света.

Резюмируя: дизайн-проект превращает хаотичный ремонт в понятный процесс, итог которого вам понравится. А такое нам точно надо. 

Можно ли сделать дизайн-проект самостоятельно: тест на сложность и красные флаги

Сделать свой проект — это выгодно и очень даже разумно. Но! Бывают ситуации, когда лучше не экспериментировать и доверить дело профессионалу. Чтобы обойти неприятные сюрпризы как в новостройке, так и во вторичке, начните с простого тестирования. Если красных флагов нет, можете смело брать бразды правления в свои руки.

Сохраняйте чек-лист: что можно сделать дизайн-проект самостоятельно, где взять консультацию, а где обратиться к дизайнеру
В каких случаях дизайн-проект реально сделать самому, а когда лучше взять консультацию:

Делайте проект самостоятельно, если ⬇ 

  • наметили косметический ремонт без перепланировки, переноса мокрых зон и сложной инженерии 
  • преображаете арендованное жильё, хотите сделать «свежо и чисто» с минимальным бюджетом
  • располагаете временем и готовы изучать программы для планировок, ездить по строительным рынкам, согласовывать действия рабочих  
  • используете простой стиль, никакого неоклассицизма с лепниной или хай-тека со множеством встроенных систем
  • вкладываете до 1–2 млн рублей — на небольшой бюджет дизайнера нанять сложно, так как его гонорар съедает львиную долю средств

Обратитесь к специалисту, если ⬇

  • нужна сложная перепланировка, где придётся сносить/возводить стены, переносить кухню, санузел, розетки — человек с архитектурным образованием учтёт несущие стены, подготовит грамотные чертежи
  • у вас студия или малютка-хрущевка, где важно разместить всё необходимое и не превратить квартиру в проходной коридор
  • будут серьёзные инженерные решения, например, тёплые полы, сложная вентиляция, канальные кондиционеры, умный дом
  • есть проблемы с геометрией: кривые стены, нестандартные углы, перепады высот — тут точно не поймёте, как самому сделать дизайн проект-квартиры
  • дефицит времени — дизайнер возьмёт на себя ответственность, закупит материалы оптом в проверенных салонах, организует логистику и уложится в сжатые сроки
  • вкладываете от 5 млн рублей — при большом бюджете цена ошибки (переделки) будет выше стоимости услуг дизайнера
  • нужен авторский надзор, который избавит от необходимости ругаться со строителями, требовать соблюдения сроков и технологии
Не делайте дизайн проект самостоятельно, если отмечаете любой из этих пунктов

Какие документы сделать в первую очередь, чтобы проектом можно было пользоваться на ремонте?

Обмерный план — базовый минимум. Также нужна схема комнаты с точными размерами стен, окон, дверей, с отметками высоты потолка и перепадов. Подготовьте план демонтажа и монтажа перегородок, схему освещения, розеток и выключателей, развертку стен.  

А если хотите превратить типичную планировку в стильную и максимально удобную, научиться делать визуализации будущего интерьера и экономить на ремонте без потери качества — заглядывайте на бесплатные эфиры Маши Черной.

111

111

Шаг 1 — требования: как перевести «хотелки» в задачу (и не ссориться с собой через месяц)

Самая частая ошибка — начать ремонт с выбора отделки или дивана. Через месяц выясняется: диван не влезает, розетки за шкафом, света вечером не хватает. Прежде чем браться за дизайн-проект квартиры самостоятельно, составьте бриф (опрос). Он закладывает 80% будущего успеха.

Как сделать дизайн квартиры своими руками
Как составить ТЗ на интерьер для себя, если я новичок и не знаю, с чего начать?

Возьмите лист бумаги или откройте программу для заметок, письменно ответьте на пять вопросов: 

  1. Кто и как пользуется комнатой? Запишите сценарии для всех домашних. Утро в спальне: проснулись, открыли шторы, пошли в душ. Вечером: почитали, посмотрели фильм, уснули. Под каждый сценарий нужно свое освещение, мебель, розетки.
  2. Где будет хранение? Посчитайте хотя бы примерно. Сколько плечиков для одежды нужно на человека. Для обуви — полка глубиной 35 см. Для кастрюль — выдвижные ящики, а не просто шкаф.
  3. Какая техника нужна? Выпишите по всей квартире. Потом под нее будут планироваться розетки.
  4. Что для вас важно? Если ненавидите уборку — пишите «минимум открытых полок». Если работаете из дома — «тихое место с розеткой для ноутбука».
  5. Какой бюджет и ограничения? Сколько готовы потратить на квартиру в целом? Декор можно купить сейчас, а можно через год. Что принципиально, а на чем не сэкономите?

С полученным брифом и чётким пониманием, как сделать проект комнаты, переходите к замерам. Но регулярно возвращайтесь к листу и проверяйте: новый вариант решает ту задачу, которую записали? Если нет — отметайте без жалости.

Шаг 2 — замеры и обмерный план: что мерить и как записывать, чтобы не промахнуться, если сделать свой проект

Дальше начинается математика. Не особо сложная, но важная. С точными замерами дизайн-проект своими руками гарантированно не превратится в фантастику. Что понадобится: лазерная рулетка (стоит недорого), блокнот или тетрадь, карандаш или ручка, камера телефона.

С чего начать дизайн-проект квартиры самостоятельно
Как правильно сделать обмерный план квартиры самостоятельно и какие замеры чаще всего забывают?
  • двигайтесь чётко по часовой стрелке
  • данные фиксируйте только в мм, потому что в см легче ошибиться
  • измеряйте как отдельные участки, так общий периметр стены
  • если пользуетесь лазерным дальномером, дублируйте обмер ключевых зон рулеткой
  • делайте фотофиксацию нестандартных частей помещения, углов, коммуникаций 

Учитывайте моменты, о которых часто забывают при обмере: диагонали стен (могут показать, насколько они «завалены»), высоту подоконников, глубину ниш за батареями и трубами. А также расстояние от розеток до углов и проемов.

Совет: фотографируйте каждую стену с рулеткой в кадре — потом по фото легче вспомнить, что где замеряли.

Простой чек-лист для замеров и дизайна своей квартиры

Обязательно скачайте памятку ↑, как сделать проект своего дома без ошибок. И помните: лучше потратить час на перепроверку, чем месяц на переделки.

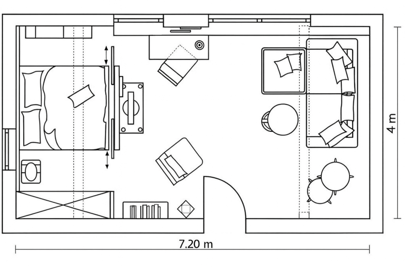
Шаг 3 — планировка и мебель: как сделать планировку комнаты и выбрать лучший вариант

Итак, у вас уже есть обмерный план и список требований из брифа. Теперь начинается самое интересное — планировка и расстановка. Эти задачи можно выполнить в специальных сервисах или старым-добрым ручным способом. 

Как самому сделать дизайн-проект: продумайте планировку

В программе. Для новичка идеально подходит Homestyler, Planner 5D, Planoplan — сервисы с бесплатными режимами и на русском языке. Можно нарисовать стены по своим размерам, подбирать мебель и варианты расстановки. Экспериментировать со стилями. 

На бумаге. Чертите план на миллиметровке и вырезаете прямоугольники мебели в масштабе — двигаете их по листу и определяете удобное положение.

111

 

111

 

Как самой сделать планировку, чтобы было удобно жить и мебель реально встала по размерам?

Когда продумываете план будущего интерьера (в программе или просто на миллиметровке), учитывайте несколько важных моментов. Проверяйте проходы: перед кроватью 70 см, перед шкафом 60 см, между диваном и журнальным столиком 50 см. Мысленно пройдите по маршрутам: утром от кровати в ванную, вечером на кухню за водой — ничего не должно мешать передвижению. 

Финальный чек-лист для планировки

111

 Смотрите видео дизайнера Маши Черной с разбором главных ошибок в планировке квартиры по ссылке.

Быстрая концепция без сложной 3D: референсы, мудборд, коллаж и ограничения дизайн проекта самостоятельно

Когда планировка и маршрут, как сделать дизайн квартиры, готовы, нужно понять, как идея будет выглядеть в реальности. Не переживайте, рисовать фотореалистичные картинки не придётся. Достаточно собрать коллаж из фото или референсов.

Как создать дизайн комнаты стильный и современный

Что такое референсы, мудборд, коллаж?

  • Референсы — картинки интерьеров для вдохновения. Просто чужие фото, где есть что-то, что вы хотите повторить. Ищите их на Pinterest, в Яндексе или соцсетях.
  • Мудборд — доска настроения. Собираете референсы вместе, смотрите, сочетаются ли они друг с другом. Можно клеить на лист, собирать в телефоне или в Pinterest.
  • Коллаж — упрощенная картинка вашего будущего интерьера. Вырезаете из референсов куски (например, этот диван, те шторы, тот цвет стен) и собираете в один кадр, чтобы представить, как они будут выглядеть вместе.
  • Pinterest — социальная сеть, где люди выбирают картинки по темам. Удобная штука для поиска референсов: забиваете в поиск «спальня в скандинавском стиле» и получаете тысячи фото.
Как создать коллаж, мудборд или макет квартиры своими руками

*для тех, кто думает «Как собрать стильный интерьер по референсам, если я не дизайнер и не хочу делать сложную 3D?»

Откройте Pinterest или любую другую простую программу для редактуры фото. Подойдет Canva, обычный коллаж или даже лист в Ворде. Разместите рядом 10–15 фото, которые сохранили. Посмотрите, что получилось. Цвета спорят друг с другом? Стили слишком разные? Убирайте лишнее, пока не останется 5–6 картинок, которые выглядят как одна история.

Совет: чтобы интерьер не превратился в солянку, введите себе три ограничения. Цветовая палитра — не больше трех цветов: основной, дополнительный и акцентный (правило 60-30-10). Материалы — не больше трех-четырех фактур (дерево, камень, металл, ткань).

 

111

 

Подробное видео с инструкцией по составлению коллажа смотрите здесь.

Свет и розетки: как спланировать сценарии и точки, чтобы не жить на удлинителях

К этому шагу приступаете, когда полностью готова расстановка. Если решите наоборот, розетки могут оказаться за шкафами, а свет будет не в тех местах. Неудобно. Да-да, есть ещё важные тонкости в задаче «как самой сделать дизайн-проект комнаты». 

Итак, как спланировать освещение и розетки в квартире самостоятельно, чтобы потом не штробить заново?

Возьмите план с распределением мебели. Продумайте удобные сценарии света: у кровати нужны розетки с двух сторон. У дивана — розетка для зарядки телефона, торшера, ноутбука. На кухне — над столешницей через каждые 60–80 см, для плиты и холодильника. Что-то ещё? 

Что такое сценарии света и зачем они нужны? В квартире нужны несколько вариантов освещения под разные ситуации. В спальне: прикроватный свет — для чтения или чтобы не включать люстру, если встали ночью. В гостиной: общий свет, над диваном, подсветка телевизора для кино. На кухне: яркий свет над рабочей поверхностью, приглушенный — над обеденным столом. Используйте таблицу-подсказку:

Таблица со сценариями света для дизайн-проекта самостоятельно

Что обычно забывают?

  • Про пылесос. В каждой комнате должна быть розетка, куда достанет шнур. 
  • Про зарядки. У мест, где вы обычно сидите, отдыхаете или работаете. 
  • Про розетки на балконе. А они важны, если у вас лоджия или закрытый балкон, где можно отдыхать или работать.

На заметку, как сделать дизайн-проект комнаты самому без вечных удлинителей — нарисуйте на плане каждую розетку и выключатель. Проверьте, есть ли доступ, когда мебель стоит на месте.

Ведомость отделки и спецификация: как не запутаться и собрать список закупок правильно

Ведомость отделки — это таблица, где для каждого помещения записано, каким материалом отделывают пол, стены, потолок. Она нужна, когда думаете, как спроектировать дизайн комнат и при этом видеть квартиру целиком, не перепутать закупки в разных помещениях.

Спецификация — это конкретные позиции для закупки. Выбираете бренд, артикул, цвет, размер, количество. Затем пишете, где купить.

Как самому сделать дизайн-проект со сметами и ведомостями

Чем отличается ведомость отделки от спецификации и как их составить самому:  первая дает общую картину, а вторая — конкретные позиции. А вместе они гарантируют, что вы не купите лишнего и не забудете нужного. 

Как составить ведомость отделки и спецификации?

Возьмите лист бумаги или заведите таблицу. По горизонтали напишите: помещение, пол, стены, потолок, плинтусы. По вертикали — все комнаты по порядку. Заполняйте кратко: материал и цвет. Никаких артикулов, только общая картина.

Можете использовать пример ведомости:

Пример ведомости отделки, чтобы сделать свой проект

Когда все составляющие выбраны, начинайте заполнять таблицу спецификации. На каждую позицию — отдельная строка. Указывайте не только название, но и параметры, по которым можно подобрать аналог.

Пример составления спецификации:

Таблица спецификации, чтобы сделать свой проект

Совет: когда делаете дизайн сами, подбирайте аналоги товаров. Ламинат может закончиться на складе. Если вы записали только бренд, придется перебирать все заново. Если указали параметры — будет легко найти похожий от другого производителя.

Смета: как посчитать бюджет по проекту и уменьшить его без переделки планировки, если у вас дизайн-проект своими руками

Когда вы делаете дизайн-проект самостоятельно, возникает вопрос: сколько это стоит на самом деле? Часто реальная сумма оказывается в два раза больше, чем представлялось. 

Из чего состоит смета:

  • Черновые материалы. Стяжка, штукатурка, гипсокартон, грунтовка, провода, трубы. 
  • Чистовая отделка. Плитка, ламинат, краска, обои, двери, плинтусы. 
  • Мебель и техника. Диваны, кровати, шкафы, холодильник, плита, стиральная машина.
  • Работа. Сколько берут строители за каждый этап.
  • Доставка и подъем. О ней часто забывают, а это 5–10% сверху.
  • Резерв. 15–20% от общей суммы на непредвиденные расходы. 

Пример сметы в таблице:

 

Таблица-пример сметы для дизайн-проекта своими руками

На чем можно сэкономить? Однозначно на декоре (картины, вазы, подушки, свечи), на зарубежных материалах, заменив ту же итальянскую плитку на похожую российскую. Сюда же предметы на заказ — комод в спальню или журнальный столик можно выбрать на маркетплейсе. Вместо авторского светильника — похожий из Леруа.

111

 

111

Составьте смету до начала закупок, когда будете делать дизайн-проект квартиры. Разложите все по полочкам, посмотрите, где можно сэкономить без потери качества. И главное — заложите резерв. Он спасет, если цены вырастут.

 

Сборка проекта в один PDF и финальная проверка перед ремонтом

Как создать дизайн-проект квартиры самому и где сохранить итог

Чтобы сделать дизайн-проект дома своими руками и не бояться отдавать его строителям — заранее пройдитесь по будущей квартире. Буквально по каждой комнате:

  • Прихожая. Где выключатель света? Он у входа? Удобно тянуться? Есть розетка для подогрева обуви, для пылесоса, для зарядки?
  • Кухня. Холодильник открывается, не упираясь в стену? Розетки над столешницей не закрыты техникой? Вытяжка попадает в вентиляцию? Посудомойка стоит рядом с раковиной?
  • Гостиная. Телевизор видно с дивана без поворота головы? Розетки у дивана там, где вы обычно сидите? Свет горит над местом для чтения?
  • Спальня. К кровати можно подойти с двух сторон? Розетки у обеих тумбочек есть? Выключатель можно достать, не вставая?
  • Ванная. Стиралка открывается, не блокируя проход? Зеркало с подсветкой? Розетка для фена не низко, хватит шнура?

Когда все проверите, откройте любой простой редактор или даже Ворд. Разместите страницы по порядку. Каждому листу дайте понятное название. Сохраните в PDF — этот формат открывается на любом компьютере или телефоне.

Финальный чек-лист для дизайн-проекта дома своими руками

Теперь у вас есть пошаговая инструкция, как сделать дизайн-проект самостоятельно. Берите рулетку, открывайте программу и начинайте свой путь: каждый шаг приближает вас к квартире, где будет удобно именно вам.

Хотите сделать ремонт дома как у профессионала, но без лишних трат? Бесплатный интенсив Маши Черной — это 3 дня, после которых вы перестанете бояться чистого листа.

111

 

111

Похожие статьи

  • Где учиться на дизайнера интерьера — лучшие курсы и вузы 2025–2026
    Читать статью
  • Курсы дизайна интерьера: ТОП-10 лучших программ обучения с нуля в 2026 году
    Читать статью
  • Бесплатные курсы дизайна интерьера: ТОП-15 бесплатных программ ведущих школ дизайна в 2026 году
    Читать статью
  • Профессия дизайнер интерьера: как начать карьеру и выйти на доход от 100 000 ₽
    Читать статью

Напишите нам!
Посчитаем точную стоимость вашего проекта